Bénéficiez des services de nos partenaires locaux soigneusement sélectionnés
pour vous accompagner dans votre parcours d'achat immobilier

Exclusivité - bel appartement haussmannien - quartier préfecture

— Marseille-6e 13006 —
475 000 €
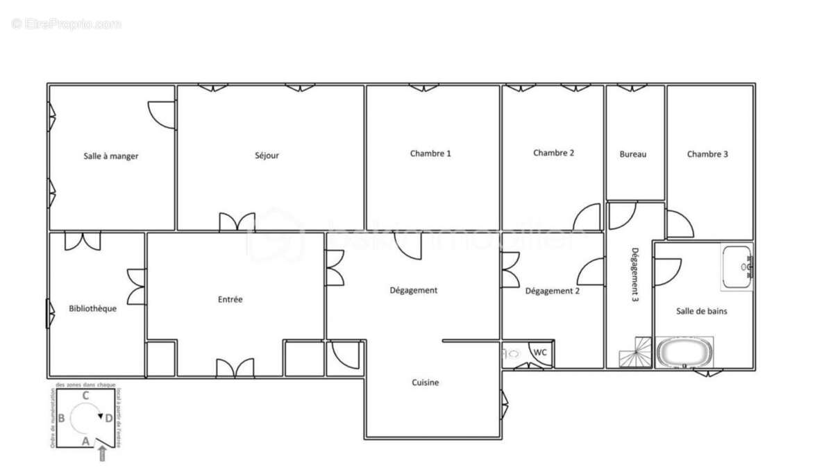
175 m²
8 pièces

Nos partenaires locaux
Élégant appartement au cœur du Quartier Préfecture

Laissez-vous séduire par de magnifique appartement Haussmannien de 175 m2.
Situé au rez-de-chaussée d'un petit immeuble récemment ravalé, cet appartement vous séduira par ses volumes généreux et son charme intemporel. Les belles hauteurs sous plafonds, les cheminées d'époque en marbre, le parquet ancien à bâtons rompus, les tomettes et les moulures rappellent une élégance classique, tandis que la rénovation soignée lui confère un confort contemporain.

L'agencement intérieur, pensé pour conjuguer style et fonctionnalité, offre de vastes espaces de vie avec de grandes fenêtres, une grande cuisine entièrement équipée, trois belles chambres, deux bureaux et de nombreux rangements pour un quotidien organisé et raffiné. Ce lieu unique vous accueillera pour laisser libre cours à votre style de vie et à vos aspirations.

Deux caves sont rattachées à cet appartement.

Idéalement situé à l'intersection des quartiers Préfecture et Castellane, cet appartement bénéficie d'un environnement vivant et pratique, à proximité immédiate des écoles, commerces, restaurants et transports en commun, bus, métro et tramway.

La copropriété, composée de seize lots, prévoit un budget annuel de charges de 2 136 €, soit 178 € par mois. (Eau comprise dans les charges)

Cette annonce référence 249819 vous est présentée par votre agent commercial BSK Immobilier MARC-OLIVIER GOURET (EI) immatriculé au RSAC de ARLES (13200) sous le numéro 50[Coordonnées masquées]36.

Prix du bien : 475 000,00 €
Les honoraires d'agence sont à la charge du vendeur.

A propos de la copropriété :
Pas de procédure en cours.
Nombre de lots : 4
Charges prévisionnelles annuelles : 2 000,00 €

A propos des performances énergétiques :
Date de réalisation du diagnostic énergétique : 31/03/2023
Score DPE : 149 kWhEP/m²/an
Score GES : 15 kgepCO2/m²/an
Montant estimé des dépenses annuelles d'énergie pour un usage standard : entre 1720.00 € et 2430.00 € par an. Prix moyens des énergies indexés sur l'année 2021 (abonnements compris).

Les informations sur les risques auxquels ce bien est exposé sont disponibles sur le site Géorisques : www.georisques.gouv.fr
Voir plus

Référence: 249819
Bien en copropriété. Nombre de lots : 4. Charges de copropriété : 166 €.
Honoraires à la charge du vendeur.
DPE
A
B
C
D
E
F
G
GES
A
B
C
D
E
F
G

Prêt immobilier

Vous souhaitez connaître votre capacité d’emprunt et trouver le meilleur crédit immobilier ?
Réaliser une simulation gratuite

Appartement à MARSEILLE-6E
Appartement à MARSEILLE-6E
Appartement à MARSEILLE-6E
Appartement à MARSEILLE-6E
Appartement à MARSEILLE-6E
Appartement à MARSEILLE-6E
Appartement à MARSEILLE-6E
Appartement à MARSEILLE-6E
Appartement à MARSEILLE-6E
Ce site est protégé par reCAPTCHA la Politique de confidentialité et les Conditions d’utilisation de Google s’appliquent.
Obtenir un prêt immobilier au meilleur taux ?

En poursuivant votre navigation sans modifier vos paramètres, vous acceptez l'utilisation de cookies susceptibles de réaliser des statistiques de visite. Cliquez ici pour plus d'informations