Bénéficiez des services de nos partenaires locaux soigneusement sélectionnés
pour vous accompagner dans votre parcours d'achat immobilier

Appartement t4 de 96 m² en duplex

— Auray 56400 —
296 000 €
96 m²
4 pièces
parking

Nos partenaires locaux
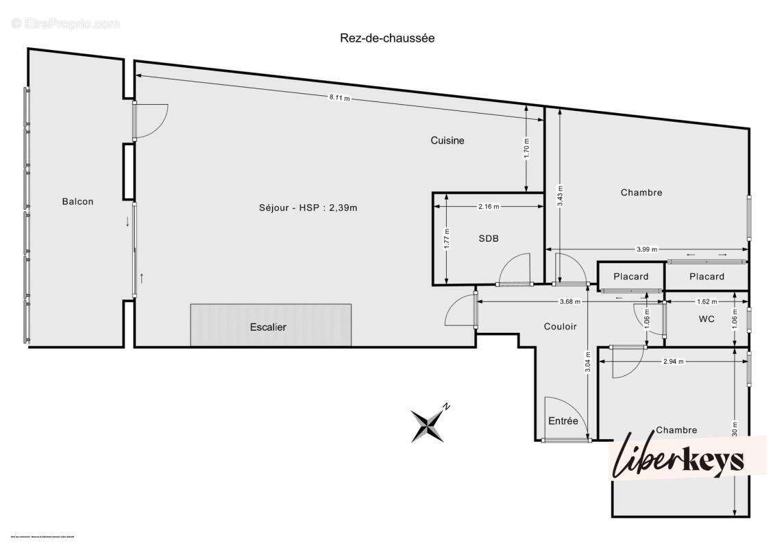
Liberkeys vous propose en exclusivité à Auray gare, cet appartement T4 en duplex de 96 m² situé au 2ème et dernier étage sans ascenseur d'une petite résidence calme et bien entretenue. Ce bien entièrement rénové vous séduira par son agencement optimisé et ses volumes généreux.

À l'étage principal, vous accédez à l'appartement par une entrée avec placard. La pièce de vie très lumineuse, constituée d'un salon-séjour de 33 m² ouvert sur une cuisine neuve aménagée et équipée, donne sur un agréable balcon couvert.
L'espace nuit est bien pensé et isolé de la pièce de vie pour préserver calme et tranquillité. Deux chambres dont une avec placard sont attenantes à leur salle de bain. Les toilettes sont séparées.

À l'étage supérieur, vous découvrez une suite parentale spacieuse avec son dressing, sa propre salle d'eau et ses toilettes.

Vous bénéficiez d'un garage privatif de 21 m² accessible directement depuis l'extérieur.

Montant estimé des dépenses annuelles d'énergie pour un usage standard : entre 949 € et 1283 € par an. Prix moyens des énergies indexés sur l'année 2021 (abonnements compris).

Ce bien vous plaît ? Visitez-le virtuellement en 3D sur le site de Liberkeys ou contactez directement votre conseiller. Desgrippes Vincent, agent commercial immatriculé au RSAC de Vannes sous le numéro 808 985 915. Référence annonce : DOM20581. Date de réalisation du diagnostic : 29/04/2022. Les honoraires sont à la charge du vendeur.
Voir plus

Référence: DOM20581
Bien en copropriété. Nombre de lots : 12. Charges de copropriété : 142 €.
Honoraires d'agence de 4% à la charge de l'acquéreur
DPE
A
B
C
D
E
F
G
GES
A
B
C
D
E
F
G

Prêt immobilier

Vous souhaitez connaître votre capacité d’emprunt et trouver le meilleur crédit immobilier ?
Réaliser une simulation gratuite

Appartement à AURAY
Appartement à AURAY
Appartement à AURAY
Appartement à AURAY
Appartement à AURAY
Appartement à AURAY
Appartement à AURAY
Appartement à AURAY
Appartement à AURAY
Appartement à AURAY
Ce site est protégé par reCAPTCHA la Politique de confidentialité et les Conditions d’utilisation de Google s’appliquent.
Obtenir un prêt immobilier au meilleur taux ?

En poursuivant votre navigation sans modifier vos paramètres, vous acceptez l'utilisation de cookies susceptibles de réaliser des statistiques de visite. Cliquez ici pour plus d'informations