Bénéficiez des services de nos partenaires locaux soigneusement sélectionnés
pour vous accompagner dans votre parcours d'achat immobilier

Magnifique t3 dans résidence confidentielle

— La Baule-Escoublac 44500 —
411 500 €
82 m²
3 pièces
parkingbalcon/terrasse

Nos partenaires locaux
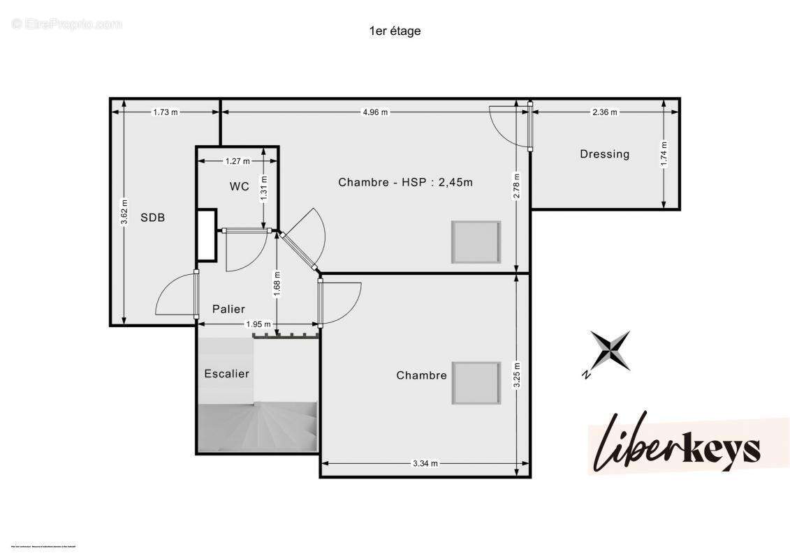
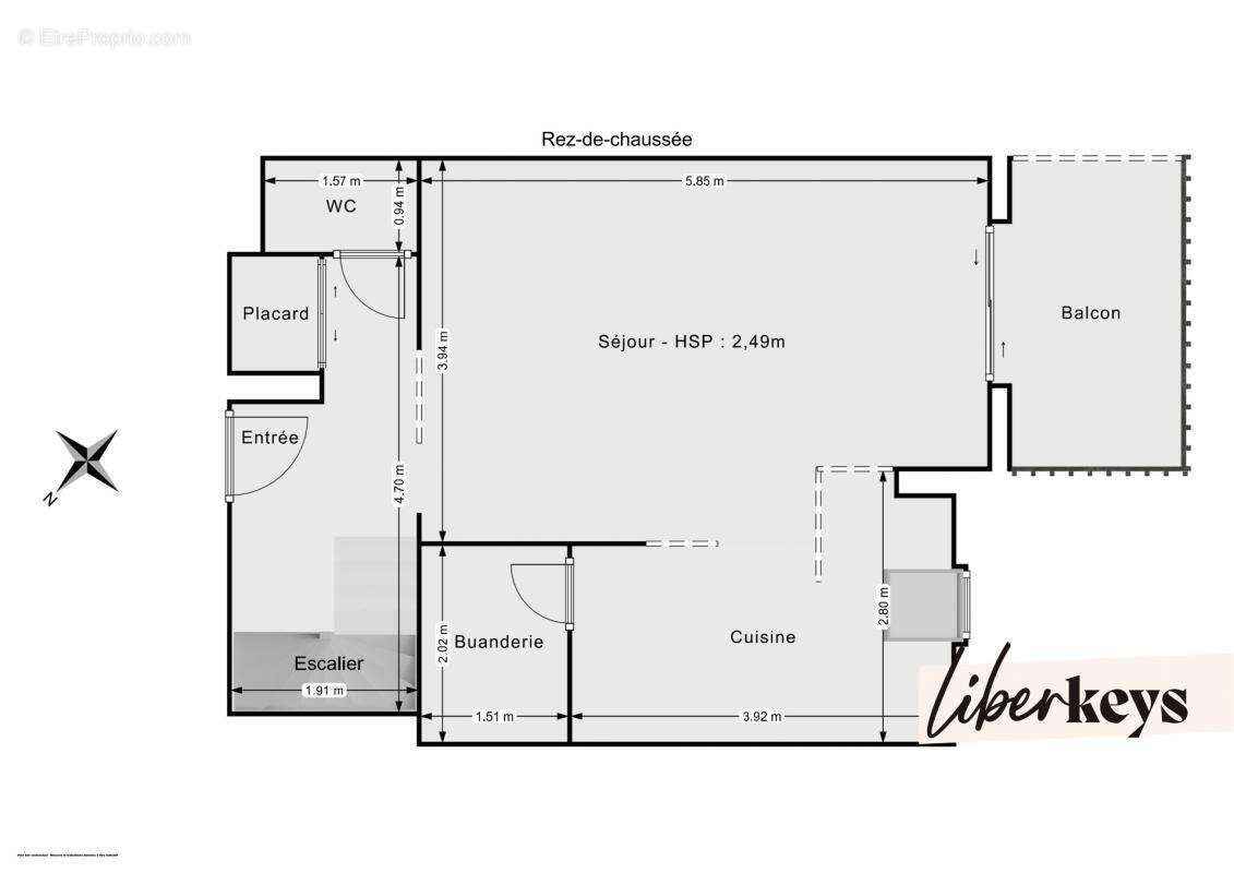
Liberkeys vous propose un charmant appartement de 66 m² (Carrez) idéalement situé à La Baule-Escoublac, à seulement quelques encablures de la plage et des célèbres avenues commerçantes. Vous serez séduit par la luminosité de son vaste séjour de 28 m² ouvrant sur un balcon de 6 m², parfait pour profiter des douces soirées bauloises.

Cet appartement bien agencé comprend deux chambres, ainsi qu'un dressing pour optimiser votre espace de rangement. La cuisine ouverte est adossée à un cellier de 3 m², facilitant ainsi votre organisation quotidienne. La salle de bain moderne complète ce bien d'exception, avec un WC séparé pour plus de confort.

Située dans un quartier prisé et sécurisé, petite résidence confidentiel et parfaitement desservi par les transports en commun, votre future résidence vous offre deux places de parking, un atout majeur en pleine ville. Proche des écoles, commerces, et à quelques minutes seulement de la gare TER de la Baule-Escoublac, ce bien est idéal pour les familles ou les investisseurs à la recherche de rentabilité.

Les charges de copropriété s'élèvent à 960 € par an et la taxe foncière est de 1200 €, faisant de cet achat, une opportunité à saisir sur le marché actuel. Montant estimé des dépenses annuelles d'énergie pour un usage standard : entre 730 € et 1050 € par an. Prix moyens des énergies indexés sur l'année 2023 (abonnements compris).

Ce bien vous plaît ? Visitez-le virtuellement en 3D sur le site de Liberkeys ou contactez directement votre conseiller. Référence annonce : DOM13292. Date de réalisation du diagnostic : 18/12/2024. Les honoraires sont à la charge du vendeur.
Voir plus

Référence: DOM13292
Bien en copropriété. Nombre de lots : 16. Charges de copropriété : 80 €.
Honoraires à la charge du vendeur.
DPE
A
B
C
D
E
F
G
GES
A
B
C
D
E
F
G

Prêt immobilier

Vous souhaitez connaître votre capacité d’emprunt et trouver le meilleur crédit immobilier ?
Réaliser une simulation gratuite

Appartement à LA BAULE-ESCOUBLAC
Appartement à LA BAULE-ESCOUBLAC
Appartement à LA BAULE-ESCOUBLAC
Appartement à LA BAULE-ESCOUBLAC
Appartement à LA BAULE-ESCOUBLAC
Appartement à LA BAULE-ESCOUBLAC
Appartement à LA BAULE-ESCOUBLAC
Appartement à LA BAULE-ESCOUBLAC
Appartement à LA BAULE-ESCOUBLAC
Appartement à LA BAULE-ESCOUBLAC
Appartement à LA BAULE-ESCOUBLAC
Appartement à LA BAULE-ESCOUBLAC
Appartement à LA BAULE-ESCOUBLAC
Appartement à LA BAULE-ESCOUBLAC
Appartement à LA BAULE-ESCOUBLAC
Appartement à LA BAULE-ESCOUBLAC
Ce site est protégé par reCAPTCHA la Politique de confidentialité et les Conditions d’utilisation de Google s’appliquent.
Obtenir un prêt immobilier au meilleur taux ?

En poursuivant votre navigation sans modifier vos paramètres, vous acceptez l'utilisation de cookies susceptibles de réaliser des statistiques de visite. Cliquez ici pour plus d'informations