Bénéficiez des services de nos partenaires locaux soigneusement sélectionnés
pour vous accompagner dans votre parcours d'achat immobilier

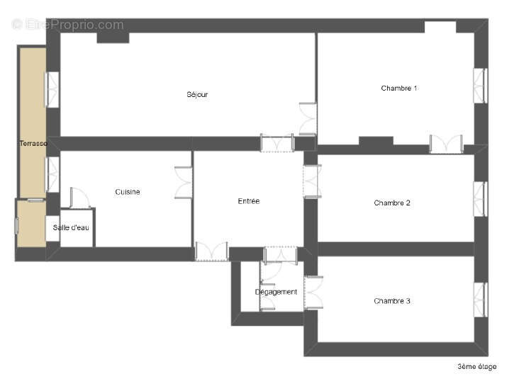
Appartement f4 de 116m2 - charme de l'ancien en plein coeur du centre historique d'ajaccio

— Ajaccio 20000 —
570 000 €
116 m²
4 pièces
balcon/terrasse

Nos partenaires locaux
Nous avons le plaisir de vous proposez à le vente dans notre agence IMMO DE CORSE cet appartement de Type T4.
Situé rue Fesch, cet appartement de 116 m2 situé au 3ème étage avec ascenseur offre un cadre de vie privilégié face à la cour du Musée Fesch. Dans un immeuble ancien au charme authentique, ce bien en parfait état séduit par ses volumes généreux, ses belles hauteurs sous plafond et son électricité entièrement aux normes avec doubles vitrage.
Traversant, il est composé de 3 chambres, d’une cuisine séparée et d’un grand séjour donnant sur un balcon spacieux côté jardin et cours intérieure. Vous apprécierez également les authentiques tommettes au sol qui apportent une touche de charme traditionnelle.
Profitez d’une belle vue sur Musée Fesch, ainsi que du parfait équilibre entre le caractère de l’ancien et le confort moderne. La proximité immédiate des transports, commerces, du marché d’Ajaccio, de la plage Saint François, du Cours Napoléon et du port complète ce cadre de vie unique.
Un bien rare sur le marché ajaccien, idéal pour une résidence principale ou un pied-à-terre.
Bien soumis au statue de la copropriété.
Voir plus

Bien en copropriété.
DPE
A
B
C
D
E
F
G
GES
A
B
C
D
E
F
G

Prêt immobilier

Vous souhaitez connaître votre capacité d’emprunt et trouver le meilleur crédit immobilier ?
Réaliser une simulation gratuite

Appartement à AJACCIO
Appartement à AJACCIO
Appartement à AJACCIO
Appartement à AJACCIO
Appartement à AJACCIO
Appartement à AJACCIO
Appartement à AJACCIO
Appartement à AJACCIO
Appartement à AJACCIO
Appartement à AJACCIO
Appartement à AJACCIO
Appartement à AJACCIO
Appartement à AJACCIO
Appartement à AJACCIO
Appartement à AJACCIO
Ce site est protégé par reCAPTCHA la Politique de confidentialité et les Conditions d’utilisation de Google s’appliquent.
Obtenir un prêt immobilier au meilleur taux ?

En poursuivant votre navigation sans modifier vos paramètres, vous acceptez l'utilisation de cookies susceptibles de réaliser des statistiques de visite. Cliquez ici pour plus d'informations