Bénéficiez des services de nos partenaires locaux soigneusement sélectionnés
pour vous accompagner dans votre parcours d'achat immobilier

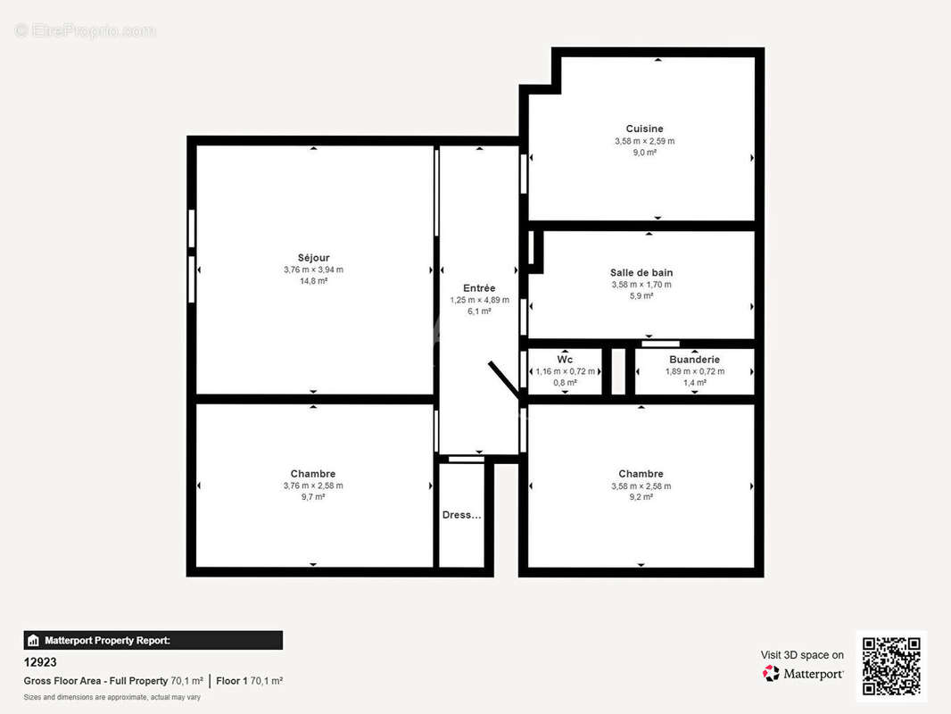
Appartement palaiseau 3 pièces 59.83 m²

— Palaiseau 91120 —
179 000 €
60 m²
3 pièces
balcon/terrasse

Nos partenaires locaux
l'Adresse PALAISEAU vous propose à la vente un appartement de 3 pièces situé au 1er étage dans une résidence calme et verdoyante. Il se compose d'une entrée, d'une cuisine indépendante, d'un salon, d'un séjour, d'un wc séparé, d'une salle de bains, d'une salle d'eau, de deux chambres ainsi que d'un balcon. En annexe : une cave en sous-sol. Travaux intérieurs à prévoir mais ravalement avec isolation de la copropriété voté et payé ! Idéalement situé, à proximité de toutes commodités (commerces, écoles, services) et des transports (RER B, bus), tout en étant proche de nombreux espaces verts, cet appartement offre un cadre de vie agréable et pratique au quotidien. Copropriété de 483 lots - dont 200 lots habitation. (Pas de procédure en cours). Charges annuelles : 3200 euros.
Voir plus

Référence: 12923
Bien en copropriété. Nombre de lots : 483. Charges de copropriété : 3200 €.
Honoraires à la charge du vendeur.
Barème des honoraires
DPE
A
B
C
D
E
F
G
GES
A
B
C
D
E
F
G

Prêt immobilier

Vous souhaitez connaître votre capacité d’emprunt et trouver le meilleur crédit immobilier ?
Réaliser une simulation gratuite

Appartement à PALAISEAU
Appartement à PALAISEAU
Appartement à PALAISEAU
Appartement à PALAISEAU
Appartement à PALAISEAU
Appartement à PALAISEAU
Ce site est protégé par reCAPTCHA la Politique de confidentialité et les Conditions d’utilisation de Google s’appliquent.
Obtenir un prêt immobilier au meilleur taux ?

En poursuivant votre navigation sans modifier vos paramètres, vous acceptez l'utilisation de cookies susceptibles de réaliser des statistiques de visite. Cliquez ici pour plus d'informations