Bénéficiez des services de nos partenaires locaux soigneusement sélectionnés
pour vous accompagner dans votre parcours d'achat immobilier

Appartement 49m² à la ferte-gaucher

— La Ferte-Gaucher 77320 —
74 900 €
49 m²
2 pièces

Nos partenaires locaux
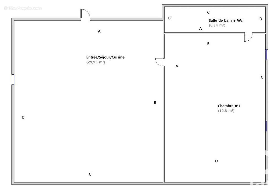
Iad France - Loïc Magne vous propose : F2 de 49 m² situé au 1er étage d'une copropriété de 11 lots.

Loué actuellement 390¤ plus 10¤ de charges mensuelles jusqu'à mi-janvier 2026.

Ce logement sera libre de toute occupation à partir de mi-janvier 2026.

Une cuisine ouverte donnant sur un salon de 30 m² et une chambre de 13 m².

Prévoir quelques travaux de rafraichissement.

Photos disponibles sur demande.

Une place de stationnement.

Fin de bail janvier 2026.



La presente annonce immobiliere vise 2 lots situés dans une copropriété de 19 lots au total et ne faisant l'objet d'aucune procédure en cours citée à l'article L. 721-1 du code de la construction et de l'habitation. Montant moyen mensuel de charges déclaré par le vendeur : 22¤ par mois (soit 264 ¤ annuel). Honoraires d'agence à la charge du vendeur.
Information d'affichage énergétique sur ce bien : classe ENERGIE D indice 222 et classe CLIMAT B indice 7. Les informations sur les risques auxquels ce bien est exposé, y compris l'obligation légale de débroussaillement, sont disponibles sur le site Géorisques : http://www.georisques.gouv.fr.
La présente annonce immobilière a été rédigée sous la responsabilité éditoriale de M Loïc Magne mandataire indépendant en immobilier (sans détention de fonds), agent commercial de la SAS I@D France immatriculé au RSAC de Meaux sous le numéro 952282838, titulaire de la carte de démarchage immobilier pour le compte de la société I@D France SAS.
Informations LOI ALUR :
Soumis au régime de copropriété.
Nombre de lots : 19.
Quote part annuelle(moyenne) : 264 euros.
Honoraires charge vendeur. (gedeon_6727_31759255)
Voir plus

Référence: 1663593
Bien en copropriété. Nombre de lots : 19. Charges de copropriété : 264 €.
Honoraires à la charge du vendeur.
DPE
A
B
C
D
E
F
G
GES
A
B
C
D
E
F
G

Prêt immobilier

Vous souhaitez connaître votre capacité d’emprunt et trouver le meilleur crédit immobilier ?
Réaliser une simulation gratuite

Photo 1 - Appartement à LA FERTE-GAUCHER
Photo 1
Photo 2 - Appartement à LA FERTE-GAUCHER
Photo 2
Ce site est protégé par reCAPTCHA la Politique de confidentialité et les Conditions d’utilisation de Google s’appliquent.
Obtenir un prêt immobilier au meilleur taux ?

En poursuivant votre navigation sans modifier vos paramètres, vous acceptez l'utilisation de cookies susceptibles de réaliser des statistiques de visite. Cliquez ici pour plus d'informations