Bénéficiez des services de nos partenaires locaux soigneusement sélectionnés
pour vous accompagner dans votre parcours d'achat immobilier

Maison de village + jardin lascours roquevaire

— Roquevaire 13360 —
370 000 €
105 m² / 130 m²
4 pièces
balcon/terrassejardin

Nos partenaires locaux
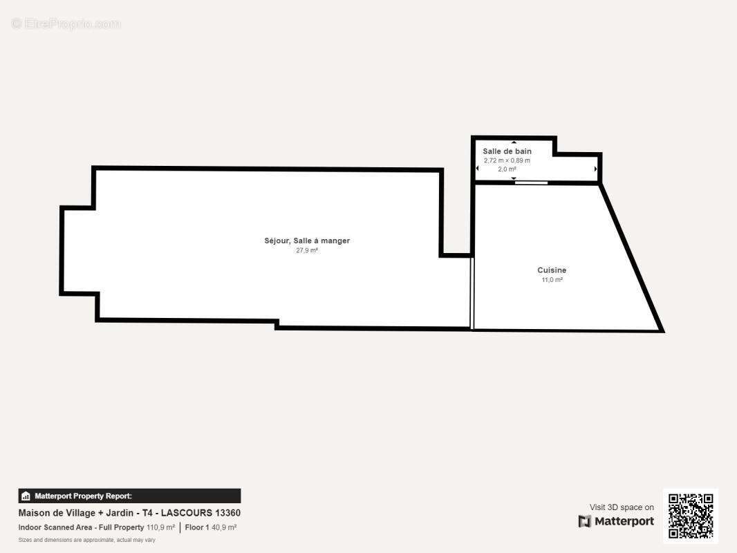
13360 LASCOURS , au cœur , Maison de village historique et mitoyenne d'un seul coté avec Jardin et Terrasse .
Maison de Village de plus de 105 m² habitables au calme absolu sur 3 niveaux .
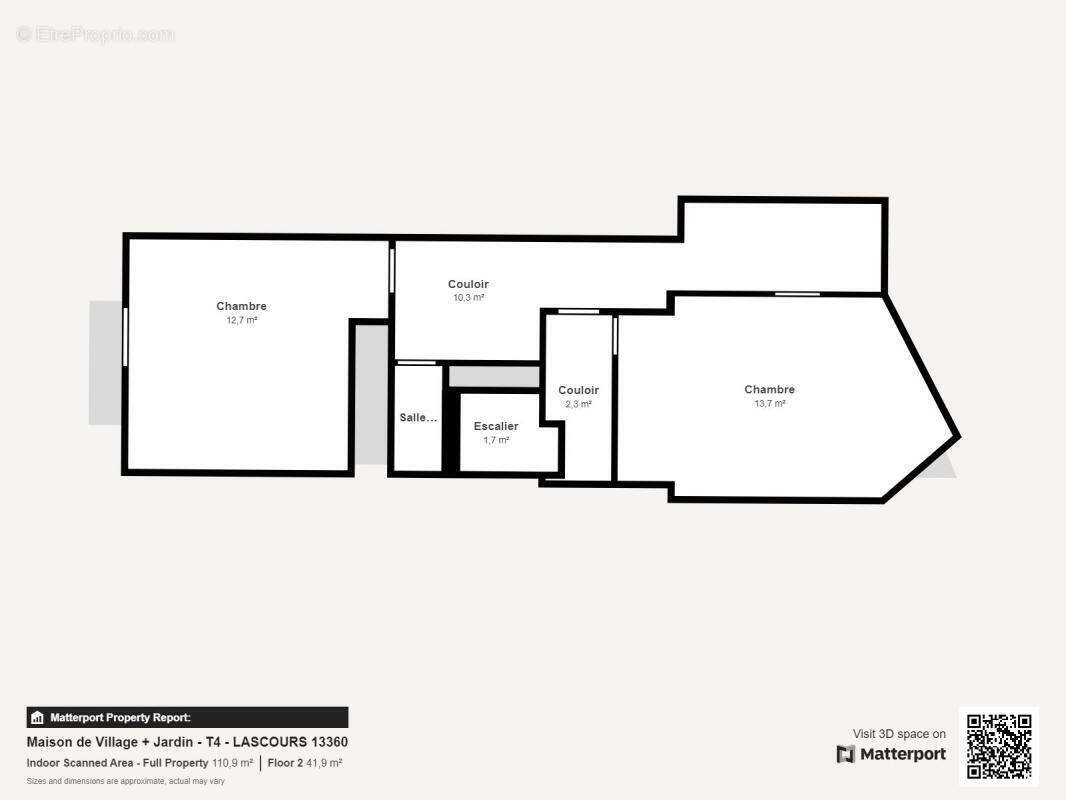
L'entrée dessert une première chambre équipée de sa propre salle de bain ;
l'escalier vous mène au premier niveau et dessert une salle d'eau lumineuse et récente ainsi que deux très grandes chambres climatisées de 15 et 17 m² environ chacune .
Le niveau -1 est accessible par un escalier en colimaçon et vous permet d'accéder aux très belles pièces de vie , séjour cuisine ( et Wc à ce niveau ) totalisant presque 40 m² rénovés avec accès sur la terrasse et le jardin de 66 m² , exposé SUD SUD-EST
Façades refaites en 2019 . Cabanon .
Menuiseries en double vitrage PVC et ALU dans le séjour
Puit/citerne sur la parcelle
Pas d'anomalies électriques , pas de plomb , pas d'amiante , pas de termites , très bon DPE .
Les informations sur les risques auxquels ce bien est exposé sont disponibles sur le site Géorisques : www.georisques.gouv.fr
Référence agence : 4259
Voir plus

Référence: 6EQL-R4X-XWW
Honoraires à la charge du vendeur.
Barème des honoraires
DPE
A
B
C
D
E
F
G
GES
A
B
C
D
E
F
G

Prêt immobilier

Vous souhaitez connaître votre capacité d’emprunt et trouver le meilleur crédit immobilier ?
Réaliser une simulation gratuite

Maison à ROQUEVAIRE
Maison à ROQUEVAIRE
Maison à ROQUEVAIRE
Maison à ROQUEVAIRE
Maison à ROQUEVAIRE
Maison à ROQUEVAIRE
Maison à ROQUEVAIRE
Maison à ROQUEVAIRE
Maison à ROQUEVAIRE
Maison à ROQUEVAIRE
Maison à ROQUEVAIRE
Maison à ROQUEVAIRE
Maison à ROQUEVAIRE
Maison à ROQUEVAIRE
Maison à ROQUEVAIRE
Maison à ROQUEVAIRE
Maison à ROQUEVAIRE
Maison à ROQUEVAIRE
Maison à ROQUEVAIRE
Maison à ROQUEVAIRE
Maison à ROQUEVAIRE
Maison à ROQUEVAIRE
Maison à ROQUEVAIRE
Maison à ROQUEVAIRE
Maison à ROQUEVAIRE
Ce site est protégé par reCAPTCHA la Politique de confidentialité et les Conditions d’utilisation de Google s’appliquent.
Obtenir un prêt immobilier au meilleur taux ?

En poursuivant votre navigation sans modifier vos paramètres, vous acceptez l'utilisation de cookies susceptibles de réaliser des statistiques de visite. Cliquez ici pour plus d'informations