Nantilly : maison de maître de 300m², terrain de 5000m²

— Nantilly 70100 —
180 000 €
300 m²
6 pièces
parkingbalcon/terrasse

En exclusivité chez Liberkeys !
Amoureux de la pierre et de la nature, laissez-vous séduire par cette majestueuse maison de maître située à moins de 10 minutes de Gray, dans la charmante commune de Nantilly.
Implantée au cœur d'un terrain arboré de 5000 m², cette bâtisse en pierre regorge de caractère et offre un potentiel exceptionnel. Avec ses 4 niveaux d'environ 150 m² chacun, entièrement à rénover, elle s'adresse aussi bien aux investisseurs qu'aux passionnés de patrimoine rêvant d'une résidence familiale à la campagne.
Détails de la maison :
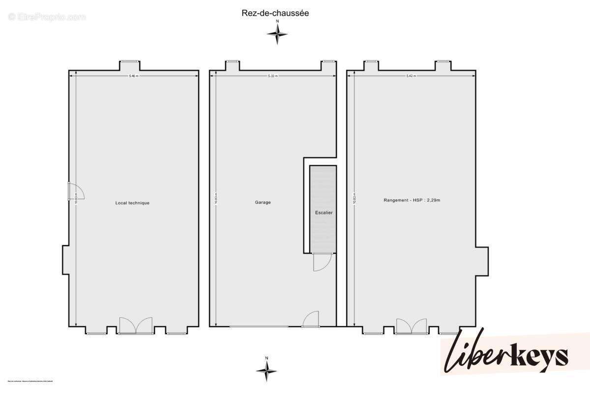
En rez-de-jardin :
Un vaste sous-sol de 190 m² divisé en trois parties, avec accès direct au jardin et à l'intérieur de la maison, idéal pour créer des espaces de vie supplémentaires ou des dépendances. Vous disposez également d'un bûcher et d'un appentis.
Au rez-de-chaussée :
Premier niveau d'habitation de 155 m², offrant un charme authentique grâce à ses 3 portes d'entrée, dont un magnifique porche en pierre.
- Une entrée spacieuse avec sols en pierre et plafond à la française, agrémentée d'un escalier menant à une mezzanine.
- Un salon lumineux de 22 m² avec vue sur le jardin.
- Une pièce centrale de 58 m² à rénover, bénéficiant d'un accès à la terrasse et à l'étage supérieur.
- Un espace aménagé de 57 m² comprenant notamment une cuisine et une salle d'eau, parfait pour habiter sur place durant les travaux.
Au 1er étage :
140 m² à rénover, incluant :
- Une mezzanine de 27 m², idéale pour un bureau ou un espace de détente.
- Deux pièces traversantes de 57 m² chacune, offrant de multiples possibilités d'aménagement.
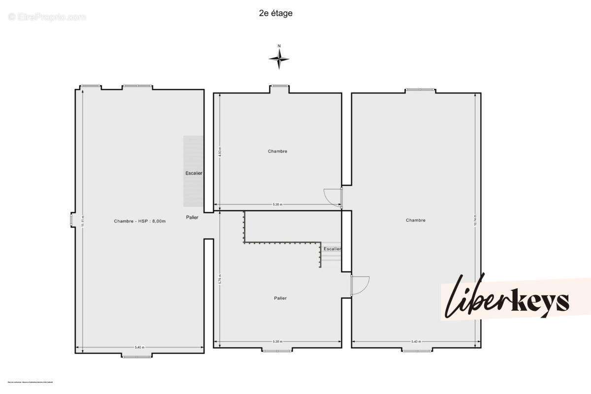
Au 2ème étage :
Des combles aménageables de plus de 150 m², permettant de réaliser un espace de vie supplémentaire selon vos envies.
Atouts supplémentaires :
Cheminées d'époque, un puits, et un authentique four à pain complètent le charme de cette demeure historique.
Absence de système de chauffage central ; bien non soumis au DPE.
Taxe foncière : 770€
Situation : 40 minutes de Dijon et de Besançon, 10 minutes du centre-ville de Gray.
Visite virtuelle disponible sur simple demande.
Les informations sur les risques auxquels ce bien est exposé sont disponibles sur le site Géorisques : https://www.georisques.gouv.fr
Ce bien vous plaît ? Contactez directement votre conseillère pour organiser une visite:
Sarah Regnault au o679563514, agent commercial EI, immatriculé au RSAC de Dijon sous le numéro 834 725 335.
Référence annonce : DOM12543.
Date de réalisation des diagnostics : 14/11/2024.
Les honoraires inclus dans le prix de vente sont à la charge de l'acquéreur.
Voir plus

Référence: DOM12543
Honoraires d'agence de 3.89% à la charge de l'acquéreur

Prêt immobilier

Vous souhaitez connaître votre capacité d’emprunt et trouver le meilleur crédit immobilier ?
Réaliser une simulation gratuite

Maison à NANTILLY
Maison à NANTILLY
Maison à NANTILLY
Maison à NANTILLY
Maison à NANTILLY
Maison à NANTILLY
Maison à NANTILLY
Maison à NANTILLY
Maison à NANTILLY
Maison à NANTILLY
Maison à NANTILLY
Maison à NANTILLY
Maison à NANTILLY
Maison à NANTILLY
Maison à NANTILLY
Maison à NANTILLY
Maison à NANTILLY
Maison à NANTILLY
Maison à NANTILLY
Ce site est protégé par reCAPTCHA la Politique de confidentialité et les Conditions d’utilisation de Google s’appliquent.
Obtenir un prêt immobilier au meilleur taux ?

En poursuivant votre navigation sans modifier vos paramètres, vous acceptez l'utilisation de cookies susceptibles de réaliser des statistiques de visite. Cliquez ici pour plus d'informations