Bénéficiez des services de nos partenaires locaux soigneusement sélectionnés
pour vous accompagner dans votre parcours d'achat immobilier

Maison 127m² à morainvilliers

— Morainvilliers 78630 —
535 000 €
127 m² / 506 m²
5 pièces
parkingbalcon/terrassejardin

Nos partenaires locaux
MORAINVILLIERS
Maison 5 pièces – 127m²
535 000€

78630 – MORAINVILLIERS – MAISON INDÉPENDANTE DE 127m², 5 PIECES, 4 CHAMBRES, GARAGE, TERRASSE, JARDIN, PLACES DE STATIONNEMENT - TERRAIN DE 506m².

Antoine Delabi, effiCity, vous propose à MORAINVILLIERS hameau de BURES, cette MAISON INDÉPENDANTE bâtie en 1990, AU CALME, dans une petite rue peu fréquentée, sur un TERRAIN de 506m².

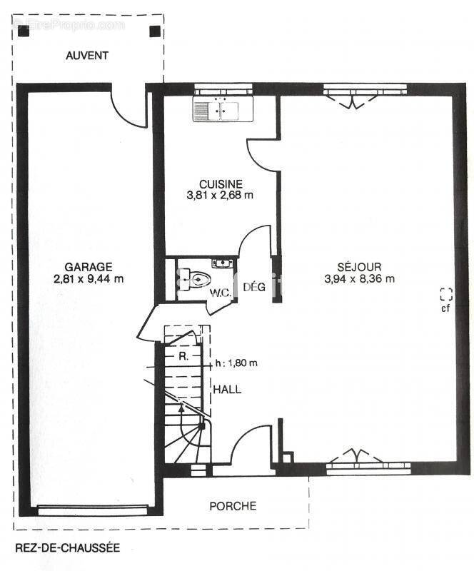
Elle se compose au rez-de-chaussée d'une ENTRÉE avec placard et d'un WC indépendant.
La PIÈCE DE VIE (salon + salle à manger) de 33m² ouvre via une grande porte-fenêtre sur la TERRASSE exposée PLEIN OUEST et le JARDIN. Equipée d'un poêle à pellets, elle communique via un passe-plat avec la CUISINE ÉQUIPÉE (hotte, plaque à induction, lave-vaisselle encastré, four, four à micro-ondes) qui, elle aussi, donne sur la terrasse. TRÈS LUMINEUX.

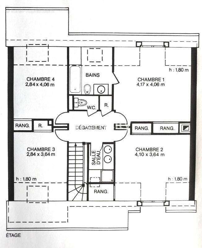
À l'étage, le pallier dessert DEUX CHAMBRES de 11m² et 12m², sous combles, équipées de VELUX NEUFS avec VOLETS SOLAIRES et placards intégrés. La SUITE PARENTALE de près de 18m² comprend elle aussi un placard intégré et une SALLE DE BAINS individuelle avec baignoire, lavabo et bidet. Enfin, une QUATRIÈME CHAMBRE de plus de 15m² avec dressing permet d'accueillir famille et amis, et/ou de faire du télétravail. Ce niveau est également pourvu d'une SALLE DE DOUCHES avec paroi vitrée et double vasque, et d'un WC INDÉPENDANT.

Le GARAGE, directement accessible depuis la maison, mesure plus de 26m².
Equipé des arrivées et évacuations d'eau, il permet d'aménager une BUANDERIE avec sortie directe sur le jardin.

UNE BELLE TERRASSE EN PIERRES DE PRÈS DE 20m² exposée plein OUEST invite aux déjeuners en extérieur, abritée par le STORE BANNE.
Une SECONDE TERRASSE, en bois, accueille sous le grand parasol le SALON DE JARDIN, qui permet de profiter du jardin arboré, entièrement clos et SANS VIS-A-VIS.

-Huisseries en PVC double vitrage ;
- Grande porte d'entrée TOUTE NEUVE ;
- Volets en aluminium changés en 2024 ;
- Poêle à pellets ;
- Ballon d'eau chaude remplacé en 2024 ;
- Radiateurs électriques à inertie ;
- Volets roulants électriques à l'étage
- Prise Green Up pour véhicules électriques ;
- Fibre ;
- Terrain piscinable ;

Environnement :
-Rue peu fréquentée qui préserve la quiétude du lieu ;
-École maternelle à 150m ;
- École élémentaire à 200m ;
- Arrêt pour le bus scolaire menant à l'école – collège – lycée Notre Dame les Oiseaux de Verneuil à 200m ;
- Arrêt de bus menant à la cité scolaire du Corbusier à Poissy à 400m ;
- Accès pour l'A13 et l'A14 pour relier Paris en 35mn à 10mn ;
- Centre-ville de Orgeval avec tous les commerces à 7mn ;
- Gare de Villennes-sur Seine (Transilien), futur RER E à 8mn ;
- Gare RER A de Poissy à 15mn ;
- Honfleur, Deauville et les plages du débarquement à 1h40 ;
- …

Pour plus d'informations merci de contacter Antoine DELABI par mail [Coordonnées masquées] ou par téléphone [Coordonnées masquées].
Les informations sur les risques auxquels ce bien est exposé sont disponibles sur le site Georisque : georisques. gouv. fr
Antoine Delabi - EI - est Agent Commercial mandataire en immobilier, immatriculé au Registre Spécial des Agents Commerciaux du Tribunal de Commerce de VERSAILLES sous le n°534123559.
Siège social du mandant : effiCity, 48 avenue de Villiers - 75017 PARIS - Société par Actions Simplifiée, société au capital de 132 373,05 euros, immatriculée au RCS Paris 497 617 746 et titulaire de la Carte professionnelle CPI 75[Coordonnées masquées]02 025 - CCI Paris IDF - Caisse de Garantie : GALIAN Assurances 89 rue de la Boétie 75008 Paris
Voir plus

Référence: 189983
Honoraires à la charge du vendeur.
Barème des honoraires
DPE
A
B
C
D
E
F
G
GES
A
B
C
D
E
F
G

Prêt immobilier

Vous souhaitez connaître votre capacité d’emprunt et trouver le meilleur crédit immobilier ?
Réaliser une simulation gratuite

Maison à MORAINVILLIERS
Maison à MORAINVILLIERS
Maison à MORAINVILLIERS
Maison à MORAINVILLIERS
Maison à MORAINVILLIERS
Maison à MORAINVILLIERS
Maison à MORAINVILLIERS
Maison à MORAINVILLIERS
Maison à MORAINVILLIERS
Maison à MORAINVILLIERS
Maison à MORAINVILLIERS
Maison à MORAINVILLIERS
Maison à MORAINVILLIERS
Ce site est protégé par reCAPTCHA la Politique de confidentialité et les Conditions d’utilisation de Google s’appliquent.
Obtenir un prêt immobilier au meilleur taux ?

En poursuivant votre navigation sans modifier vos paramètres, vous acceptez l'utilisation de cookies susceptibles de réaliser des statistiques de visite. Cliquez ici pour plus d'informations