Bénéficiez des services de nos partenaires locaux soigneusement sélectionnés
pour vous accompagner dans votre parcours d'achat immobilier

Mandelieu - t2 rénové - piscine

— Mandelieu-La-Napoule 06210 —
247 000 €
48 m²
2 pièces
parkingbalcon/terrasseascenseuraccès handicapé

Nos partenaires locaux
BAISSE DE PRIX
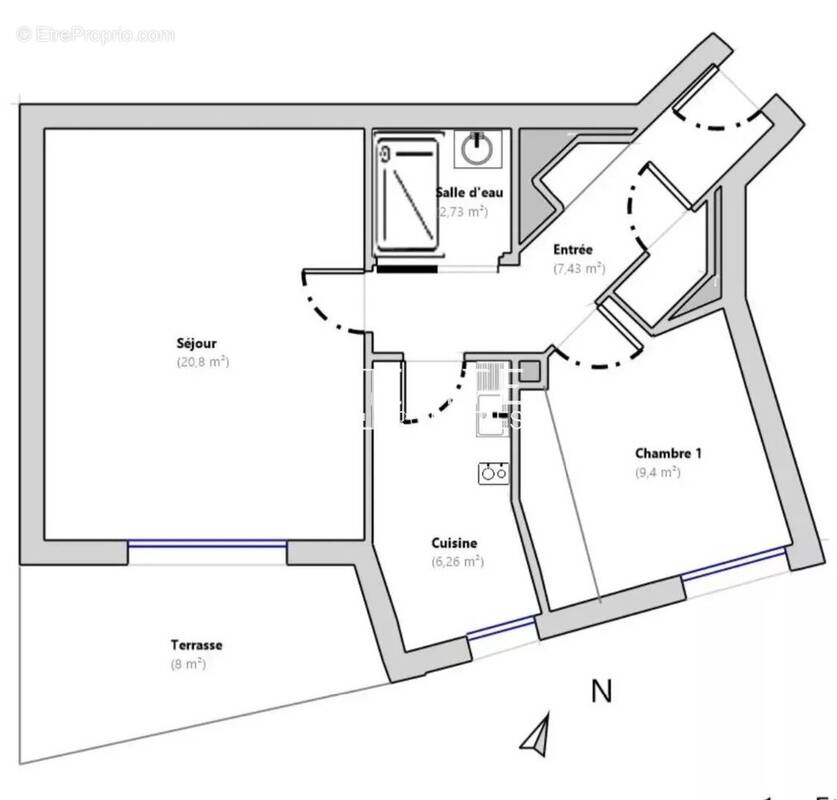
À découvrir sans tarder : Appartement 2 pièces de 48 m², entièrement rénové (2024) et climatisé, idéalement situé en plein centre-ville de Mandelieu.

Emplacement privilégié,à proximité immédiate de toutes commodités : écoles, commerces, gare routière, accès autoroutier, et à seulement 2 km des plages (navettes gratuites disponibles).

Situé au 1er étage d'une résidence sécurisée avec piscine, accessible par ascenseur, ce bien se compose de :

* Une entrée accueillante
* Une chambre avec dressing
* Une magnifique salle de bains
* Un WC indépendant
* Une cuisine semi-équipée (meubles hauts et bas, évier, plaque de cuisson)
* Un salon spacieux et lumineux
* Une belle terrasse pour profiter de l'extérieur
* Une piscine

Un emplacement de parking en sous-sol complète ce bien.

La résidence dispose également d’un ascenseur avec accès sécurisé par code, réservé aux personnes à mobilité réduite.

Charges maitrisées
Taxes foncières 729 euros
Voir plus

Référence: 86052402
Barème des honoraires
DPE
A
B
C
D
E
F
G
GES
A
B
C
D
E
F
G

Prêt immobilier

Vous souhaitez connaître votre capacité d’emprunt et trouver le meilleur crédit immobilier ?
Réaliser une simulation gratuite

Appartement à MANDELIEU-LA-NAPOULE
Appartement à MANDELIEU-LA-NAPOULE
Appartement à MANDELIEU-LA-NAPOULE
Appartement à MANDELIEU-LA-NAPOULE
Appartement à MANDELIEU-LA-NAPOULE
Appartement à MANDELIEU-LA-NAPOULE
Appartement à MANDELIEU-LA-NAPOULE
Appartement à MANDELIEU-LA-NAPOULE
Appartement à MANDELIEU-LA-NAPOULE
Appartement à MANDELIEU-LA-NAPOULE
Appartement à MANDELIEU-LA-NAPOULE
Appartement à MANDELIEU-LA-NAPOULE
Ce site est protégé par reCAPTCHA la Politique de confidentialité et les Conditions d’utilisation de Google s’appliquent.
Obtenir un prêt immobilier au meilleur taux ?

En poursuivant votre navigation sans modifier vos paramètres, vous acceptez l'utilisation de cookies susceptibles de réaliser des statistiques de visite. Cliquez ici pour plus d'informations