Bénéficiez des services de nos partenaires locaux soigneusement sélectionnés
pour vous accompagner dans votre parcours d'achat immobilier

"carre d'or" - t5 - terrasse

— Marseille-8e 13008 —
550 000 €
150 m²
6 pièces
parkingbalcon/terrasseascenseuraccès handicapé

Nos partenaires locaux
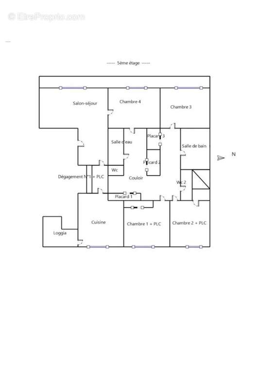
C'est chez Dakey's que ça se passe ! On vous propose aujourd'hui un magnifique T5 d'une surface habitable de 150 m² traversant au sein d'une résidence de standing sécurisé avec gardien.

L'appartement s'organise comme ceci :

Côté nuit, se trouve 4 chambres , 2 salles de bains et 2 toilettes séparés.

Côté Jour, vous serez séduit par le charme que dégage le grand séjour avec de grandes baies vitrées donnant sur une terrasse de 25m2.
Une cuisine séparée en bon état et épurée donne sur la loggia.

Une cave de 5m2 est vendu avec le bien.

Emplacement idéal, avec commerces, écoles, transports aux pieds de l'immeuble sur la prestigieuse rue Paradis.


TF : 4223 €
Nombre de lots de la copropriété : 30, Montant moyen annuel de la quote-part de charges (eau froide/Eau Chaude/Chauffage /Gardien /entretien des parties communes/ascenseur) : 6588 euros soit 549 euros par mois.

Superfice Loi Carrez totale : 146,96 m2
Surface au sol totale : 175,32 m2
Consommation énergétique : 187 kWh/m2/an.
Emission de gaz à effet de serre : 40kg CO2/m2/an

Honoraires à la charge de : Vendeur

Bien rare à la vente,
Venez le visiter sans tarder !

Possibilité d'acquérir dans la résidence un box en sus.

Les informations sur les risques auxquels ce bien est exposé sont disponibles sur le site Géorisques : www.georisques.gouv.fr »
Voir plus

Référence: 8129875
Barème des honoraires
DPE
A
B
C
D
E
F
G
GES
A
B
C
D
E
F
G

Prêt immobilier

Vous souhaitez connaître votre capacité d’emprunt et trouver le meilleur crédit immobilier ?
Réaliser une simulation gratuite

Appartement à MARSEILLE-8E
Appartement à MARSEILLE-8E
Appartement à MARSEILLE-8E
Appartement à MARSEILLE-8E
Appartement à MARSEILLE-8E
Appartement à MARSEILLE-8E
Appartement à MARSEILLE-8E
Appartement à MARSEILLE-8E
Appartement à MARSEILLE-8E
Appartement à MARSEILLE-8E
Appartement à MARSEILLE-8E
Appartement à MARSEILLE-8E
Ce site est protégé par reCAPTCHA la Politique de confidentialité et les Conditions d’utilisation de Google s’appliquent.
Obtenir un prêt immobilier au meilleur taux ?

En poursuivant votre navigation sans modifier vos paramètres, vous acceptez l'utilisation de cookies susceptibles de réaliser des statistiques de visite. Cliquez ici pour plus d'informations