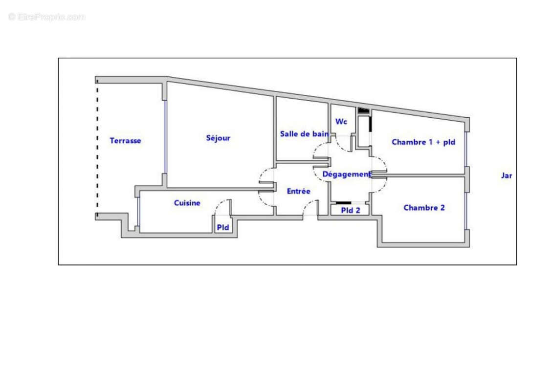
Meudon, route des gardes, appartement de 3 pièces de 65.02m2 avec terrasse de 18m2, jardin privatif de 80m2, c

— Meudon 92190 —
495 000 €
65 m²
3 pièces
parkingbalcon/terrasse

Meudon, Route des Gardes, au sein d'une résidence sécurisée et bien entretenue de 1985, à proximité immédiate des transports.
L'immobilier Sans vis-à-vis vous propose, au 1er étage de la résidence, un appartement traversant de 65m2 en rez-de-jardin composé de: - Une entrée - Une cuisine séparé (possibilité d'ouvrir sur le séjour) de 10m2 - Un séjour de 20m2 donnant sur une terrasse de 18m2 - Deux chambres de 11m2 donnant sur un jardin privatif de 80m2 - Une salle de bain - Un WC séparé
Une cave ainsi qu'un double box en sous-sol d'environ 40m2 complètent ce bien Chauffage au sol collectif, eau chaude individuelle électrique
Bien rare ! A visiter sans plus tarder.
Votre contact: Mylène au [Coordonnées masquées] [Coordonnées masquées]
Voir plus

Barème des honoraires
DPE
A
B
C
D
E
F
G
GES
A
B
C
D
E
F
G

Prêt immobilier

Vous souhaitez connaître votre capacité d’emprunt et trouver le meilleur crédit immobilier ?
Réaliser une simulation gratuite

Appartement à MEUDON
Appartement à MEUDON
Appartement à MEUDON
Appartement à MEUDON
Appartement à MEUDON
Appartement à MEUDON
Appartement à MEUDON
Appartement à MEUDON
Appartement à MEUDON
Appartement à MEUDON
Appartement à MEUDON
Appartement à MEUDON
Ce site est protégé par reCAPTCHA la Politique de confidentialité et les Conditions d’utilisation de Google s’appliquent.
Obtenir un prêt immobilier au meilleur taux ?

En poursuivant votre navigation sans modifier vos paramètres, vous acceptez l'utilisation de cookies susceptibles de réaliser des statistiques de visite. Cliquez ici pour plus d'informations