Maison 305m² à thurins

— Thurins 69510 —
320 000 €
305 m² / 3 286 m²
10 pièces
parkingbalcon/terrassejardin

GRANGE À AMÉNAGER AVEC PERMIS ACCEPTÉ – THURINS (69510)

RARE À LA VENTE !
Sur la charmante commune de Thurins, au coeur des Monts du Lyonnais, venez découvrir cette magnifique grange en pierre de taille pleine de potentielle, située sur un terrain de plus de 3 000 m² offrant une vue panoramique exceptionnelle sur la campagne environnante.

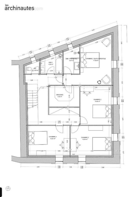
Le projet prévoit la transformation de cette bâtisse en une spacieuse maison familiale de 220 m² habitables, dont le permis de construire a déjà été déposé et validé. Les plans ont été pensés pour allier modernité, confort et volumes généreux :
- 5 chambres dont une suite parentale de plus de 21 m²
- Pièce de vie lumineuse de plus de 65 m²
- Cuisine d'été idéale pour les beaux jours
- Deux terrasses de 41 m² et 54 m² pour profiter pleinement du cadre naturel
- Terrain de plus de 3 000 m², sans vis-à-vis, dans un environnement calme et bucolique.
Le montant des travaux est estimé (clé en main) à 420.000€, soit un projet global à 3.300€/m2 pour une maison neuve.

En complément, la propriété dispose également d'un hangar indépendant de 85 m², offrant de nombreuses possibilités :
- Garage pour plusieurs véhicules,
- Espace de stockage,
- Ou potentiel de réaménagement selon vos besoins.

Atouts majeurs :
Permis de construire validé : démarrage rapide du chantier
Terrain spacieux et dégagé, sans vis-à-vis
À seulement 30 minutes de Lyon, accès facile aux commodités
Cadre de vie idéal pour une résidence principale ou un projet secondaire

Pour plus d'informations ou pour organiser une visite, contactez-moi sans attendre !

Honoraires à la charge du vendeur. Non soumis au DPE. Les informations sur les risques auxquels ce bien est exposé sont disponibles sur le site Géorisques : georisques.gouv.fr.

Votre conseiller NOVEA Immobilier Lyon 5 : Céline EPINETTE
Agent commercial (Entreprise individuelle)
RSAC 887 861 227
Retrouvez l'annonce de l'agence immobilière NOVEA Immobilier Lyon 5 sur : https://www.novea-immobilier.fr/ref/VM2848
Voir plus

Référence: VM2848-NOVEA-CE
Honoraires à la charge du vendeur.
Barème des honoraires

Prêt immobilier

Vous souhaitez connaître votre capacité d’emprunt et trouver le meilleur crédit immobilier ?
Réaliser une simulation gratuite

Maison à THURINS
Maison à THURINS
Maison à THURINS
Maison à THURINS
Maison à THURINS
Maison à THURINS
Maison à THURINS
Maison à THURINS
Maison à THURINS
Ce site est protégé par reCAPTCHA la Politique de confidentialité et les Conditions d’utilisation de Google s’appliquent.
Obtenir un prêt immobilier au meilleur taux ?

En poursuivant votre navigation sans modifier vos paramètres, vous acceptez l'utilisation de cookies susceptibles de réaliser des statistiques de visite. Cliquez ici pour plus d'informations