Bénéficiez des services de nos partenaires locaux soigneusement sélectionnés
pour vous accompagner dans votre parcours d'achat immobilier

Maison non mitoyenne, 5 chambres, parcelle de 889 m2 rueil-malmaison, village de buzenval

— Rueil-Malmaison 92500 —
899 000 €
126 m² / 889 m²
5 pièces
parkingbalcon/terrassejardin

Nos partenaires locaux










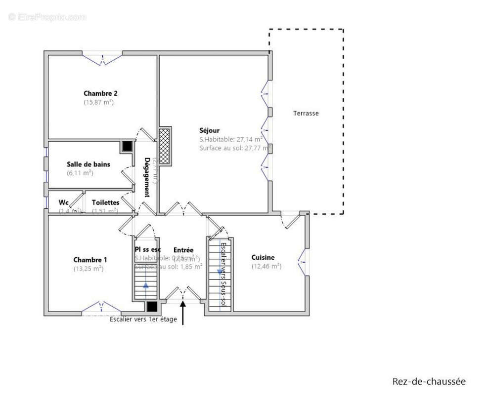
L'Agence de l'Empereur vous présente en exclusivité cette maison non mitoyenne de 5 chambres, 126 m2 Carrez 187 m2 au sol habitables (hors sous-sol semi-enterré et garage de 125 m2), soit un total de 312 m2 de surface utile. Construite au cœur d'une très belle parcelle de 889 m2 dans le quartier Buzenval de Rueil-Malmaison, à deux pas des commerces. Au rez-de-chaussée de plain-pied avec le jardin, environ 88 m2 s'organisent de la façon suivante : une entrée, un séjour de près de 28 m2 avec cheminée, ouvert côté sud sur une terrasse de 22 m2 et le jardin, la cuisine de 12 m2, une première chambre de 13 m2, puis une partie nuit fermée avec les commodités, la salle de bains et une seconde chambre de 16 m2. À l'étage, espace en partie mansardé comprend un palier, trois chambres, une salle d'eau et des toilettes. Depuis la cuisine, un escalier mène au sous-sol semi-enterré, dont seule la moitié est enterrée à environ 50 cm du jardin, avec de belles fenêtres apportant une lumière naturelle, permettant d’aménager 30 m2 habitables suplémentaire sans agrandissement. Vous aimerez le jardin et ses beaux espaces propices aux jeux des enfants, le garage double séparé en enfilade accessible par un portail électrique, la qualité de cette construction traditionnelle, l'adresse et le gros potentiel de réaménagement des différents volumes de cette maison aux quatre orientations. Ce bien pourra faire l’objet d’une modification/rehausse de toiture, compte tenu des règles du PLU en vigueur à Rueil dans cette zone Uec.
Quartier Vieux Village de Buzenval, petits commerces à 2 mins à pied (supérettes, caviste, banque, restaurants), bon maillage de bus (arrêt 467), établissements scolaires publics et privés à quelques minutes. Chaudière Frisquet d'environ 10 ans, actuellement au gaz, pouvant éventuellement bénéficier des aides pour l'installation d'une PAC air/eau compatible avec les radiateurs en fonte de la maison. Avec le remplacement des huisseries en simple vitrage, le DPE actuel 'E' passerait vraisemblablement en 'C' ou en 'D' haut.









Voir plus

Référence: 8468
Honoraires d'agence de 3.93% à la charge de l'acquéreur
Barème des honoraires
DPE
A
B
C
D
E
F
G
GES
A
B
C
D
E
F
G

Prêt immobilier

Vous souhaitez connaître votre capacité d’emprunt et trouver le meilleur crédit immobilier ?
Réaliser une simulation gratuite

Maison à RUEIL-MALMAISON
Maison à RUEIL-MALMAISON
Maison à RUEIL-MALMAISON
Maison à RUEIL-MALMAISON
Maison à RUEIL-MALMAISON
Maison à RUEIL-MALMAISON
Maison à RUEIL-MALMAISON
Maison à RUEIL-MALMAISON
Maison à RUEIL-MALMAISON
Maison à RUEIL-MALMAISON
Maison à RUEIL-MALMAISON
Maison à RUEIL-MALMAISON
Maison à RUEIL-MALMAISON
Maison à RUEIL-MALMAISON
Maison à RUEIL-MALMAISON
Maison à RUEIL-MALMAISON
Maison à RUEIL-MALMAISON
Maison à RUEIL-MALMAISON
Maison à RUEIL-MALMAISON
Maison à RUEIL-MALMAISON
Maison à RUEIL-MALMAISON
Maison à RUEIL-MALMAISON
Ce site est protégé par reCAPTCHA la Politique de confidentialité et les Conditions d’utilisation de Google s’appliquent.
Obtenir un prêt immobilier au meilleur taux ?

En poursuivant votre navigation sans modifier vos paramètres, vous acceptez l'utilisation de cookies susceptibles de réaliser des statistiques de visite. Cliquez ici pour plus d'informations