Bénéficiez des services de nos partenaires locaux soigneusement sélectionnés
pour vous accompagner dans votre parcours d'achat immobilier

Deux appartements de 70 m2 chacun au centre de pézenas

— Pezenas 34120 —
140 000 €
146 m²
6 pièces

Nos partenaires locaux
Au centre-ville de Pézenas, dans un immeuble en R+2, deux appartements de 70 m2 habitables chacun avec de belles hauteurs sous plafond à rénover .

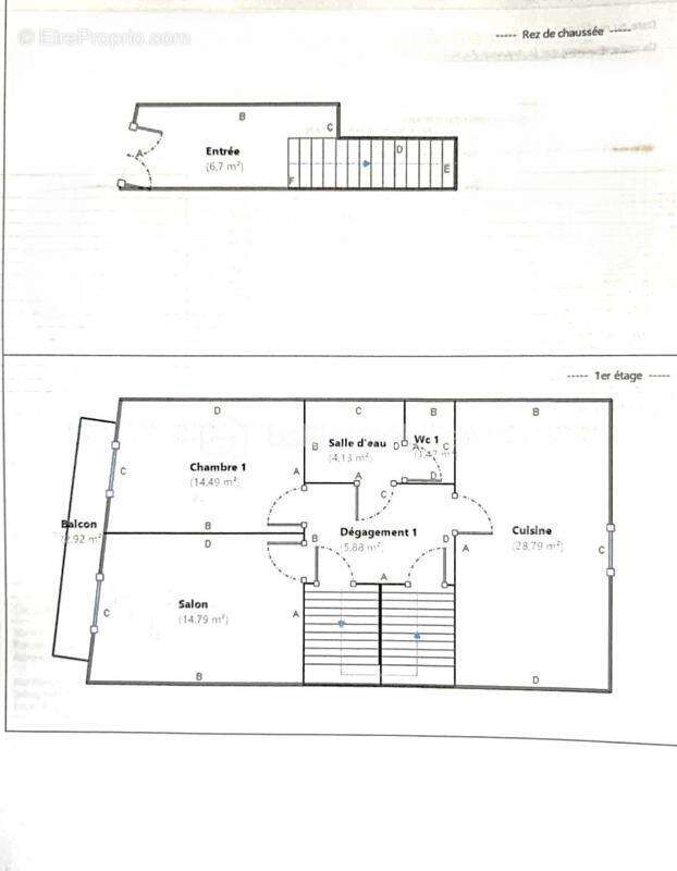
Au rez-de-chaussée, se trouve l'entrée ( 6.7 m2)
Au premier étage, un appartement qui se compose d'une entrée ( 5.88 m2), une cuisine ( 28.79 m2) deux chambres ( 14.79 et 14.49 m2 ) une salle d'eau ( 4.13 m2) et un WC 5 1.47 m2 )
Au deuxième étage, un autre appartement très lumineux avec une entrée (6.11 m2 ), un salon avec une cuisine semi-ouverte ( 29. 30 m2 ) deux chambres ( 13.17 et 14.47 m2 ) une salle de bain ( ( 4.07 m2 ) et un WC (1.62 m2 ).
Deux possibilités s'offrent à vous, soit créer un très grand appartement de 146 m2 sur 2 niveaux ou la possibilité de les séparer en deux appartements chose qui n'est pas faite à ce jour.
L'ensemble est à rénover.

Les +
- Centre-ville de Pézenas
- Appartements lumineux
-Doubles vitrages effectués sur la façade de l'immeuble

Pézenas est un village très prisé avec toutes les commodités et se situe à 5 mn de l' A75, 10 mn de l 'A9, 20 mn des plages,10 mn de Béziers et 45 mn de Montpellier.

N'hésitez pas à me contacter pour plus d'informations.

Cette annonce référence 300500 vous est présentée par votre agent commercial BSK Immobilier SYLVIE LE GUEVEL (EI) immatriculé au RSAC de BEZIERS (34500) sous le numéro 40[Coordonnées masquées]32.

Prix du bien : 140 000,00 €
Les honoraires d'agence sont à la charge du vendeur.

A propos de la copropriété :
Pas de procédure en cours.
Nombre de lots : 4
Charges prévisionnelles annuelles : 0,00 €

A propos des performances énergétiques :
Date de réalisation du diagnostic énergétique : 06/01/2025
Score DPE : 146 kWhEP/m²/an
Score GES : 25 kgepCO2/m²/an
Montant estimé des dépenses annuelles d'énergie pour un usage standard : entre 1930.00 € et 2680.00 € par an. Prix moyens des énergies indexés sur l'année 2025 (abonnements compris).

Les informations sur les risques auxquels ce bien est exposé sont disponibles sur le site Géorisques : www.georisques.gouv.fr
Voir plus

Référence: 300500
Bien en copropriété. Nombre de lots : 4.
Honoraires à la charge du vendeur.
DPE
A
B
C
D
E
F
G
GES
A
B
C
D
E
F
G

Prêt immobilier

Vous souhaitez connaître votre capacité d’emprunt et trouver le meilleur crédit immobilier ?
Réaliser une simulation gratuite

Appartement à PEZENAS
Appartement à PEZENAS
Appartement à PEZENAS
Appartement à PEZENAS
Appartement à PEZENAS
Appartement à PEZENAS
Appartement à PEZENAS
Appartement à PEZENAS
Appartement à PEZENAS
Appartement à PEZENAS
Appartement à PEZENAS
Appartement à PEZENAS
Appartement à PEZENAS
Ce site est protégé par reCAPTCHA la Politique de confidentialité et les Conditions d’utilisation de Google s’appliquent.
Obtenir un prêt immobilier au meilleur taux ?

En poursuivant votre navigation sans modifier vos paramètres, vous acceptez l'utilisation de cookies susceptibles de réaliser des statistiques de visite. Cliquez ici pour plus d'informations