Magalas(34) a vendre terrain construtible de 919 m2 avec villa plain pied 4 faces, secteur calme

— Magalas 34480 —
490 800 €
919 m²

Vous rêvez de bâtir votre villa contemporaine de plain-pied dans un environnement calme et sans vis à vis, proche des commerces !

Je vous propose ce terrain de 919 m2 viabilisé et piscinable.

Conçu par un architecte, votre projet sera pensé dans les moindres détails pour répondre à toutes vos envies et donner vie à un lieu unique, à votre image.

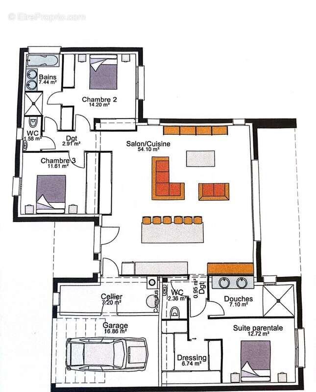
DESCRIPTION DU PROJET

Cette villa d'une surface habitable de 128,91 m2 sera conçue avec un espace de vie de 54 m2 s'articulant autour d'un salon/séjour et cuisine ouverte.
De plus, elle est composée de trois chambres dont une suite parentale d'environ 29 m2 avec douche italienne , double vasque, dressing et WC séparé. Une seconde salle de bain ainsi qu'un cellier et un WC individuel viennent compléter cette villa.

STATIONNEMENT PRIVATIF

Un garage de 16m2 ainsi que plusieurs places de stationnement.

EMPLACEMENT PRIVILEGIE

- 20 MN Béziers
- 30 MN Pézénas
- 30 MN Valras Plage

Une opportunité exceptionnelle à ne pas manquer dans un cadre paisible, à proximité de Béziers et proche de la
mer pour profiter de la nature sans renoncer au confort de la ville.

Les + : dernières normes environnementales, à 5 mn de l'école primaire Capitaine Bonnet et du collège Les Arbourys.

Ce projet est fait pour vous !

N'hésitez pas à me contacter pour organiser une visite au [Coordonnées masquées] M. Vermot de Boisrolin Pascal
Les honoraires sont à la charge du vendeur.
Les informations sur les risques auxquels ce bien est exposé sont disponibles sur le site Géorisques : www. georisques. gouv. fr.

Réseau Immobilier CAPIFRANCE - Votre agent commercial (RSAC N°511 800 104 - Greffe de MONTPELLIER) Pascal VERMOT-DE-BOISROLIN Entrepreneur Individuel [Coordonnées masquées] - Réf.915503
Voir plus

Référence: 340932217423
Honoraires à la charge du vendeur.

Prêt immobilier

Vous souhaitez connaître votre capacité d’emprunt et trouver le meilleur crédit immobilier ?
Réaliser une simulation gratuite

Terrain à MAGALAS
Terrain à MAGALAS
Terrain à MAGALAS
Terrain à MAGALAS
Terrain à MAGALAS
Ce site est protégé par reCAPTCHA la Politique de confidentialité et les Conditions d’utilisation de Google s’appliquent.
Obtenir un prêt immobilier au meilleur taux ?

En poursuivant votre navigation sans modifier vos paramètres, vous acceptez l'utilisation de cookies susceptibles de réaliser des statistiques de visite. Cliquez ici pour plus d'informations