Bénéficiez des services de nos partenaires locaux soigneusement sélectionnés
pour vous accompagner dans votre parcours d'achat immobilier

Maison à vendre 5 pièces toulon (83) la serinette

— Toulon 83000 —
440 000 €
95 m² / 305 m²
5 pièces
parkingbalcon/terrassejardin

Nos partenaires locaux
Toulon – Quartier prisé de La Serinette

Spacieuse maison avec dépendances et fort potentiel.

À deux pas du centre-ville, des commerces, des écoles et non loin des plages, venez découvrir cette maison familiale au charme authentique offrant de multiples possibilités d'aménagement.

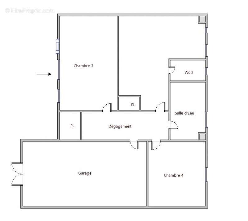
En rez-de-chaussée, vous profiterez d'un grand garage ainsi que d'un appartement indépendant de 3 pièces, idéal pour accueillir famille, amis ou générer un revenu locatif.

À l'étage, la maison se compose actuellement de 3 pièces, d'une vaste cuisine et d'une salle de bains, le tout pouvant être repensé et réorganisé selon vos envies pour créer un intérieur moderne et fonctionnel.

L'extérieur n'est pas en reste : un agréable jardin arboré accueille 2 dépendances, parfaites pour créer un espace détente, un atelier ou un coin cosy au calme.

Une maison rare sur le secteur, à rénover selon vos goûts, avec un énorme potentiel pour devenir un véritable havre de paix proche de toutes commodités.

À visiter sans tarder !

Contact Luc MARIDET CAPIFRANCE

Les honoraires sont à la charge du vendeur.
Logement à consommation énergétique excessive : classe F
Les informations sur les risques auxquels ce bien est exposé sont disponibles sur le site Géorisques : www. georisques. gouv. fr.

Réseau Immobilier CAPIFRANCE - Votre agent commercial (RSAC N°838 560 159 - Greffe de TOULON) Luc MARIDET Entrepreneur Individuel à Responsabilité Limitée [Coordonnées masquées] - Réf.918553
Voir plus

Référence: 340935798598
Honoraires à la charge du vendeur.
DPE
A
B
C
D
E
F
G
GES
A
B
C
D
E
F
G

Prêt immobilier

Vous souhaitez connaître votre capacité d’emprunt et trouver le meilleur crédit immobilier ?
Réaliser une simulation gratuite

Maison à TOULON
Maison à TOULON
Maison à TOULON
Maison à TOULON
Maison à TOULON
Maison à TOULON
Maison à TOULON
Maison à TOULON
Maison à TOULON
Maison à TOULON
Maison à TOULON
Maison à TOULON
Maison à TOULON
Maison à TOULON
Maison à TOULON
Maison à TOULON
Maison à TOULON
Maison à TOULON
Maison à TOULON
Maison à TOULON
Maison à TOULON
Maison à TOULON
Maison à TOULON
Maison à TOULON
Maison à TOULON
Maison à TOULON
Maison à TOULON
Maison à TOULON
Maison à TOULON
Maison à TOULON
Ce site est protégé par reCAPTCHA la Politique de confidentialité et les Conditions d’utilisation de Google s’appliquent.
Obtenir un prêt immobilier au meilleur taux ?

En poursuivant votre navigation sans modifier vos paramètres, vous acceptez l'utilisation de cookies susceptibles de réaliser des statistiques de visite. Cliquez ici pour plus d'informations