Bénéficiez des services de nos partenaires locaux soigneusement sélectionnés
pour vous accompagner dans votre parcours d'achat immobilier

Cœur de village – maison de village a renover 4 pièces de 132 m² avec jardin, garage et combles aménageables

— Portet-Sur-Garonne 31120 —
240 000 €
132 m²
4 pièces
parking

Nos partenaires locaux
En exclusivité,

Venez découvrir cette maison de village, située au calme, à 1 minute à pied des commerces et services du cœur de Village de Portet-sur-Garonne, à proximité de la Garonne, des parcs et de toutes commodités.
Bus à quelques pas, accessibilité téléphérique et centre-ville de Toulouse en 30 mn,
Gare de Portet-sur-Garonne à 5 mn de bus, Toulouse à 10 mn de train,
Périphérique à 5 mn de voiture.

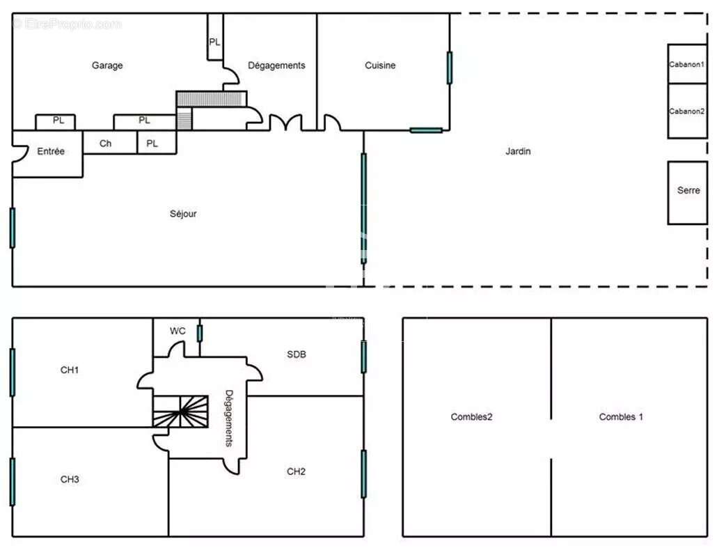
Cette maison de 130 m² A RENOVER se situe très au calme et dispose d’un joli potentiel pour accueillir un cadre de vie paisible et recherché.

Au rez-de-chaussée, vous découvrirez une belle pièce de vie traversante de 30,7 m² orientée ouest-est disposant d’une cheminée, ainsi qu’une cuisine séparée de 16,79 m², toutes deux ouvertes sur un jardin bucolique et sans vis-à-vis.

Un dégagement généreux de 11 m² avec placard permet d’accéder au garage de 19,64 m² (carrelé avec espaces de rangement) ainsi qu’au premier étage. Ce dernier accueille 3 grandes chambres (16,47 m², 16,62 m² et 18,05 m² - dont 2 avec placards), une salle de bain avec baignoire et douche (9,91 m²), ainsi des toilettes séparées avec lave-mains.

Un escalier escamotable mène aux combles, aménageables à votre guise.

Cette charmante maison prend place au sein d’une parcelle arborée et piscinable de 260 m².

Un bien disposant d’un JOLI POTENTIEL !

Contactez-nous pour tout complément d’information ou pour organiser une visite, nous vous accompagnons dans votre projet immobilier.

SARL au capital de 1 000 € RCS Toulouse 893 458 547 Code NAF : 6831Z
Siège social : 25 rue des Crouzettes 31120 PORTET SUR GARONNE – France
Carte professionnelle « Transaction sur immeuble et fonds de commerce » N° CPI 000 030 délivrée par la CCI de Toulouse (Haute-Garonne).

Honoraires à la charge de : Vendeur
Date de réalisation du diagnostic énergétique : 30/07/2025. Montant estimé des dépenses annuelles d'énergie pour un usage standard : entre 2 615 € et 3 537 € par an. Prix moyens des énergies indexés sur les années 2021 à 2023 (abonnements compris). Consommation énergie primaire : 261 kWh/m²/an. Consommation énergie finale : 113 kWh/m²/an.

Les informations sur les risques auxquels ce bien est exposé sont disponibles sur le site Géorisques : georisques.gouv
Voir plus

Référence: 85611465
DPE
A
B
C
D
E
F
G
GES
A
B
C
D
E
F
G

Prêt immobilier

Vous souhaitez connaître votre capacité d’emprunt et trouver le meilleur crédit immobilier ?
Réaliser une simulation gratuite

Maison à PORTET-SUR-GARONNE
Maison à PORTET-SUR-GARONNE
Maison à PORTET-SUR-GARONNE
Maison à PORTET-SUR-GARONNE
Maison à PORTET-SUR-GARONNE
Maison à PORTET-SUR-GARONNE
Maison à PORTET-SUR-GARONNE
Maison à PORTET-SUR-GARONNE
Maison à PORTET-SUR-GARONNE
Maison à PORTET-SUR-GARONNE
Maison à PORTET-SUR-GARONNE
Maison à PORTET-SUR-GARONNE
Maison à PORTET-SUR-GARONNE
Ce site est protégé par reCAPTCHA la Politique de confidentialité et les Conditions d’utilisation de Google s’appliquent.
Obtenir un prêt immobilier au meilleur taux ?

En poursuivant votre navigation sans modifier vos paramètres, vous acceptez l'utilisation de cookies susceptibles de réaliser des statistiques de visite. Cliquez ici pour plus d'informations