Bien rare / fort potentiel / deficit foncier – appartement traversant de 105 m² a renover situé en cœur de ville, avec garage et

— Frouzins 31270 —
200 000 €
105 m² / 250 m²
4 pièces
parkingjardin

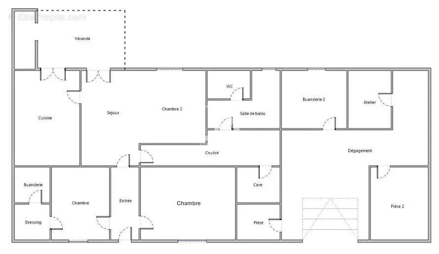
Venez découvrir cet appartement à fort potentiel A RENOVER situé en rez-de-chaussée d’une belle maison de ville de fin XIXéme/début XXème siècle, scindée en deux lieux de vie séparés (un par niveau), chacun bénéficiant d’une entrée indépendante.

L’appartement du 1er étage est également en vente, une rénovation globale est envisageable pour divers usages : résidence principale, lieu d’activités de services ou autres…

En cœur de ville de FROUZINS, à quelques pas des commerces, services, écoles et collège.
Arrêt de bus à 5 mn, gare de Portet-sur-Garonne à 10 mn, aéroport de Blagnac à 20 mn, Toulouse à 30 mn.

Cet appartement T4 de 105,27 m², traversant et lumineux, a conservé son cachet d’origine : carrelage et parquet d’époque, radiateurs en fonte, belle hauteur sous plafond,….
Il se compose d’un couloir d’entrée desservant :
- 2 belles pièces avec placards de rangement sur l’avant (15,8 m² et 17,5 m²)
- le séjour avec cuisine séparée et cellier attenant, disposant également d’un espace supplémentaire pouvant être ouvert ou fermé selon les usages, le tout représentant 43,72 m². Cet espace s’ouvre une véranda de 14 m² donnant sur le jardin d’environ 250 m² exposé sud ouest.
Un couloir permet l’accès à la salle d’eau et ses toilettes, ainsi qu’à une buanderie et un espace garage auquel sont associées plusieurs pièces.

Ce bien ne demande qu’à être aménagé à votre convenance!

Contactez-nous pour tout complément d’information ou pour organiser une visite, nous vous accompagnons dans votre projet immobilier.

SARL au capital de 1 000 € RCS Toulouse 893 458 547 Code NAF : 6831Z - Siège social : 25 rue des Crouzettes 31120 PORTET SUR GARONNE – France -Carte professionnelle « Transaction sur immeuble et fonds de commerce » N° CPI 000 030 délivrée par la CCI de Toulouse (Haute-Garonne).

Honoraires à la charge des acquéreurs

Date de réalisation du dossier des diagnostics : 23/10/2023. Il est précisé que ces diagnostics portent sur l’intégralité de la maison.
Voir plus

Référence: 85860617
DPE
A
B
C
D
E
F
G
GES
A
B
C
D
E
F
G

Prêt immobilier

Vous souhaitez connaître votre capacité d’emprunt et trouver le meilleur crédit immobilier ?
Réaliser une simulation gratuite

Appartement à FROUZINS
Appartement à FROUZINS
Appartement à FROUZINS
Appartement à FROUZINS
Appartement à FROUZINS
Appartement à FROUZINS
Appartement à FROUZINS
Appartement à FROUZINS
Ce site est protégé par reCAPTCHA la Politique de confidentialité et les Conditions d’utilisation de Google s’appliquent.
Obtenir un prêt immobilier au meilleur taux ?

En poursuivant votre navigation sans modifier vos paramètres, vous acceptez l'utilisation de cookies susceptibles de réaliser des statistiques de visite. Cliquez ici pour plus d'informations