Bénéficiez des services de nos partenaires locaux soigneusement sélectionnés
pour vous accompagner dans votre parcours d'achat immobilier

Vente appartement 5 pièces de 108m² - 75015 paris

— Paris-15e 75015 —
949 000 €
108 m²
5 pièces
ascenseur

Nos partenaires locaux
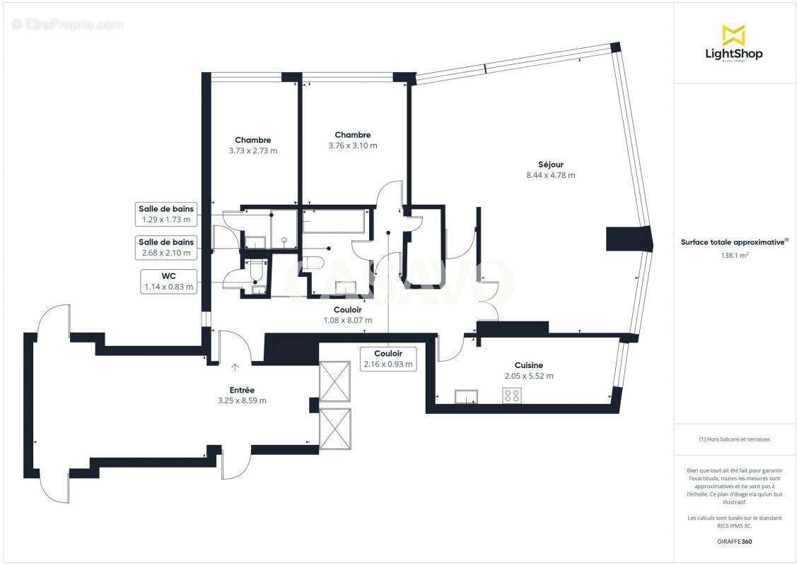
Casavo vous propose à la vente cet appartement de 5 pièces de 107.85 m² localisé Quai André Citroën à Paris 15eme.

Ce bien se situe au 11ème étage desservi par 2 ascenseurs dans un superbe immeuble de 1975 parfaitement entretenu et dont le style brutalisme des années 1970 a été parfaitement conservée.

Il se compose d'une entrée avec placard desservant une chambre avec placard et salle d'eau attenante, un WC séparé, une seconde chambre avec placard, un dressing, une salle de bain avec WC, une cuisine séparée pouvant etre ouverte et un vaste triple séjour de 46 m2 complètement ouvert sur l'exterieur (Possibilité de de faire une 3ème chambre).

Vous apprécierez tout particulièrement la proximité des commerces de Beaugrenelle, les commodités, le métro Javel au pied de l'immeuble. Cet appartement profite d'une vue panoramique sur Paris et bénéficie d'une luminosité sans pareil grace à sa triple exposition sud-est, sud et sud-ouest.
.
Une cave complète se bien.
Possibilité de loué une place de parking dans la copropriété
Un local vélo est présent dans la copropriété.
Gardien à demeure 24/7

Charges de copropriété : 790€ par mois comprenant eau chaude et froide, chauffage, ascenseur, gardien, etc.
Taxe foncière : 2604 € par an

Ce bien est commercialisé par Casavo.

Intéressé par ce bien ? Plus d'informations sur le site de Casavo.
Voir plus

Référence: 37393
Bien en copropriété. Nombre de lots : 200. Charges de copropriété : 795 €.
Honoraires à la charge du vendeur.
DPE
A
B
C
D
E
F
G
GES
A
B
C
D
E
F
G

Prêt immobilier

Vous souhaitez connaître votre capacité d’emprunt et trouver le meilleur crédit immobilier ?
Réaliser une simulation gratuite

Appartement à PARIS-15E
Appartement à PARIS-15E
Appartement à PARIS-15E
Appartement à PARIS-15E
Appartement à PARIS-15E
Appartement à PARIS-15E
Appartement à PARIS-15E
Appartement à PARIS-15E
Appartement à PARIS-15E
Appartement à PARIS-15E
Appartement à PARIS-15E
Appartement à PARIS-15E
Appartement à PARIS-15E
Appartement à PARIS-15E
Appartement à PARIS-15E
Appartement à PARIS-15E
Appartement à PARIS-15E
Appartement à PARIS-15E
Ce site est protégé par reCAPTCHA la Politique de confidentialité et les Conditions d’utilisation de Google s’appliquent.
Obtenir un prêt immobilier au meilleur taux ?

En poursuivant votre navigation sans modifier vos paramètres, vous acceptez l'utilisation de cookies susceptibles de réaliser des statistiques de visite. Cliquez ici pour plus d'informations