Bénéficiez des services de nos partenaires locaux soigneusement sélectionnés
pour vous accompagner dans votre parcours d'achat immobilier

Maison à vendre 4 pièces tonnay charente (17)

— Tonnay-Charente 17430 —
169 400 €
107 m² / 600 m²
4 pièces
parking

Nos partenaires locaux
Charmante maison à étage à Tonnay-Charente – Cadre campagne, proche commodités
Située dans un petit village paisible de la commune de Tonnay-Charente, cette maison à étage offre un cadre de vie agréable à seulement quelques minutes du Super U et des autres commodités locales. Son emplacement stratégique permet un accès rapide à l'autoroute, facilitant vos déplacements vers Saintes ou La Rochelle.

Description du bien :
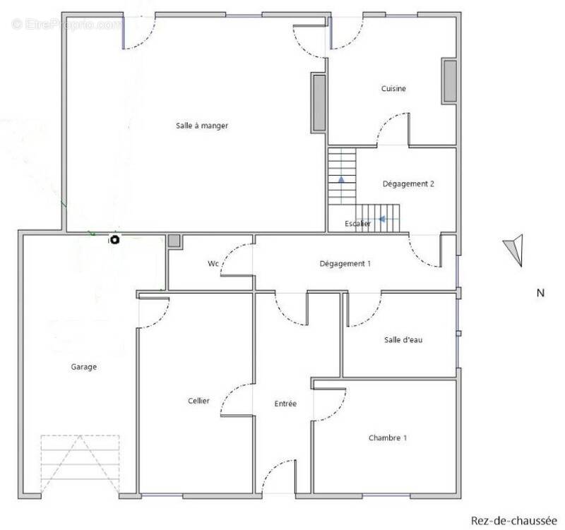
Au rez-de-chaussée, vous trouverez :
- Une entrée accueillante
- Une chambre
- Un WC séparé
- Une salle d'eau
- Une cuisine
- Un séjour lumineux
- Un cellier pratique
- Un garage attenant
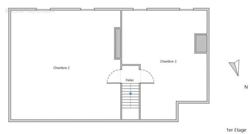
À l'étage :
- Deux chambres supplémentaires, idéales pour une famille ou pour aménager un bureau.

Le tout est implanté sur un terrain entièrement clos, au calme, parfait pour profiter des beaux jours en toute sérénité.

À noter :
Des travaux de rénovation sont à prévoir pour révéler tout le potentiel de cette maison. Toutefois, le gros œuvre est en bon état et le bien est déjà raccordé au tout-à-l'égout.

Une belle opportunité pour les amateurs de tranquillité souhaitant personnaliser leur futur chez-soi tout en restant proche des axes et commodités.
Les honoraires d'agence sont à la charge de l'acquéreur, soit 4,57% TTC du prix hors honoraires.
Logement à consommation énergétique excessive : classe F
Les informations sur les risques auxquels ce bien est exposé sont disponibles sur le site Géorisques : www. georisques. gouv. fr.

Réseau Immobilier CAPIFRANCE - Votre agent commercial (RSAC N°750 614 380 - Greffe de LA ROCHELLE) Jérémy VERVENNE Entrepreneur Individuel [Coordonnées masquées] - Réf.917896
Voir plus

Référence: 340937354398
DPE
A
B
C
D
E
F
G
GES
A
B
C
D
E
F
G

Prêt immobilier

Vous souhaitez connaître votre capacité d’emprunt et trouver le meilleur crédit immobilier ?
Réaliser une simulation gratuite

Maison à TONNAY-CHARENTE
Maison à TONNAY-CHARENTE
Maison à TONNAY-CHARENTE
Maison à TONNAY-CHARENTE
Maison à TONNAY-CHARENTE
Maison à TONNAY-CHARENTE
Maison à TONNAY-CHARENTE
Maison à TONNAY-CHARENTE
Maison à TONNAY-CHARENTE
Maison à TONNAY-CHARENTE
Maison à TONNAY-CHARENTE
Maison à TONNAY-CHARENTE
Ce site est protégé par reCAPTCHA la Politique de confidentialité et les Conditions d’utilisation de Google s’appliquent.
Obtenir un prêt immobilier au meilleur taux ?

En poursuivant votre navigation sans modifier vos paramètres, vous acceptez l'utilisation de cookies susceptibles de réaliser des statistiques de visite. Cliquez ici pour plus d'informations