Terrain constructible à portsall !

— Ploudalmezeau 29830 —
78 000 €
589 m²

A Portsall, Aurélien LENAFF BSK IMMOBILIER vous propose en exclusivité ce joli terrain constructible de 589 m2.
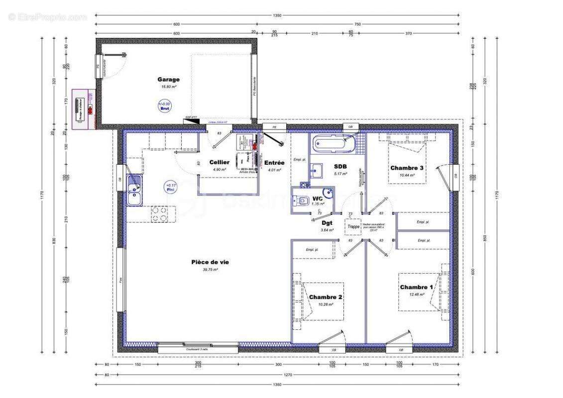
Afin de vous aider à vous projeter, vous trouverez ci-joint un projet de plain-pied chiffré proposé par l'entreprise Trécobat (reste libre de constructeur).

La parcelle est vendue non viabilisée. Prévoir le raccordement à l'eau, à électricité, à la fibre ainsi que l'installation d'un assainissement individuel.

Pour vous, je réalise gratuitement sous 48h, une estimation de votre bien immobilier sur les secteurs du Pays d'Iroise, du Pays des Abers et sur la Communauté Urbaine de Brest.
N'hésitez pas à consulter mes différents témoignages sur mon site Aurélien LENAFF bskimmobilier.com
Au plaisir de vous accompagner dans votre projet immobilier.

Cette annonce référence 291781 vous est présentée par votre agent commercial BSK Immobilier AURELIEN LENAFF (EI) immatriculé au RSAC de BREST (29200) sous le numéro 88821903700015.

Prix du bien : 78 000,00 €
Les honoraires d'agence sont à la charge du vendeur.

Les informations sur les risques auxquels ce bien est exposé sont disponibles sur le site Géorisques : www.georisques.gouv.fr
Voir plus

Référence: 291781
Honoraires à la charge du vendeur.

Prêt immobilier

Vous souhaitez connaître votre capacité d’emprunt et trouver le meilleur crédit immobilier ?
Réaliser une simulation gratuite

Terrain à PLOUDALMEZEAU
Terrain à PLOUDALMEZEAU
Terrain à PLOUDALMEZEAU
Terrain à PLOUDALMEZEAU
Terrain à PLOUDALMEZEAU
Terrain à PLOUDALMEZEAU
Ce site est protégé par reCAPTCHA la Politique de confidentialité et les Conditions d’utilisation de Google s’appliquent.
Obtenir un prêt immobilier au meilleur taux ?

En poursuivant votre navigation sans modifier vos paramètres, vous acceptez l'utilisation de cookies susceptibles de réaliser des statistiques de visite. Cliquez ici pour plus d'informations