Bénéficiez des services de nos partenaires locaux soigneusement sélectionnés
pour vous accompagner dans votre parcours d'achat immobilier

Maintenon et nogent le roi : maison traditionnelle de 5 chambres

— Maintenon 28130 —
315 000 €
148 m² / 1 225 m²
7 pièces
parkingbalcon/terrassejardin

Nos partenaires locaux
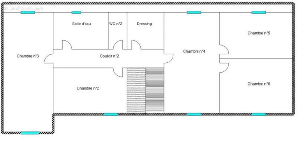
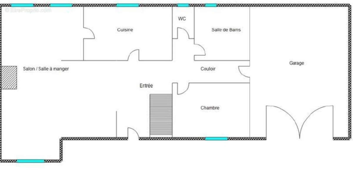
EXCLUSIVITE LES AGENCES UNIES, Dans un charmant village avec écoles et garderie situé entre MAINTENON et NOGENT LE ROI : cette maison traditionnelle comprenant : Au rez-de-chaussée : entrée, cuisine aménagée et semi-équipée, salle à manger - salon avec cheminée (insert) donnant sur une terrasse, couloir desservant, wc, salle de bains, chambre, accès garage. A l'étage : Couloir desservant une salle de jeux, quatre chambres dont une avec balcon, dressing, wc, salle d'eau. Garage intégré, chalet de jardin et appentis. Le tout sur un beau terrain clos et arboré de 1220 m² sans vis à vis Barème d'honoraires consultable sur demande. (5.00 % honoraires TTC à la charge de l'acquéreur.)
Voir plus

Référence: 6022
Honoraires d'agence de 5% à la charge de l'acquéreur
Barème des honoraires
DPE
A
B
C
D
E
F
G
GES
A
B
C
D
E
F
G

Prêt immobilier

Vous souhaitez connaître votre capacité d’emprunt et trouver le meilleur crédit immobilier ?
Réaliser une simulation gratuite

Maison à MAINTENON
Maison à MAINTENON
Maison à MAINTENON
Maison à MAINTENON
Maison à MAINTENON
Maison à MAINTENON
Maison à MAINTENON
Maison à MAINTENON
Maison à MAINTENON
Maison à MAINTENON
Maison à MAINTENON
Maison à MAINTENON
Maison à MAINTENON
Maison à MAINTENON
Maison à MAINTENON
Maison à MAINTENON
Maison à MAINTENON
Maison à MAINTENON
Ce site est protégé par reCAPTCHA la Politique de confidentialité et les Conditions d’utilisation de Google s’appliquent.
Obtenir un prêt immobilier au meilleur taux ?

En poursuivant votre navigation sans modifier vos paramètres, vous acceptez l'utilisation de cookies susceptibles de réaliser des statistiques de visite. Cliquez ici pour plus d'informations