Chateauneuf villevieille superbe terrain constructible viabilise 1 715m²

— Chateauneuf-Villevieille 06390 —
280 000 €
1 715 m²

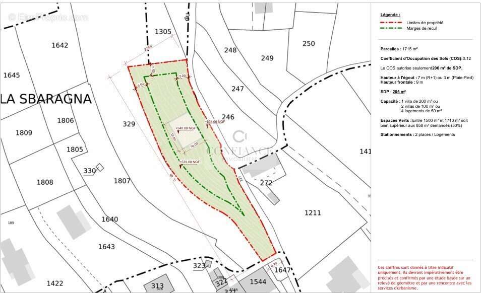
À VENDRE – CHÂTEAUNEUF-VILLEVIEILLE – MAGNIFIQUE TERRAIN CONSTRUCTIBLE VILLAGE DES PAILLONS / Dans le charmant village de Châteauneuf-Villevieille, découvrez ce superbe terrain constructible offrant un cadre de vie paisible et verdoyant. Ce terrain, exposé plein Sud-Est, est quasiment plat et bénéficie d'une belle superficie permettant la réalisation d'un projet d'envergure : Possibilité de construire une villa de 200 m² d'emprise au sol Ou deux villas de 100 m² chacune Deux places de stationnement à prévoir par logement Le PLU impose 50 % d'espaces verts, soit environ 858 m², une hauteur maximale à l'égout de 7 mètres (R+1) ou 3 mètres en plain-pied, et une hauteur frontale de 9 mètres. Coefficient d'occupation des sols (COS) : 0,12 Le terrain viabilisé, un avis favorable pour la construction à été émis par la métropole, certificat d'urbanisme positif. Le terrain est agrémenté d'arbres fruitiers : 17 oliviers, 2 figuiers, 3 cerisiers et 1 prunier, ainsi qu'un cabanon en pierre cadastré et un bassin de réserve d'eau.Et de jolis murets et mur en pierre. La commune offre une qualité de vie remarquable avec son école maternelle et primaire, une petite épicerie/buvette conviviale sur la place du village, et une association dynamique proposant de nombreuses activités pour tous les âges. A seulement 10mn de voiture supermarché À seulement 25 minutes de Nice, ce terrain représente une opportunité rare pour concrétiser un magnifique projet immobilier dans un environnement calme et naturel. Architecte prêt à vous recevoir pour approfondir votre projet et vous accompagner selon vos besoins, cabinet professionnel très sérieux. Les informations sur les risques auxquels ce bien est exposé sont disponibles sur le site Géorisques http://www.georisques.gouv.fr Toute l'équipe Confiance Immobilière vous remercie. Plaquette de présentation complète Honoraires à la charge du vendeur. Les informations sur les risques auxquels ce bien est exposé sont disponibles sur le site Géorisques http://www.georisques.gouv.fr Toute l'équipe Confiance Immobilière vous remercie. Plaquette de présentation complète Visite virtuelle commentée sur demande.
Voir plus

Référence: 3268BIS2808
Honoraires à la charge du vendeur.
Barème des honoraires

Prêt immobilier

Vous souhaitez connaître votre capacité d’emprunt et trouver le meilleur crédit immobilier ?
Réaliser une simulation gratuite

Terrain à CHATEAUNEUF-VILLEVIEILLE
Terrain à CHATEAUNEUF-VILLEVIEILLE
Terrain à CHATEAUNEUF-VILLEVIEILLE
Terrain à CHATEAUNEUF-VILLEVIEILLE
Terrain à CHATEAUNEUF-VILLEVIEILLE
Terrain à CHATEAUNEUF-VILLEVIEILLE
Terrain à CHATEAUNEUF-VILLEVIEILLE
Terrain à CHATEAUNEUF-VILLEVIEILLE
Terrain à CHATEAUNEUF-VILLEVIEILLE
Terrain à CHATEAUNEUF-VILLEVIEILLE
Terrain à CHATEAUNEUF-VILLEVIEILLE
Terrain à CHATEAUNEUF-VILLEVIEILLE
Terrain à CHATEAUNEUF-VILLEVIEILLE
Terrain à CHATEAUNEUF-VILLEVIEILLE
Terrain à CHATEAUNEUF-VILLEVIEILLE
Terrain à CHATEAUNEUF-VILLEVIEILLE
Terrain à CHATEAUNEUF-VILLEVIEILLE
Terrain à CHATEAUNEUF-VILLEVIEILLE
Terrain à CHATEAUNEUF-VILLEVIEILLE
Terrain à CHATEAUNEUF-VILLEVIEILLE
Terrain à CHATEAUNEUF-VILLEVIEILLE
Terrain à CHATEAUNEUF-VILLEVIEILLE
Terrain à CHATEAUNEUF-VILLEVIEILLE
Terrain à CHATEAUNEUF-VILLEVIEILLE
Ce site est protégé par reCAPTCHA la Politique de confidentialité et les Conditions d’utilisation de Google s’appliquent.
Obtenir un prêt immobilier au meilleur taux ?

En poursuivant votre navigation sans modifier vos paramètres, vous acceptez l'utilisation de cookies susceptibles de réaliser des statistiques de visite. Cliquez ici pour plus d'informations