Bénéficiez des services de nos partenaires locaux soigneusement sélectionnés
pour vous accompagner dans votre parcours d'achat immobilier

Appartement 162m² à canet-en-roussillon

— Canet-En-Roussillon 66140 —
1 390 000 €
162 m²
5 pièces
parkingbalcon/terrasseascenseurpiscine

Nos partenaires locaux
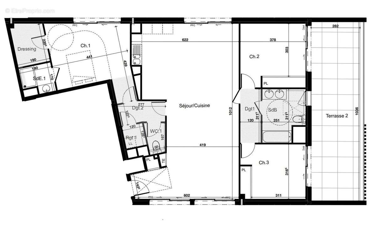
Superbe appartement T5 de 160 m2 en roof-top situé à Canet en Roussillon.

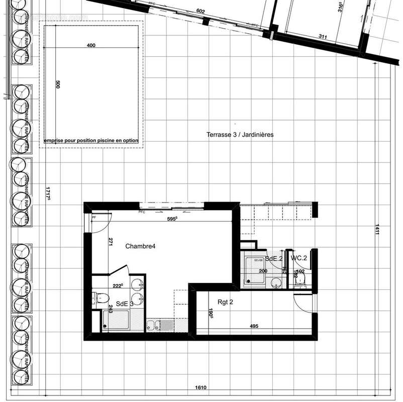
Disposant de 3 terrasses pour un total de 313 m2 d'extérieur cumulé, ce bien vous permettra de jouir d'une piscine privative sur le roof-top.

Présentant une grande pièce de vie traversante et de taille confortable ( + de 50 m2 ) vous y retrouverez 3 chambres avec chacune un accès extérieur - terrasse , ainsi qu'une 4 ème chambre isolée sous forme de dépendance sur une des terrasses de l'appartement.
Véritable atout, cette chambre ( + salle d'eau ) indépendante supplémentaire vous permettra de garder votre intimité en présence d'ami ou d'un(e) intendant(e)

Pour vos véhicules cet appartement dispose de 2 places de parkings sécurisées en sous-sol

La résidence le Miami est située à quelques kilomètres seulement de Perpignan et de la frontière espagnole, Canet bénéficie d'un emplacement privilégié.
Dans un quartier à mi-chemin des plages et du port de plaisance de Canet-en-Roussillon, accessibles à pieds. De nombreux commerces et équipements sportifs bordent la résidence rendant le cadre de vie dynamique et adapté aux nécessités quotidiennes.
Ville balnéaire dynamique, Canet-en-Roussillon vous séduira grâce à sa saveur méditerranéenne, le charme de son centre-ville avec ses marchés hebdomadaires et sa vie culturelle riche.

Pour plus de renseignements n'hésitez pas à nous contacter au [Coordonnées masquées] ou directement sur imonah.fr

Dans une copropriété de 28 lots. Aucune procédure n'est en cours. DPE en cours. Les informations sur les risques auxquels ce bien est exposé sont disponibles sur le site Géorisques : georisques.gouv.fr.
Voir plus

Référence: VA2112-IMONAH
Bien en copropriété. Nombre de lots : 28.
Honoraires à la charge de l'acquéreur.
Barème des honoraires

Prêt immobilier

Vous souhaitez connaître votre capacité d’emprunt et trouver le meilleur crédit immobilier ?
Réaliser une simulation gratuite

Appartement à CANET-EN-ROUSSILLON
Appartement à CANET-EN-ROUSSILLON
Appartement à CANET-EN-ROUSSILLON
Appartement à CANET-EN-ROUSSILLON
Appartement à CANET-EN-ROUSSILLON
Appartement à CANET-EN-ROUSSILLON
Appartement à CANET-EN-ROUSSILLON
Appartement à CANET-EN-ROUSSILLON
Appartement à CANET-EN-ROUSSILLON
Ce site est protégé par reCAPTCHA la Politique de confidentialité et les Conditions d’utilisation de Google s’appliquent.
Obtenir un prêt immobilier au meilleur taux ?

En poursuivant votre navigation sans modifier vos paramètres, vous acceptez l'utilisation de cookies susceptibles de réaliser des statistiques de visite. Cliquez ici pour plus d'informations