Bénéficiez des services de nos partenaires locaux soigneusement sélectionnés
pour vous accompagner dans votre parcours d'achat immobilier

Appartement 90m² à nimes

— Nimes 30000 —
490 000 €
90 m²
3 pièces
balcon/terrasseascenseur

Nos partenaires locaux
EMPLACEMENT EXCEPTIONNEL À NÎMES - JARDIN DE LA FONTAINE - ÉLIGIBLE LOI PINEL

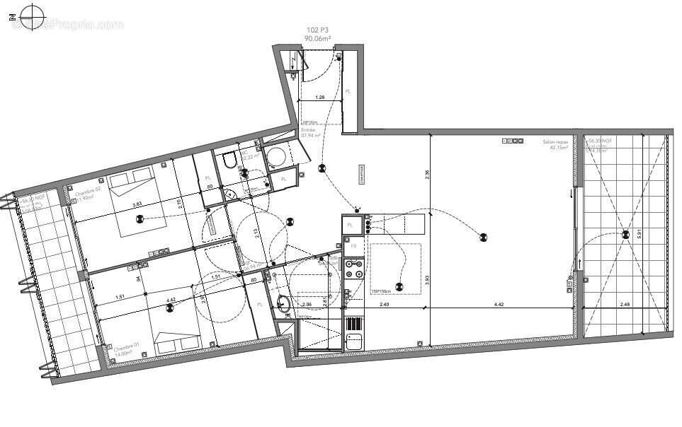
Découvrez ce nouveau programme haut de gamme situé sur les allées Jean-Jaurès. Ce 3 pièces de 90 m2 traversant avec double terrasse-loggia de 21,61 m2 vous est proposé à la vente en état futur d'achèvement ( VEFA ).

Situé dans une résidence sécurisée, l'appartement, équipé de la climatisation réversible, dispose de 2 chambres orientées nord-ouest desservant une terrasse-loggia commune donnant sur une rue très peu passante donc très calme.
Chaque chambre dispose d'un dressing intégré.
Une salle de bain ainsi que des toilettes séparés sont distribués par le couloir amenant aux chambres.

L'appartement se veut moderne avec des espaces ouverts venant renforcer la sensation d'espace. la cuisine est donc prévue pour être ouverte sur le salon-séjour et dispose d'une grande surface appréciable de 42,15 m2
Toute la largeur de cette pièce à vivre donne sur la seconde terrasse-loggia orientée Sud-Est du côté cour intérieure de la résidence, venant accentuer la sensation d'espace de cette pièce.

L'appartement comporte 2 parkings en sous-sol de la résidence. Véritable plus dans ce quartier en vogue où il est difficile de se garer.

A proximité de tous commerces, écoles, centre-ville, et parc du jardin de la Fontaine. L'emplacement y est exceptionnel, il vous permettra de vivre dans un cadre verdoyant que sont les allées Jean-Jaurès et de profiter de son célèbre marché du vendredi.

Bien desservi par les transports en communs, la gare de Nîmes TGV se situe à 10min vous permettant de relier Paris en 3h.

NB: Il vous est possible de revoir la disposition de l'appartement directement avec le maître d'oeuvre et d'en modifier les prestations selon vos désirs et votre budget.

Honoraires à la charge du vendeur. Dans une copropriété de 25 lots. Aucune procédure n'est en cours. DPE vierge. Les informations sur les risques auxquels ce bien est exposé sont disponibles sur le site Géorisques : georisques.gouv.fr.
Voir plus

Référence: CLOS 102-COPIE-IMONAH
Bien en copropriété. Nombre de lots : 25.
Honoraires à la charge du vendeur.
Barème des honoraires

Prêt immobilier

Vous souhaitez connaître votre capacité d’emprunt et trouver le meilleur crédit immobilier ?
Réaliser une simulation gratuite

Exmple de visuel - Appartement à NIMES
Exmple de visuel
Vue de la résidence - Appartement à NIMES
Vue de la résidence
Appartement à NIMES
Appartement à NIMES
Appartement à NIMES
Appartement à NIMES
Ce site est protégé par reCAPTCHA la Politique de confidentialité et les Conditions d’utilisation de Google s’appliquent.
Obtenir un prêt immobilier au meilleur taux ?

En poursuivant votre navigation sans modifier vos paramètres, vous acceptez l'utilisation de cookies susceptibles de réaliser des statistiques de visite. Cliquez ici pour plus d'informations