Bénéficiez des services de nos partenaires locaux soigneusement sélectionnés
pour vous accompagner dans votre parcours d'achat immobilier

Appartement 81m² à nimes

— Nimes 30000 —
329 500 €
82 m²
4 pièces
parkingbalcon/terrasse

Nos partenaires locaux
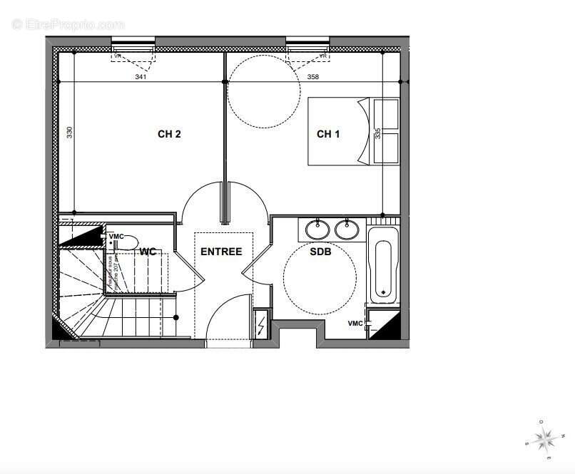
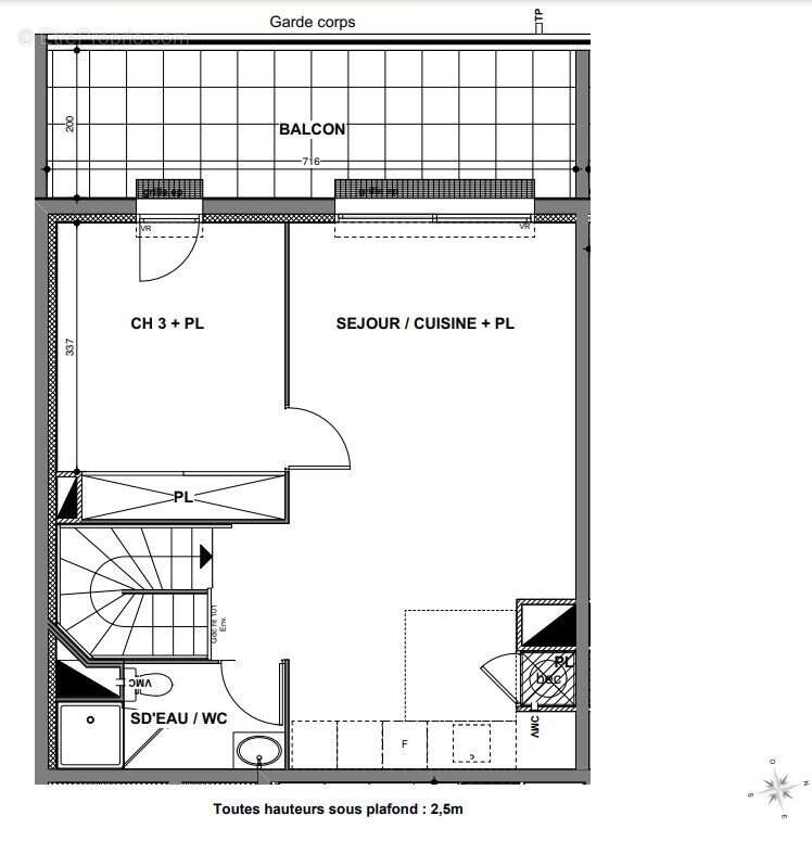
L appartement consiste en un T4 en Duplex de 82 m² le tout au 3eme et dernier étage de la residence
Il y a trois chambres dont une à l etage et qui dessert au Balcon de 14 m².

Les toilettes et la salle d eau ne sont pas independant

Le centre-ville est à proximite, sans agitation, avec des commerces et des ecoles et colleges à proximite.

N'hesitez pas a nous contacter au [Coordonnées masquées] ou au [Coordonnées masquées] ou nous ecrire directement sur notre site internet imonah.fr pour obtenir de plus amples informations.

Dans une copropriété de 24 lots. Aucune procédure n'est en cours. Non soumis au DPE. Les informations sur les risques auxquels ce bien est exposé sont disponibles sur le site Géorisques : georisques.gouv.fr.
Voir plus

Référence: VA2150-IMONAH
Bien en copropriété. Nombre de lots : 24.
Honoraires à la charge de l'acquéreur.
Barème des honoraires

Prêt immobilier

Vous souhaitez connaître votre capacité d’emprunt et trouver le meilleur crédit immobilier ?
Réaliser une simulation gratuite

Appartement à NIMES
Appartement à NIMES
Appartement à NIMES
Appartement à NIMES
Appartement à NIMES
Appartement à NIMES
Appartement à NIMES
Ce site est protégé par reCAPTCHA la Politique de confidentialité et les Conditions d’utilisation de Google s’appliquent.
Obtenir un prêt immobilier au meilleur taux ?

En poursuivant votre navigation sans modifier vos paramètres, vous acceptez l'utilisation de cookies susceptibles de réaliser des statistiques de visite. Cliquez ici pour plus d'informations