Bénéficiez des services de nos partenaires locaux soigneusement sélectionnés
pour vous accompagner dans votre parcours d'achat immobilier

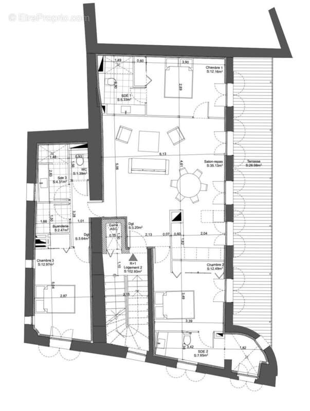
Appartement 103m² à nimes

— Nimes 30000 —
530 500 €
103 m²
4 pièces
parkingbalcon/terrasseascenseur

Nos partenaires locaux
Magnifique appartement T4 de 103 m2 habitable avec grand balcon-terrasse de 27 m2 en hypercentre de Nîmes.

Situé dans un quartier résidentiel recherché cet appartement est équipé d'un ascenseur privatif.
Cet appartement présente 3 chambres ainsi que 3 salles d'eaux ( chaque chambre dispose de sa salle d'eau ).
Cet bien dispose également d'un parking sécurisé.

Cet appartement est actuellement en cour de rénovation, sa date de livraison est annoncée 3 ème semestre 2025

Non soumis au DPE. Les informations sur les risques auxquels ce bien est exposé sont disponibles sur le site Géorisques : georisques.gouv.fr.
Voir plus

Référence: VA2325-IMONAH
Honoraires à la charge de l'acquéreur.
Barème des honoraires

Prêt immobilier

Vous souhaitez connaître votre capacité d’emprunt et trouver le meilleur crédit immobilier ?
Réaliser une simulation gratuite

Appartement à NIMES
Appartement à NIMES
Appartement à NIMES
Ce site est protégé par reCAPTCHA la Politique de confidentialité et les Conditions d’utilisation de Google s’appliquent.
Obtenir un prêt immobilier au meilleur taux ?

En poursuivant votre navigation sans modifier vos paramètres, vous acceptez l'utilisation de cookies susceptibles de réaliser des statistiques de visite. Cliquez ici pour plus d'informations