Bénéficiez des services de nos partenaires locaux soigneusement sélectionnés
pour vous accompagner dans votre parcours d'achat immobilier

Coeur craponne - traversant - lumineux

— Craponne 69290 —
300 000 €
77 m²
3 pièces
parkingbalcon/terrasseascenseur

Nos partenaires locaux
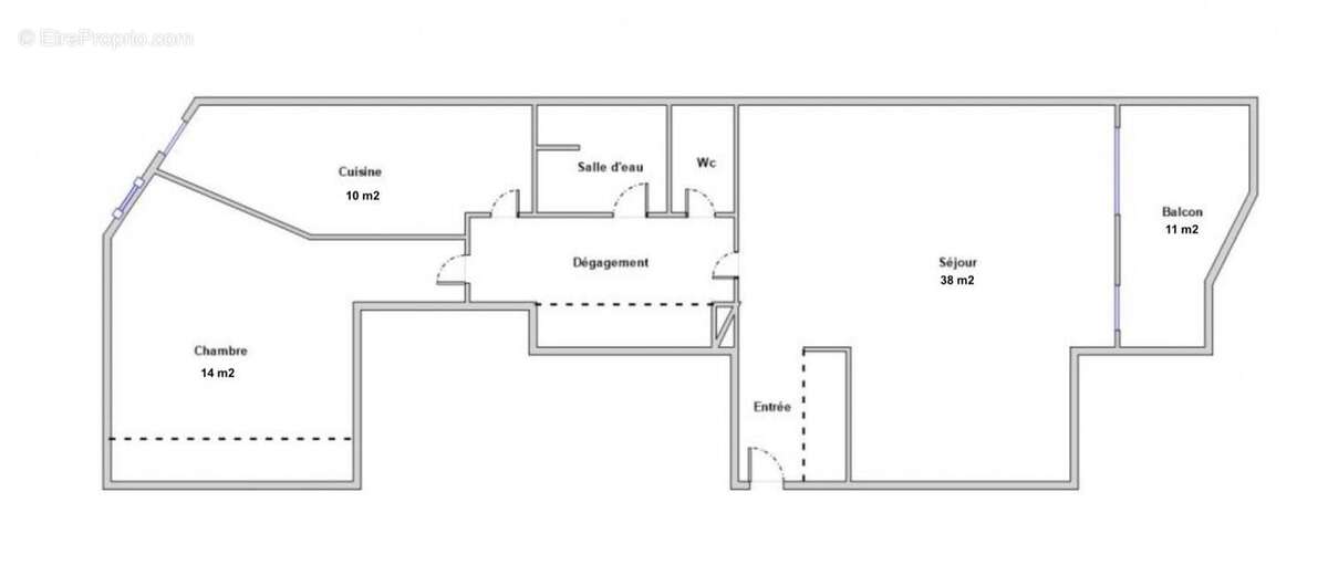
Au cœur de Craponne, Place Andrée-Marie Perrin, dans une résidence entretenue de 2003, venez découvrir ce grand T2 de 77 m², aisément transformable en T3. Ses volumes généreux et son agencement en font un appartement agréable à vivre au quotidien.

Situé au 2ᵉ étage, traversant et baigné de lumière, il dispose d'une belle exposition Est et d'un balcon de 11,5 m² sans vis-à-vis.

Le confort est assuré toute l'année grâce à la climatisation réversible, dont la pompe à chaleur a été récemment remplacée.

En sous-sol, un spacieux garage double de 30 m², sécurisé, vient compléter ce bien rare à proximité immédiate des commerces et des transports.
Référence agence : 454
Voir plus

Référence: 80GD-X4P-1UF
Bien en copropriété. Nombre de lots : 51. Charges de copropriété : 98 €.
Honoraires d'agence de 4.5% à la charge de l'acquéreur
Barème des honoraires
DPE
A
B
C
D
E
F
G
GES
A
B
C
D
E
F
G

Prêt immobilier

Vous souhaitez connaître votre capacité d’emprunt et trouver le meilleur crédit immobilier ?
Réaliser une simulation gratuite

Appartement à CRAPONNE
Appartement à CRAPONNE
Appartement à CRAPONNE
Appartement à CRAPONNE
Appartement à CRAPONNE
Appartement à CRAPONNE
Appartement à CRAPONNE
Ce site est protégé par reCAPTCHA la Politique de confidentialité et les Conditions d’utilisation de Google s’appliquent.
Obtenir un prêt immobilier au meilleur taux ?

En poursuivant votre navigation sans modifier vos paramètres, vous acceptez l'utilisation de cookies susceptibles de réaliser des statistiques de visite. Cliquez ici pour plus d'informations