Bénéficiez des services de nos partenaires locaux soigneusement sélectionnés
pour vous accompagner dans votre parcours d'achat immobilier

Fermette rénovée-dépendances-3 chambres-1333 m² de terrain-01190 chavannes-sur-reyssouze

— Chavannes-Sur-Reyssouze 01190 —
245 000 €
110 m² / 1 333 m²
4 pièces
parkingbalcon/terrasse

Nos partenaires locaux
CHAVANNES-SUR-REYSSOUZE, cette fermette rénovée entièrement est située,
*à 5 minutes de Pont De Vaux,
visitez cet ensemble immobilier avec la visite virtuelle immersive.
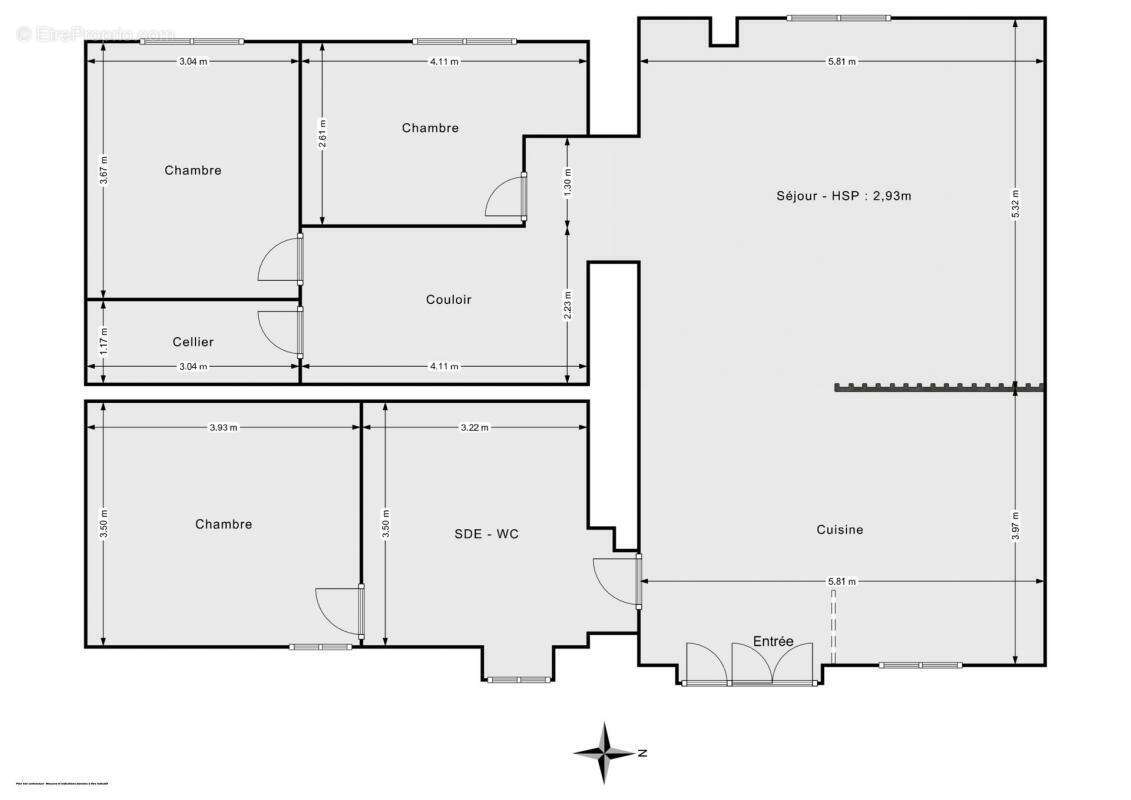
-un PLAN 2D de l'habitation principale,
-5 VISIONS 360° : vue accès de la propriété, vue de l'arrière du terrain, vue du terrain de jeux, vue de la terrasse et une vue du grenier aménageable.

vous recherchez la tranquillité et un cadre agréable?

*la surface habitable sur un niveau est de 110 m² avec :
-une entrée,
-une cuisine équipée ouverte sur le salon/séjour,
-3 chambres,
-une salle d'eau et 1 WC.
-et une pièce de rangement type cellier.
Vous recherchez une maison sans travaux?

*les annexes sont nombreuses. tout d'abord :
-les combles aménageables avec de la hauteur sous toiture : 110 m² environ,
-une chaufferie/ buanderie .

*les dépendances pour le stockage sont :
-un garage bétonné de 26 m²,
-un atelier carrelé de 13 m²,
-une grange de 36 m²,
- et 3 auvents pour une surface totale de 70 m² environ.
Vous recherchez une maison avec des dépendances?

*les PLUS :
-chaudière à pellets économique ( voir DPE classe D),
-adoucisseur d'eau,
-la toiture a été rénovée entièrement avec une bâche de sous-toiture,
-un PUITS,
-un portail électrique,
- le terrain est clos et arboré d'arbres d'ornement et fruitiers. La superficie totale est de 1333 m². Le terrain est plat, piscinable.

*Ce bien vous plaît ? contactez directement votre conseiller. Bordet Cyrille au
[Coordonnées masquées], agent commercial immatriculé au RSAC de Mâcon sous le numéro 981 392 012. Référence annonce : DOM19923. Date de réalisation du diagnostic : 12/05/2025. Les honoraires sont à la charge du vendeur.
Voir plus

Référence: DOM19923
Honoraires à la charge du vendeur.
DPE
A
B
C
D
E
F
G
GES
A
B
C
D
E
F
G

Prêt immobilier

Vous souhaitez connaître votre capacité d’emprunt et trouver le meilleur crédit immobilier ?
Réaliser une simulation gratuite

Maison à CHAVANNES-SUR-REYSSOUZE
Maison à CHAVANNES-SUR-REYSSOUZE
Maison à CHAVANNES-SUR-REYSSOUZE
Maison à CHAVANNES-SUR-REYSSOUZE
Maison à CHAVANNES-SUR-REYSSOUZE
Maison à CHAVANNES-SUR-REYSSOUZE
Maison à CHAVANNES-SUR-REYSSOUZE
Maison à CHAVANNES-SUR-REYSSOUZE
Maison à CHAVANNES-SUR-REYSSOUZE
Maison à CHAVANNES-SUR-REYSSOUZE
Maison à CHAVANNES-SUR-REYSSOUZE
Maison à CHAVANNES-SUR-REYSSOUZE
Maison à CHAVANNES-SUR-REYSSOUZE
Maison à CHAVANNES-SUR-REYSSOUZE
Maison à CHAVANNES-SUR-REYSSOUZE
Maison à CHAVANNES-SUR-REYSSOUZE
Maison à CHAVANNES-SUR-REYSSOUZE
Maison à CHAVANNES-SUR-REYSSOUZE
Maison à CHAVANNES-SUR-REYSSOUZE
Ce site est protégé par reCAPTCHA la Politique de confidentialité et les Conditions d’utilisation de Google s’appliquent.
Obtenir un prêt immobilier au meilleur taux ?

En poursuivant votre navigation sans modifier vos paramètres, vous acceptez l'utilisation de cookies susceptibles de réaliser des statistiques de visite. Cliquez ici pour plus d'informations