Bénéficiez des services de nos partenaires locaux soigneusement sélectionnés
pour vous accompagner dans votre parcours d'achat immobilier

Appartement

— Pornichet 44380 —
548 900 €
91 m²
4 pièces
ascenseur

Nos partenaires locaux
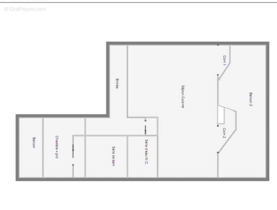
44380 PORNICHET - DUPLEX - 91 M2 - TERRASSES - DERNIER ETAGE - PROCHE MARCHE - MER - COMMERCES - POSSIBILITE D'EXTENSION DE 28m2 SUPPLEMENTAIRES -
Yves Lerat & efficity, l'agence qui estime votre bien en ligne, vous proposent, dans un environnement calme, résidentiel, dans une petite coproprièté des années 90, ce beau duplex de 91m2, (81,5 m2 loi Carrez).
Situé au deuxième et dernier étage, avec ascenseur.
Exposé EST-OUEST, il vous offre une entrée ouvrant sur un salon-séjour ensoleillé avec deux terrasses et une jolie vue, une cuisine ouverte aménagée et équipée, avec bar.
Une belle chambre avec placard et large terrasse SUD-OUEST sur jardins.
Une salle de bains et une salle d'eau avec wc.
A l'étage en mezzanine, une belle chambre avec un coin bureau. Des combles aménageables de 40m2 habitables (28m2 Carrez) permettent d'en agrandir la surface.
Un parking extérieur privatif ainsi qu'une cave complètent ce bien.
Les informations sur les risques auxquels ce bien est exposé sont disponibles sur le site Georisque : georisques. gouv. fr
Yves Lerat - EI - est Agent Commercial mandataire en immobilier, immatriculé au Registre Spécial des Agents Commerciaux du Tribunal de Commerce de PARIS sous le n°393500921.
Siège social du mandant : effiCity, 48 avenue de Villiers - 75017 PARIS - Société par Actions Simplifiée, société au capital de 132 373,05 euros, immatriculée au RCS Paris 497 617 746 et titulaire de la Carte professionnelle CPI 75[Coordonnées masquées]02 025 - CCI Paris IDF - Caisse de Garantie : GALIAN Assurances 89 rue de la Boétie 75008 Paris
Voir plus

Référence: 189903
Bien en copropriété. Nombre de lots : 15. Charges de copropriété : 112 €.
Honoraires d'agence de 2.81% à la charge de l'acquéreur
Barème des honoraires
DPE
A
B
C
D
E
F
G
GES
A
B
C
D
E
F
G

Prêt immobilier

Vous souhaitez connaître votre capacité d’emprunt et trouver le meilleur crédit immobilier ?
Réaliser une simulation gratuite

Appartement à PORNICHET
Appartement à PORNICHET
Appartement à PORNICHET
Appartement à PORNICHET
Appartement à PORNICHET
Appartement à PORNICHET
Appartement à PORNICHET
Appartement à PORNICHET
Appartement à PORNICHET
Appartement à PORNICHET
Appartement à PORNICHET
Appartement à PORNICHET
Appartement à PORNICHET
Appartement à PORNICHET
Appartement à PORNICHET
Appartement à PORNICHET
Appartement à PORNICHET
Appartement à PORNICHET
Appartement à PORNICHET
Ce site est protégé par reCAPTCHA la Politique de confidentialité et les Conditions d’utilisation de Google s’appliquent.
Obtenir un prêt immobilier au meilleur taux ?

En poursuivant votre navigation sans modifier vos paramètres, vous acceptez l'utilisation de cookies susceptibles de réaliser des statistiques de visite. Cliquez ici pour plus d'informations