Bénéficiez des services de nos partenaires locaux soigneusement sélectionnés
pour vous accompagner dans votre parcours d'achat immobilier

Bruges - appartement t4 terrasse récent

— Bruges 33520 —
335 000 €
87 m²
4 pièces
parkingbalcon/terrasseascenseuraccès handicapé

Nos partenaires locaux
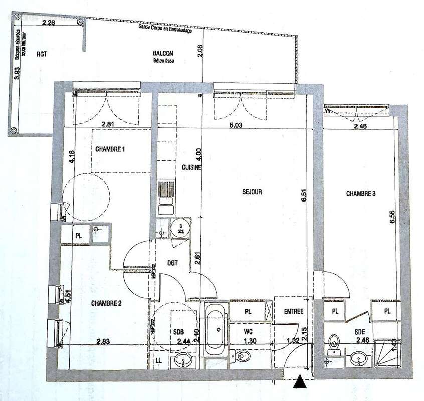
Votre agence de quartier spécialisée à Bruges vous propose ce très beau T4 situé au 4ème étage avec ascenseur d'une copropriété sécurisée, arborée et très bien tenue de 2021, sans aucuns travaux.
Depuis l'entrée avec son WC indépendant, vous accédez directement sur un séjour cuisine lumineux d’environ 32m², ouvrant directement sur une terrasse de 20m² et sa vue dégagée.
La partie nuit est desservie de part et d’autre du séjour avec d’un côté une suite parentale et sa salle d’eau privative + WC et de l’autre un dégagement distribuant une salle de bains et deux chambres dont une avec accès direct sur la terrasse.
Deux places de parking en sous-sol complètent ce bien à visiter sans attendre, vous n'aurez qu'à poser vos valises et vous installer !

Les + de cet appartement :
- vue dégagée sans vis-à-vis
- copropriété récente et bien tenue
- aucun travaux à prévoir
- cuisine équipée
- grande terrasse
- surface des chambres
Voir plus

Référence: 86184309
DPE
A
B
C
D
E
F
G
GES
A
B
C
D
E
F
G

Prêt immobilier

Vous souhaitez connaître votre capacité d’emprunt et trouver le meilleur crédit immobilier ?
Réaliser une simulation gratuite

Appartement à BRUGES
Appartement à BRUGES
Appartement à BRUGES
Appartement à BRUGES
Appartement à BRUGES
Appartement à BRUGES
Appartement à BRUGES
Ce site est protégé par reCAPTCHA la Politique de confidentialité et les Conditions d’utilisation de Google s’appliquent.
Obtenir un prêt immobilier au meilleur taux ?

En poursuivant votre navigation sans modifier vos paramètres, vous acceptez l'utilisation de cookies susceptibles de réaliser des statistiques de visite. Cliquez ici pour plus d'informations