Bénéficiez des services de nos partenaires locaux soigneusement sélectionnés
pour vous accompagner dans votre parcours d'achat immobilier

Appartement 90m² à boulogne-billancourt

— Boulogne-Billancourt 92100 —
648 000 €
90 m²
4 pièces
parkingascenseur

Nos partenaires locaux
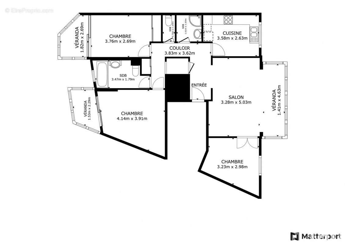
Iad France - Anne-Charlotte Borie vous propose : Situé avenue Pierre Grenier, dans le quartier du Point-du-Jour, à 10 minutes à pied du métro Marcel Sembat (ligne 9), cet appartement traversant de 82,29 m² Carrez est situé au 3e étage avec ascenseur d'une résidence sécurisée et bien entretenue des années 1980.

Il bénéficie de trois vérandas représentant 15,47 m² supplémentaires, soit une surface pondérée proche de 90 m².

Le plan se compose d'un séjour lumineux de 23 m² donnant sur une véranda orientée nord-ouest avec vue dégagée sur cour, d'une cuisine indépendante (possibilité d'ouverture), de trois chambres : une attenante au séjour côté cour de 10,42 m², et deux chambres côté rue, chacune prolongée par une véranda orientée sud-est.

Une salle de bains avec WC, une salle d'eau indépendante, un WC séparé, ainsi que plusieurs rangements complètent le bien. Une cave est incluse.

En option, possibilité d'acquérir deux stationnements, dont un box fermé.
Local à vélos dans la copropriété.

Les atouts du bien :
- Plan fonctionnel
- Appartement traversant
- Trois espaces véranda
- Vue dégagée sur cour arborée
- Calme
- Commerces, écoles et transports à proximité

Contactez-moi pour organiser une visite et découvrir ce joli bien.

Je pratique l'inter-cabinet.
Je suis joignable 7j / 7 pour répondre à toutes vos questions.
Si vous avez besoin de conseils pour la vente de votre bien, n'hésitez pas à me contacter.

La presente annonce immobiliere vise 3 lots situés dans une copropriété de 24 lots au total et ne faisant l'objet d'aucune procédure en cours citée à l'article L. 721-1 du code de la construction et de l'habitation. Montant moyen mensuel de charges déclaré par le vendeur : 327.31¤ par mois (soit 3927.72 ¤ annuel). Honoraires d'agence à la charge du vendeur.
Information d'affichage énergétique sur ce bien : classe ENERGIE D indice 223 et classe CLIMAT B indice 7. Les informations sur les risques auxquels ce bien est exposé, y compris l'obligation légale de débroussaillement, sont disponibles sur le site Géorisques : http://www.georisques.gouv.fr.
La présente annonce immobilière a été rédigée sous la responsabilité éditoriale de Mme Anne-Charlotte Borie mandataire indépendant en immobilier (sans détention de fonds), agent commercial de la SAS I@D France immatriculé au RSAC de Paris sous le numéro 947524179, titulaire de la carte de démarchage immobilier pour le compte de la société I@D France SAS.
Informations LOI ALUR :
Soumis au régime de copropriété.
Nombre de lots : 24.
Quote part annuelle(moyenne) : 3927.72 euros.
Honoraires charge vendeur. (gedeon_6727_31781355)
Voir plus

Référence: 1778477
Bien en copropriété. Nombre de lots : 24. Charges de copropriété : 3927 €.
Honoraires à la charge du vendeur.
DPE
A
B
C
D
E
F
G
GES
A
B
C
D
E
F
G

Prêt immobilier

Vous souhaitez connaître votre capacité d’emprunt et trouver le meilleur crédit immobilier ?
Réaliser une simulation gratuite

Photo 1 - Appartement à BOULOGNE-BILLANCOURT
Photo 1
Photo 2 - Appartement à BOULOGNE-BILLANCOURT
Photo 2
Photo 3 - Appartement à BOULOGNE-BILLANCOURT
Photo 3
Photo 4 - Appartement à BOULOGNE-BILLANCOURT
Photo 4
Photo 5 - Appartement à BOULOGNE-BILLANCOURT
Photo 5
Photo 6 - Appartement à BOULOGNE-BILLANCOURT
Photo 6
Photo 7 - Appartement à BOULOGNE-BILLANCOURT
Photo 7
Photo 8 - Appartement à BOULOGNE-BILLANCOURT
Photo 8
Photo 9 - Appartement à BOULOGNE-BILLANCOURT
Photo 9
Ce site est protégé par reCAPTCHA la Politique de confidentialité et les Conditions d’utilisation de Google s’appliquent.
Obtenir un prêt immobilier au meilleur taux ?

En poursuivant votre navigation sans modifier vos paramètres, vous acceptez l'utilisation de cookies susceptibles de réaliser des statistiques de visite. Cliquez ici pour plus d'informations