Bénéficiez des services de nos partenaires locaux soigneusement sélectionnés
pour vous accompagner dans votre parcours d'achat immobilier

Maison de ville 3 pièces - rue de béthemont, orgeval

— Orgeval 78630 —
225 000 €
76 m²
3 pièces

Nos partenaires locaux
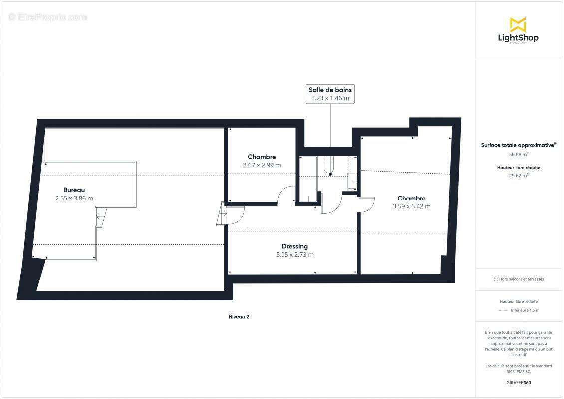
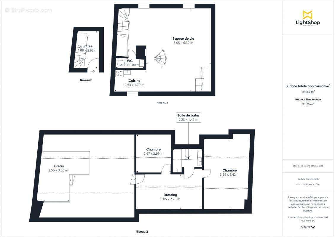
Hosman vous propose cette maison de ville traversante et lumineuse de 100m2 au sol (65 m² Carrez) située Rue de Béthemont à Orgeval. Petite copropriété de 5 logements offrant un cadre de vie agréable. Entrée indépendante sur la rue. Pas de voisin au dessus.

Planifiez facilement votre visite en choisissant le créneau qui vous convient depuis le site d'Hosman.

Le bien se compose d'un séjour lumineux exposé sud, idéal pour profiter de la lumière naturelle tout au long de la journée. La cuisine semi-ouverte nécessite des travaux de rafraichissement. L'habitation dispose actuellement d'une chambre fermée, une mezzanine servant de chambre ouverte et d'une pièce supplémentaire pouvant servir de bureau, dressing ou de petite chambre d'appoint. Une salle de bain fonctionnelle à rafraichir et 2 toilettes séparées complètent ce bien.

Le chauffage et l'eau chaude sont assurés par des radiateurs électriques et un ballon d'eau chaude électrique.

La taxe foncière annuelle est de 1 136 €.

Orgeval est une commune accueillante offrant un cadre de vie paisible à quelques kilomètres de Paris et de Saint Germain en Laye. Elle bénéficie de nombreux atouts avec ses commerces, écoles et espaces verts à proximité. L'appartement est à quelques minutes des lignes de bus reliant Poissy et Saint-Germain-en-Laye, facilitant vos déplacements.

Le bien est soumis au statut de copropriété. L'immeuble se trouve en bon état général, avec des parties communes bien entretenues.

Hosman s'efforce de réinventer l'agence immobilière en offrant un service innovant et transparent aux acheteurs et aux vendeurs. Nos frais d'agence sont de 6 900 euros fixes à la charge du vendeur.

Si vous êtes un professionnel de l'immobilier (agent, mandataire ou chasseur immobilier), sachez que toutes les annonces Hosman sont ouvertes à la collaboration. N'hésitez pas à nous contacter pour en discuter.
Voir plus

Référence: 51d41a
Bien en copropriété.
Honoraires à la charge du vendeur.
DPE
A
B
C
D
E
F
G
GES
A
B
C
D
E
F
G

Prêt immobilier

Vous souhaitez connaître votre capacité d’emprunt et trouver le meilleur crédit immobilier ?
Réaliser une simulation gratuite

Appartement à ORGEVAL
Appartement à ORGEVAL
Appartement à ORGEVAL
Appartement à ORGEVAL
Appartement à ORGEVAL
Appartement à ORGEVAL
Appartement à ORGEVAL
Appartement à ORGEVAL
Appartement à ORGEVAL
Appartement à ORGEVAL
Appartement à ORGEVAL
Appartement à ORGEVAL
Appartement à ORGEVAL
Appartement à ORGEVAL
Appartement à ORGEVAL
Appartement à ORGEVAL
Appartement à ORGEVAL
Appartement à ORGEVAL
Appartement à ORGEVAL
Appartement à ORGEVAL
Appartement à ORGEVAL
Appartement à ORGEVAL
Appartement à ORGEVAL
Ce site est protégé par reCAPTCHA la Politique de confidentialité et les Conditions d’utilisation de Google s’appliquent.
Obtenir un prêt immobilier au meilleur taux ?

En poursuivant votre navigation sans modifier vos paramètres, vous acceptez l'utilisation de cookies susceptibles de réaliser des statistiques de visite. Cliquez ici pour plus d'informations