Bénéficiez des services de nos partenaires locaux soigneusement sélectionnés
pour vous accompagner dans votre parcours d'achat immobilier

À vendre ecully centre - appartement t5/6 de 119,86 m2 loi carrez avec deux grandes caves

— Ecully 69130 —
360 000 €
120 m²
6 pièces
parkingbalcon/terrassepiscine

Nos partenaires locaux
EN EXCLUSIVITÉ - 69130 ÉCULLY - CENTRE-VILLAGE - Venez découvrir cet appartement T5/6 - traversant Est-Ouest lumineux avec un fort potentiel d'aménagement !

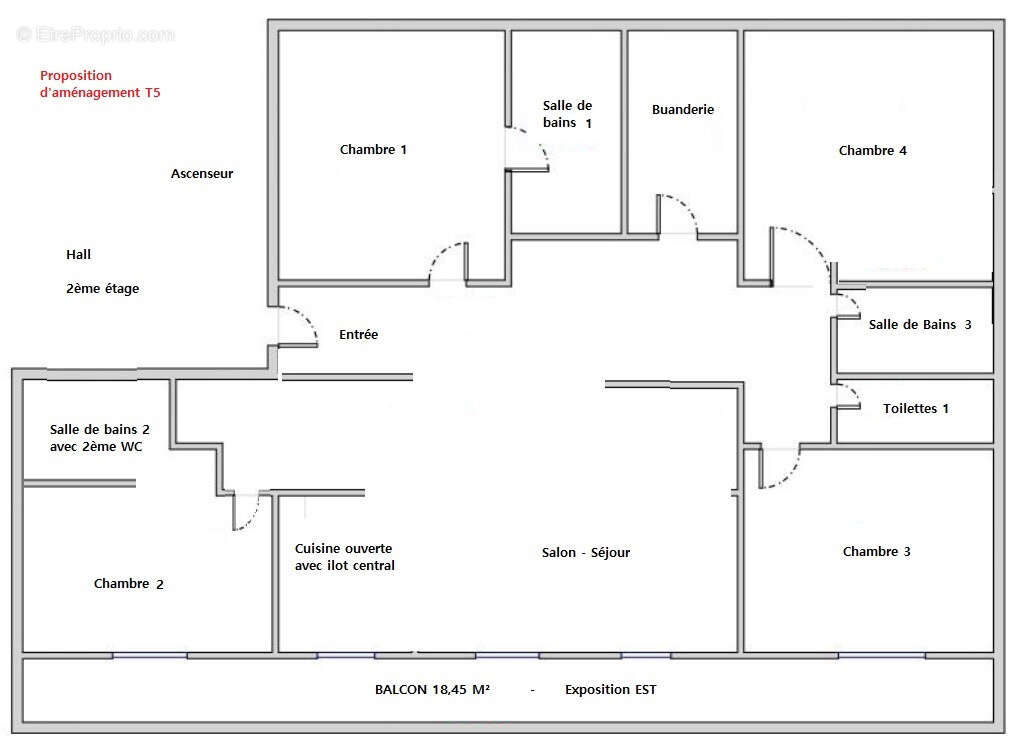
Des plans d'aménagement en T5 (évolutif) et un chiffrage des travaux sont disponibles sur demande.

DPE D - RÉNOVATION ÉNERGÉTIQUE RÉALISÉE (2019) - DIVISION EN 2 LOTS POSSIBLE

Emplacement privilégié au coeur d'Ecully, pour cet ancien Cabinet Médical de 119,86 m2 carrez à repenser selon vos envies et vos besoins. Actuellement il correspond à un appartement T5/6, pouvant être divisé en deux appartements distincts (deux entrées d'appartement existent déjà, il est la réunion de deux lots de copropriété).

Au sein d'une résidence fermée-sécurisée, très bien entretenue avec gardien, piscine, tennis, espaces verts et parking collectif. Branchement avec le chauffage urbain récent (économie de charges à venir)

Au 2ème étage avec ascenseur, il se compose actuellement d'une entrée avec borne d'accueil, de cinq salles d'exercice, d'une salle d'attente, d'une cuisine, d'une salle radio, d'un toilette, et de placards de rangements. Il est possible de créer des WC supplémentaires (un emplacement est déjà prévu), ainsi que des salles de bains.
Un grand balcon filant de 18,45 m2 dessert et communique avec toutes les pièces situées à l'EST. L'appartement est climatisé.

DEUX grands celliers de 12,29m2 et de 14,52m2 à l'entre-sol sont vendus avec l'appartement. L'un des celliers dispose de l'eau et de l'électricité.

Informations complémentaires : Emplacement central, derrière la Mairie d'Ecully, à deux pas de tous les commerces. Un arrêt de bus juste devant l'entrée de la résidence permet de faciliter vos déplacements. Marchés les jeudis et samedis matins sur la place du marché et marché du mardi soir devant la Mairie ; Travaux de rénovation énergétique réalisés : PAS DE TRAVAUX de copropriété ; Appartement à rénover entièrement (Chiffrage disponible sur demande).

Cet appartement est idéal pour une grande famille, pour un projet d'investissement, ou pour une activité libérale : venez visiter en contactant directement Julie SILVY (agent commercial EI - RSAC 838469377) au [Coordonnées masquées]

Bus à proximité immédiate : 19, S15, 3, 55 ; JD 152 (Lycée La Martinière) - Station Vélo'V - Taxe foncière : 1590 euros - Charges de copropriété : 417€/mois avec eau froide ET eau chaude, chauffage (urbain installation de novembre 2025) par radiateurs avec compteur individuel, gardien, piscine, tennis, ascenseur, entretien, espaces verts etc....

PRIX DE VENTE 360.000€ FAI - Appartement avec deux grands celliers (caves) - stationnement libre (parking de copropriété).
Cette annonce vous est proposée par SILVY Julie - - NoRSAC: , Enregistré au Greffe du tribunal de commerce de Lyon
Voir plus

Référence: JS200
Bien en copropriété. Nombre de lots : 72. Charges de copropriété : 5006 €.
Honoraires à la charge du vendeur.
Barème des honoraires
DPE
A
B
C
D
E
F
G
GES
A
B
C
D
E
F
G

Prêt immobilier

Vous souhaitez connaître votre capacité d’emprunt et trouver le meilleur crédit immobilier ?
Réaliser une simulation gratuite

Appartement à ECULLY
Appartement à ECULLY
Appartement à ECULLY
Appartement à ECULLY
Appartement à ECULLY
Appartement à ECULLY
Appartement à ECULLY
Appartement à ECULLY
Appartement à ECULLY
Appartement à ECULLY
Appartement à ECULLY
Appartement à ECULLY
Appartement à ECULLY
Appartement à ECULLY
Appartement à ECULLY
Ce site est protégé par reCAPTCHA la Politique de confidentialité et les Conditions d’utilisation de Google s’appliquent.
Obtenir un prêt immobilier au meilleur taux ?

En poursuivant votre navigation sans modifier vos paramètres, vous acceptez l'utilisation de cookies susceptibles de réaliser des statistiques de visite. Cliquez ici pour plus d'informations