Bénéficiez des services de nos partenaires locaux soigneusement sélectionnés
pour vous accompagner dans votre parcours d'achat immobilier

Appartement

— Asnieres-Sur-Seine 92600 —
515 000 €
90 m²
4 pièces
parkingbalcon/terrasseascenseur

Nos partenaires locaux
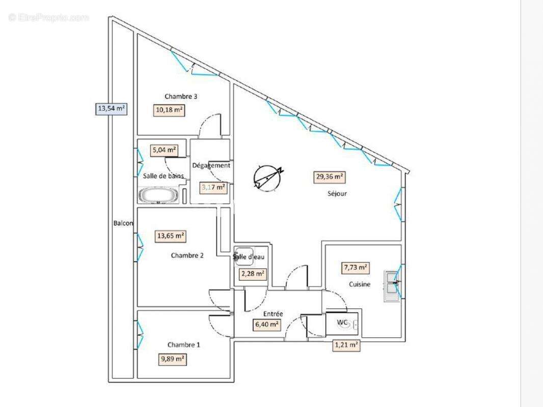
92600 ASNIERES SUR SEINE - EXCLUSIVITE - QUARTIER VOLTAIRE / FRERES CHAUSSON - APPARTEMENT FAMILIAL 4P / 3 CHAMBRES de 89 m2 - ETAGE ELEVE - VUE DEGAGEE - BALCON - TRIPLE EXPOSITION - LUMINEUX - PARKING en sus - CAVE
Servane HAMELIN vous propose cet agréable et lumineux 4 pièces de 89 m2, au 4ème étage avec ascenseur d'une copropriété sécurisée et bien entretenue de 1991. Proche de toutes commodités (crèches, écoles, commerces, parcs, sports et loisirs à moins de 2 min, métro L 13 Gabriel Péri à 4 min, marché Place des Victoires et Mairie à 7 min), il se compose d'une ENTREE desservant une CUISINE AMENAGEE de 8 m2, un spacieux SEJOUR de 30 m2, 3 belles CHAMBRES de 10, 10 et 14 m2 avec RANGEMENTS, une SALLE d'EAU, une SALLE de BAIN et un WC.
Une CAVE complète ce bien et 2 places de Stationnement sont disponible en sus en sous sol
Double vitrage, chauffage et eau chaude électriques, fibre, digicode, ravalement récent. Pour de plus amples renseignements ou pour visiter ce bien, n'hésitez pas à contacter Servane HAMELIN par téléphone au [Coordonnées masquées] ou par mail [Coordonnées masquées].
Les informations sur les risques auxquels ce bien est exposé sont disponibles sur le site Georisque : georisques. gouv. fr
Servane Hamelin - EI - est Agent Commercial mandataire en immobilier, immatriculé au Registre Spécial des Agents Commerciaux du Tribunal de Commerce de Nanterre sous le n°835038019.
Siège social du mandant : effiCity, 48 avenue de Villiers - 75017 PARIS - Société par Actions Simplifiée, société au capital de 132 373,05 euros, immatriculée au RCS Paris 497 617 746 et titulaire de la Carte professionnelle CPI 75[Coordonnées masquées]02 025 - CCI Paris IDF - Caisse de Garantie : GALIAN Assurances 89 rue de la Boétie 75008 Paris
Voir plus

Référence: 176037
Bien en copropriété. Nombre de lots : 107. Charges de copropriété : 200 €.
Honoraires à la charge du vendeur.
Barème des honoraires
DPE
A
B
C
D
E
F
G
GES
A
B
C
D
E
F
G

Prêt immobilier

Vous souhaitez connaître votre capacité d’emprunt et trouver le meilleur crédit immobilier ?
Réaliser une simulation gratuite

Appartement à ASNIERES-SUR-SEINE
Appartement à ASNIERES-SUR-SEINE
Appartement à ASNIERES-SUR-SEINE
Appartement à ASNIERES-SUR-SEINE
Appartement à ASNIERES-SUR-SEINE
Appartement à ASNIERES-SUR-SEINE
Appartement à ASNIERES-SUR-SEINE
Appartement à ASNIERES-SUR-SEINE
Appartement à ASNIERES-SUR-SEINE
Appartement à ASNIERES-SUR-SEINE
Appartement à ASNIERES-SUR-SEINE
Appartement à ASNIERES-SUR-SEINE
Ce site est protégé par reCAPTCHA la Politique de confidentialité et les Conditions d’utilisation de Google s’appliquent.
Obtenir un prêt immobilier au meilleur taux ?

En poursuivant votre navigation sans modifier vos paramètres, vous acceptez l'utilisation de cookies susceptibles de réaliser des statistiques de visite. Cliquez ici pour plus d'informations