Bénéficiez des services de nos partenaires locaux soigneusement sélectionnés
pour vous accompagner dans votre parcours d'achat immobilier

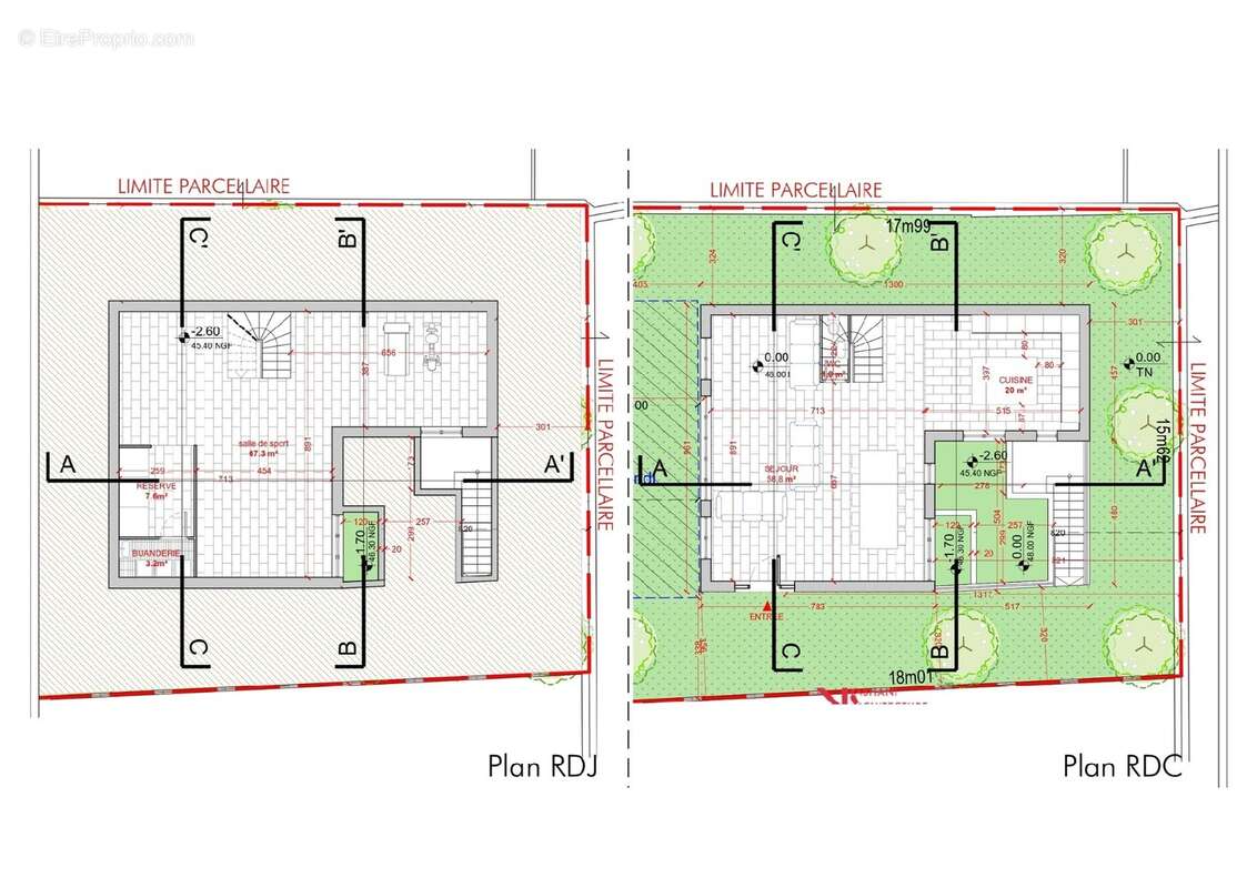
Terrain 485m² à creteil

— Creteil 94000 —
295 000 €
485 m²

Nos partenaires locaux
Terrain Quartier Creteil Eglise : Notre agence immobiliere Flamel vous emmene a Creteil, a proximite immediate de toutes les commodites, afin de vous proposer un terrain nu constructible avec permis depose et recours des tiers purge., D'une superficie de 485m2, ce terrain est issu d'une division et se trouve en second plan par rapport a la rue, cette derniere calme et pavillonnaire., L'integralite du dossier est consultable a l'agence, sur rendez-vous prealable.

Référence: V3068

Prêt immobilier

Vous souhaitez connaître votre capacité d’emprunt et trouver le meilleur crédit immobilier ?
Réaliser une simulation gratuite

Terrain à CRETEIL
Terrain à CRETEIL
Terrain à CRETEIL
Terrain à CRETEIL
Terrain à CRETEIL
Terrain à CRETEIL
Ce site est protégé par reCAPTCHA la Politique de confidentialité et les Conditions d’utilisation de Google s’appliquent.
Obtenir un prêt immobilier au meilleur taux ?

En poursuivant votre navigation sans modifier vos paramètres, vous acceptez l'utilisation de cookies susceptibles de réaliser des statistiques de visite. Cliquez ici pour plus d'informations