Bénéficiez des services de nos partenaires locaux soigneusement sélectionnés
pour vous accompagner dans votre parcours d'achat immobilier

Nogent le roi centre, maison

— Nogent-Le-Roi 28210 —
129 000 €
125 m² / 140 m²
6 pièces
jardin

Nos partenaires locaux
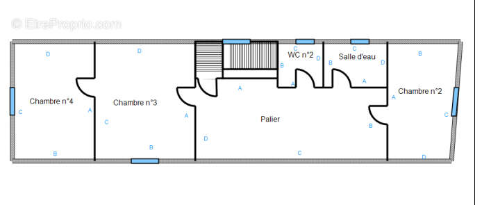
EXCLUSIVITE LES AGENCES UNIES. NOGENT LE ROI centre. Cette maison ancienne comprend : Une entrée, une cuisine aménagée, un double séjour de 30 m², une belle chambre, une salle de bains, un toilette séparé. A l'étage : une grande pièce palière, 3 grandes chambres , une salle d'eau, un toilette séparé. Un double garage de 55 m² attenant, une cave. Avec tout à pied !. Réf 2760-CAEE4530. Barème honoraires agence sur demande. (4.88 % honoraires TTC à la charge de l'acquéreur.)

Référence: 4797
Honoraires d'agence de 4.88% à la charge de l'acquéreur
Barème des honoraires
DPE
A
B
C
D
E
F
G
GES
A
B
C
D
E
F
G

Prêt immobilier

Vous souhaitez connaître votre capacité d’emprunt et trouver le meilleur crédit immobilier ?
Réaliser une simulation gratuite

Maison à NOGENT-LE-ROI
Maison à NOGENT-LE-ROI
Maison à NOGENT-LE-ROI
Maison à NOGENT-LE-ROI
Maison à NOGENT-LE-ROI
Maison à NOGENT-LE-ROI
Maison à NOGENT-LE-ROI
Maison à NOGENT-LE-ROI
Maison à NOGENT-LE-ROI
Maison à NOGENT-LE-ROI
Maison à NOGENT-LE-ROI
Maison à NOGENT-LE-ROI
Maison à NOGENT-LE-ROI
Maison à NOGENT-LE-ROI
Maison à NOGENT-LE-ROI
Maison à NOGENT-LE-ROI
Maison à NOGENT-LE-ROI
Ce site est protégé par reCAPTCHA la Politique de confidentialité et les Conditions d’utilisation de Google s’appliquent.
Obtenir un prêt immobilier au meilleur taux ?

En poursuivant votre navigation sans modifier vos paramètres, vous acceptez l'utilisation de cookies susceptibles de réaliser des statistiques de visite. Cliquez ici pour plus d'informations