Bénéficiez des services de nos partenaires locaux soigneusement sélectionnés
pour vous accompagner dans votre parcours d'achat immobilier

Maison typique du Périgord 4 Chambres et vastes espaces Carsac-Aillac

— Carsac-Aillac 24200 —
360 000 €
180 m² / 2 456 m²
7 pièces
parkingbalcon/terrassejardin

Nos partenaires locaux
Maison typique du Périgord 4 Chambres et vastes espaces Carsac-Aillac
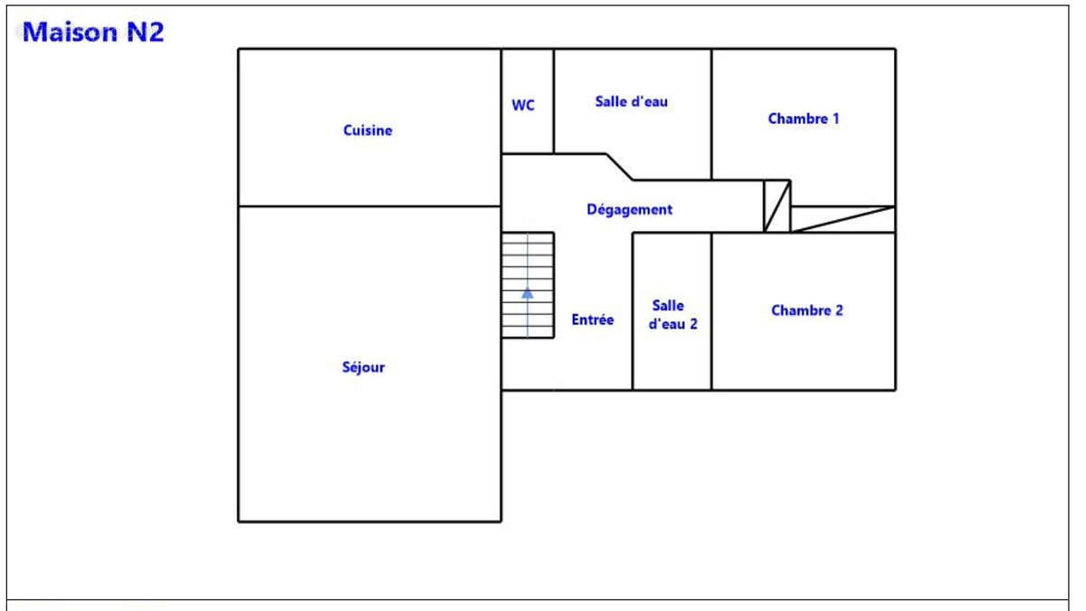
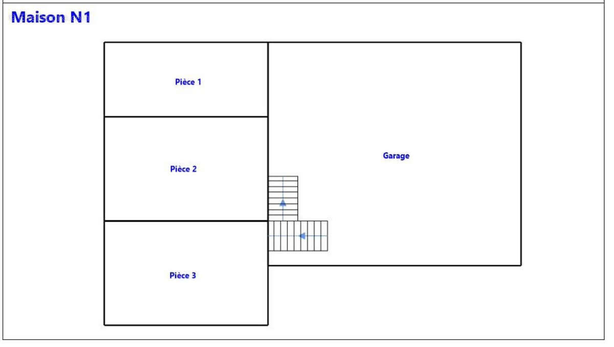
Dans un environnement calme et résidentiel, découvrez cette maison périgourdine de caractère, située au cœur d’une commune dynamique et très recherchée pour sa qualité de vie : commerces de proximité, restaurants, structures médicales, école, médiathèque, voie verte… Le tout, à quelques minutes seulement de Sarlat, capitale du Périgord Noir, et des rives paisibles de la Dordogne. Sur un terrain paysagé de 2 456 m2, cette maison spacieuse d’environ 174 m2 habitables offre des volumes généreux et une ambiance chaleureuse. La pièce de vie de 40 m2 s’organise autour d’une superbe cheminée en pierre de taille. La cuisine indépendante s’ouvre sur une terrasse couverte exposée ouest, idéale pour les repas d’été. Le rez-de-chaussée accueille également deux chambres avec parquet bois, dont une suite parentale, ainsi qu’une salle d’eau. À l’étage, un grand palier dessert deux vastes chambres, dont une de 40 m2 avec sanitaires attenants. Le sous-sol intégral de 108 m2 comprend plusieurs espaces pratiques, dont un double garage de 52 m2.
Prestations confortables : double vitrage, pompe à chaleur réversible, adoucisseur, assainissement individuel conforme. Cette propriété allie authenticité, espace et fonctionnalité — un véritable art de vivre périgourdin, rare sur le secteur de Carsac-Aillac. Stéphane Gounet Imoconseil [Coordonnées masquées]
www.gounet.immo Les informations sur les risques auxquels ce bien est exposé sont disponibles sur le site Géorisques : www.georisques.gouv.fr Agent Commercial
Voir plus

Référence: 30569
Honoraires à la charge du vendeur.
Barème des honoraires
DPE
A
B
C
D
E
F
G
GES
A
B
C
D
E
F
G
Maison à CARSAC-AILLAC
Maison à CARSAC-AILLAC
Maison à CARSAC-AILLAC
Maison à CARSAC-AILLAC
Maison à CARSAC-AILLAC
Maison à CARSAC-AILLAC
Maison à CARSAC-AILLAC
Maison à CARSAC-AILLAC
Maison à CARSAC-AILLAC
Maison à CARSAC-AILLAC
Maison à CARSAC-AILLAC
Maison à CARSAC-AILLAC
Maison à CARSAC-AILLAC
Maison à CARSAC-AILLAC
Maison à CARSAC-AILLAC
Maison à CARSAC-AILLAC
Maison à CARSAC-AILLAC
Géorisques

Les informations sur les risques auxquels ce bien est exposé sont disponibles sur le site Géorisques : www.georisques.gouv.fr

Ce site est protégé par hCaptcha Politique de confidentialité et Conditions d’utilisation s’appliquent.

En poursuivant votre navigation sans modifier vos paramètres, vous acceptez l'utilisation de cookies susceptibles de réaliser des statistiques de visite. Cliquez ici pour plus d'informations