Bénéficiez des services de nos partenaires locaux soigneusement sélectionnés
pour vous accompagner dans votre parcours d'achat immobilier

Voir tous les partenaires locaux

Quartier champ-de-mars - vue tour eiffel – appartement – 2/3 pièces avec grande terrasse sans vis-à-vis -

— Paris-7e 75007 —
1 037 000 €
61 m²
3 pièces
balcon/terrasse

Nos partenaires locaux
Quartier Champ-de-Mars - Vue Tour Eiffel –Jean Garcia -OPTIMHOME vous propose appartement rare – 2/3 pièces avec grande terrasse sans vis-à-vis -

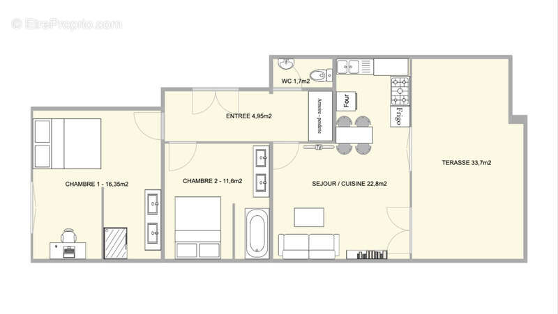
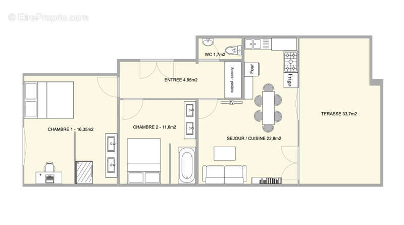
À deux pas du Champ-de-Mars, dans un élégant immeuble haussmannien, découvrez ce charmant appartement 3 pièces de 61 m² situé au rez-de-jardin, bénéficiant d'une terrasse arborée exceptionnelle de 33,70 m², à l'abri des regards,
d'une surface totale de 95,90m²

L'appartement se compose d'une entrée, d'un vaste séjour lumineux ouvrant sur la terrasse, possible cuisine ouverte également orientée vers l'extérieur, de deux chambres, d'une salle de bains et de WC séparés.

Une autorisation pour la création d'une trémie permettrait d'aménager un espace supplémentaire de 12 m² en sous-sol, offrant un potentiel d'agrandissement rare en plein cœur de Paris.

Vous serez séduits par le calme absolu, la belle hauteur sous plafond, le charme de l'ancien et le jardin arboré de la copropriété. Gardienne à plein temps, faibles charges. Prévoir des travaux d'agencement.

Un bien unique, dans un quartier recherché, idéal pour une résidence principale ou un pied-à-terre d'exception.

VISITE VIRTUELLE SUR DEMANDE

Champ-de-Mars District – Eiffel Tower View – Apartment –
2/3 Rooms with Large Private Terrace

Jean Garcia - OPTIMHOME presents a rare opportunity in the sought-after Champ-de-Mars neighborhood: a charming 2/3-room apartment with a large, secluded terrace and stunning Eiffel Tower views.

Just steps from the Champ-de-Mars, nestled in an elegant Haussmann-style building, this 61 m² ground-floor apartment features an exceptional 33 m² landscaped terrace, completely private and out of sight.
SURFACE TOTALE 96m²

The apartment includes an entrance hall, a spacious and bright living room opening directly onto the terrace, a potential open-plan kitchen also facing outside, two bedrooms, a bathroom, and separate toilets.

Planning permission has been granted for the installation of a staircase to access an additional 12 m² of basement space, offering rare expansion potential in the heart of Paris.

You'll be charmed by the absolute peace and quiet, high ceilings, classic period features, and the beautifully maintained communal garden. Full-time caretaker, low service charges. Interior layout work should be expected.

A unique property in a highly desirable area—ideal as a primary residence or an exceptional pied-à-terre. Nombre de lots de la copropriété: 54, Montant moyen de la quote-part annuelle de charges (budget prévisionnel) : 1932€ soit 161€ par mois. Les honoraires sont à la charge du vendeur.
Les informations sur les risques auxquels ce bien est exposé sont disponibles sur le site Géorisques : www. georisques. gouv. fr.

Contactez Jean GARCIA Entrepreneur Individuel, Agent commercial OptimHome (RSAC N°329 409 007 Greffe de PARIS) [Coordonnées masquées] (réf. 584256 )
Voir plus

Référence: 830031675227
Bien en copropriété. Nombre de lots : 54. Charges de copropriété : 161 €.
Honoraires à la charge du vendeur.
DPE
A
B
C
D
E
F
G
GES
A
B
C
D
E
F
G

Prêt immobilier

Vous souhaitez connaître votre capacité d’emprunt et trouver le meilleur crédit immobilier ?
Réaliser une simulation gratuite

Appartement à PARIS-7E
Appartement à PARIS-7E
Appartement à PARIS-7E
Appartement à PARIS-7E
Appartement à PARIS-7E
Appartement à PARIS-7E
Appartement à PARIS-7E
Appartement à PARIS-7E
Appartement à PARIS-7E
Appartement à PARIS-7E
Appartement à PARIS-7E
Appartement à PARIS-7E
Appartement à PARIS-7E
Appartement à PARIS-7E
Appartement à PARIS-7E
Appartement à PARIS-7E
Appartement à PARIS-7E
Appartement à PARIS-7E
Appartement à PARIS-7E
Appartement à PARIS-7E
Appartement à PARIS-7E
Appartement à PARIS-7E
Appartement à PARIS-7E
Appartement à PARIS-7E
Appartement à PARIS-7E
Appartement à PARIS-7E
Appartement à PARIS-7E
Appartement à PARIS-7E
Appartement à PARIS-7E
Appartement à PARIS-7E
Appartement à PARIS-7E
Appartement à PARIS-7E
Appartement à PARIS-7E
Appartement à PARIS-7E
Appartement à PARIS-7E
Appartement à PARIS-7E
Appartement à PARIS-7E
Appartement à PARIS-7E
Ce site est protégé par reCAPTCHA la Politique de confidentialité et les Conditions d’utilisation de Google s’appliquent.
Obtenir un prêt immobilier au meilleur taux ?

En poursuivant votre navigation sans modifier vos paramètres, vous acceptez l'utilisation de cookies susceptibles de réaliser des statistiques de visite. Cliquez ici pour plus d'informations