Bénéficiez des services de nos partenaires locaux soigneusement sélectionnés
pour vous accompagner dans votre parcours d'achat immobilier

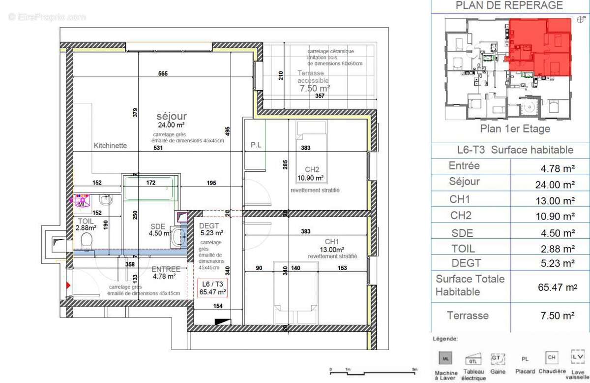
Appartement vetraz monthoux 3 pièce(s) 65.94 m2

— Vetraz-Monthoux 74100 —
310 000 €
65 m²
3 pièces

Nos partenaires locaux
Hte Savoie, Commune de Vétraz Monthoux,
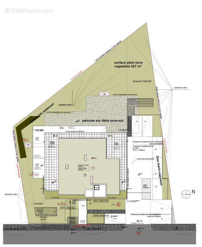
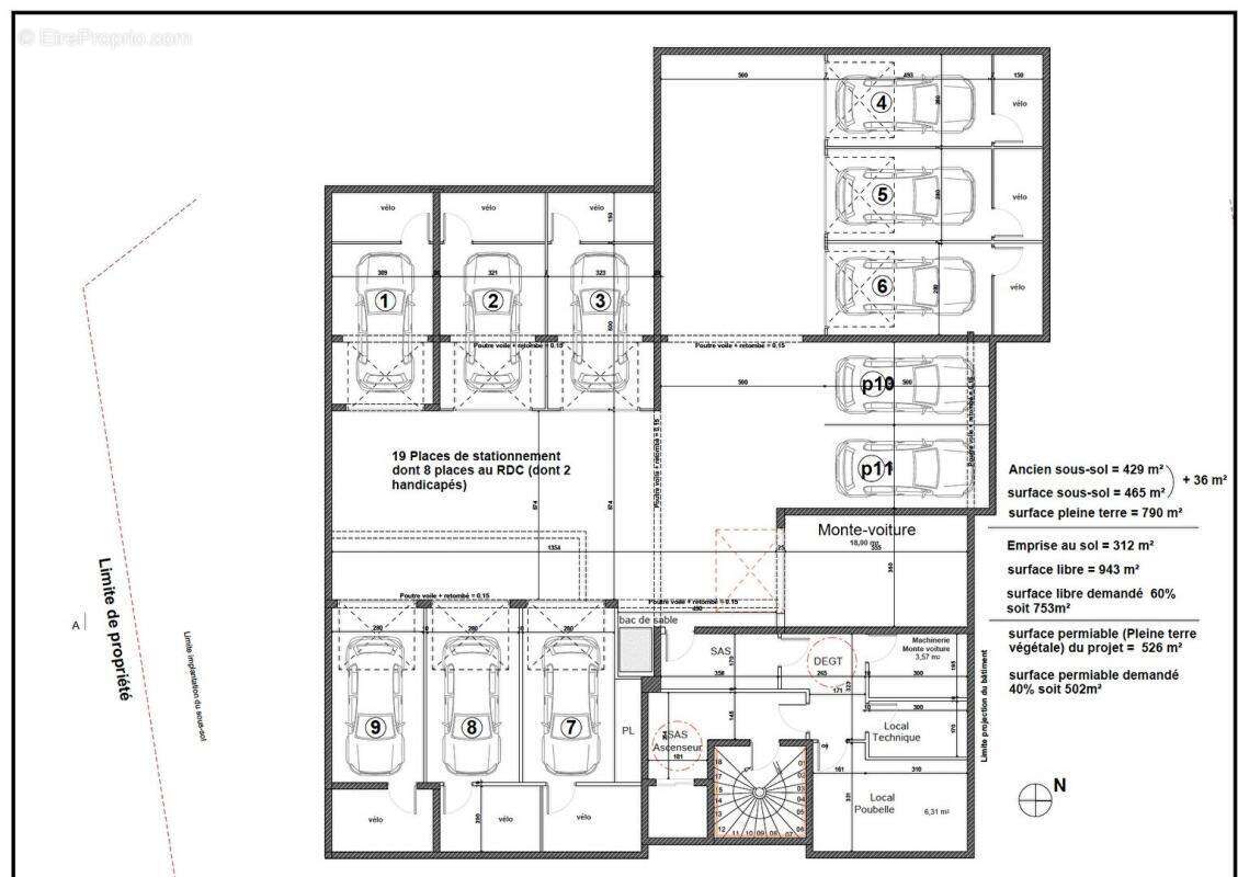
Guy BOCCARD vous propose ce magnifique T3 au premier étage sur deux, exposition Ouest dans une petite résidence de standing de seulement 9 appartements.
Prestations de standing : carrelage 60X60, aménagement placard, Wc suspendu mais surtout chauffage au sol par pompe à chaleur.
Pour visiter et vous accompagner dans votre projet, contactez Guy BOCCARD, au [Coordonnées masquées] ou par courriel à [Coordonnées masquées]
Selon l'article L.561.5 du Code Monétaire et Financier, pour l'organisation de la visite, la présentation d'une pièce d'identité vous sera demandée.
Cette vente est garantie 12 mois.
Cette présente annonce a été rédigée sous la responsabilité éditoriale de Guy BOCCARD agissant sous le statut d'agent commercial immatriculé au RSAC LYON 4515145990 auprès de la SAS PROPRIETES PRIVEES, au capital de 40 000 euros, ZAC LE CHÊNE FERRÉ - 44 ALLÉE DES CINQ CONTINENTS 44120 VERTOU; SIRET 487 624 777 00040, RCS Nantes. Carte professionnelle Transactions sur immeubles et fonds de commerce (T) et Gestion immobilière (G) n° CPI 44[Coordonnées masquées]10 388 délivrée par la CCI Nantes - Saint Nazaire. Compte séquestre n°3[Coordonnées masquées] BPA SAINT-SEBASTIEN-SUR-LOIRE (44230) ; Garantie GALIAN - 89 rue de la Boétie, 75008 Paris - n°28137 J pour 2 000 000 euros pour T et 120 000 euros pour G. Assurance responsabilité civile professionnelle par MMA Entreprise n° de police 120.137.405
Mandat réf 419604
« Informations sur le bien à vendre + DPE A GES A + copropriété de 9 appartements. PRIX 310 000 euros
Copropriété de 20 lots - dont 9 lots habitation. ().

Charges annuelles : 1200 euros.
Voir plus

Référence: 419604GBOC
Bien en copropriété. Nombre de lots : 20. Charges de copropriété : 100 €.
Honoraires à la charge du vendeur.

Prêt immobilier

Vous souhaitez connaître votre capacité d’emprunt et trouver le meilleur crédit immobilier ?
Réaliser une simulation gratuite

Appartement à VETRAZ-MONTHOUX
Appartement à VETRAZ-MONTHOUX
Appartement à VETRAZ-MONTHOUX
Appartement à VETRAZ-MONTHOUX
Appartement à VETRAZ-MONTHOUX
Ce site est protégé par reCAPTCHA la Politique de confidentialité et les Conditions d’utilisation de Google s’appliquent.
Obtenir un prêt immobilier au meilleur taux ?

En poursuivant votre navigation sans modifier vos paramètres, vous acceptez l'utilisation de cookies susceptibles de réaliser des statistiques de visite. Cliquez ici pour plus d'informations