Vente murs local commercial(libre) - potentiel mixte habitation/commerce - brionne (27800). prix hai : 120 990

— Brionne 27800 —
120 990 €
135 m² / 197 m²
5 pièces
jardin

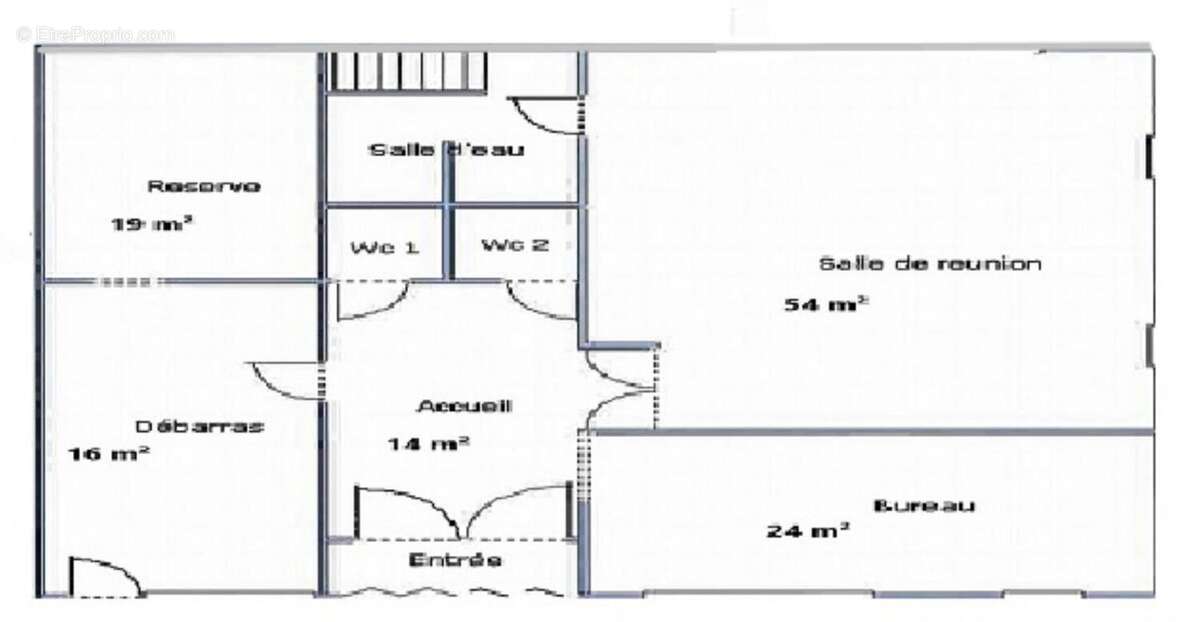
Opportunité unique à saisir à Brionne! Découvrez ce local commercial de 135 m² offrant un fort potentiel, idéalement situé à seulement 5 minutes à pied du centre-ville et de la gare. Que vous soyez investisseur ou que vous envisagiez un projet mixte, ce bien répondra à vos attentes.
Le local comprend :
- Une entrée accueillante et accessible, conçue pour faciliter le passage des personnes à mobilité réduite.
- Quatre pièces spacieuses, dont une de 54 m² offrant de multiples possibilités d'aménagement.
- Deux vitrines, garantissant une excellente visibilité pour une activité commerciale.
- Deux WC, répondant aux besoins de tous.
- Un sous-sol pratique avec deux pièces de rangement supplémentaires et une mezzanine de stockage.
Ce local a bénéficié de rénovations récentes :
- Fenêtres PVC double vitrage pour une isolation thermique et phonique optimale.
- Chauffage combiné : un poêle à granulés pour une chaleur confortable et économique, complété par un chauffage électrique.
- Raccordement au tout à l'égout.
- Travaux d'isolation et de toiture réalisés en 2019, assurant une excellente performance énergétique et une tranquillité d'esprit.
- Un vide sanitaire pour une meilleure ventilation et protection.
Un atout majeur de ce bien est son accord validé par la mairie pour une réhabilitation en habitation. Cela ouvre la voie à de nombreux projets : conserver une activité commerciale, transformer l'intégralité en logement, ou même créer un espace mixte combinant habitation et bureau/commerce.
Actuellement, aucun fonds commercial n'est attaché au local, vous offrant une liberté totale quant à la future affectation et au choix de l'activité.
Note DPE : classe vierge
Prix HAI : 120 990 euros dont 5 990 euros (soit 5,21%) d'honoraires inclus à la charge de l'acquéreur, prix hors honoraires : 115 000 euros.
« Les informations sur les risques auxquels ce bien est exposé sont disponibles sur le site Géorisques : www. georisques. gouv. Fr ».
Pour visiter, vous accompagner dans votre projet, contactez Marie Julie Maini au [Coordonnées masquées] ou par Mail à [Coordonnées masquées] l'article L.561.5 du Code Monétaire et Financier, pour l'organisation de la visite, la présentation d'une pièce d'identité vous sera demandée.
Cette présente annonce a été rédigée sous la responsabilité éditoriale de Marie Julie MAINI agissant sous le statut d'agent commercial immatriculé au RSAC EVREUX 829 322 866 RCPro : 127 100 479. auprès de la SAS PROPRIETES PRIVEES, Réseau national immobilier, au capital de 40000 euros, 44 ALLÉE DES CINQ CONTINENTS - ZAC LE CHÊNE FERRÉ, 44120 VERTOU, RCS Nantes n° 487 624 777 00040, Carte professionnelle T et G n° CPI 44[Coordonnées masquées]10 388 CCI Nantes-Saint Nazaire. Compte séquestre n°3[Coordonnées masquées] BNP Saint-sebastien-sur-loire(44230) Garantie GALIAN - 89 rue de la Boétie, 75008 Paris
Le professionnel garantit et sécurise votre projet immobilier.
Mandat réf : 414590 - (5.21 % honoraires TTC à la charge de l'acquéreur.)

Marie-Julie MAINI (EI) Agent Commercial - Numéro RSAC : EVREUX 829 322 866 - .
Voir plus

Référence: 414590UCHMMJ
Honoraires d'agence de 5.21% à la charge de l'acquéreur

Prêt immobilier

Vous souhaitez connaître votre capacité d’emprunt et trouver le meilleur crédit immobilier ?
Réaliser une simulation gratuite

Maison à BRIONNE
Maison à BRIONNE
Maison à BRIONNE
Maison à BRIONNE
Maison à BRIONNE
Maison à BRIONNE
Maison à BRIONNE
Maison à BRIONNE
Maison à BRIONNE
Maison à BRIONNE
Maison à BRIONNE
Ce site est protégé par reCAPTCHA la Politique de confidentialité et les Conditions d’utilisation de Google s’appliquent.
Obtenir un prêt immobilier au meilleur taux ?

En poursuivant votre navigation sans modifier vos paramètres, vous acceptez l'utilisation de cookies susceptibles de réaliser des statistiques de visite. Cliquez ici pour plus d'informations