Paris 2e - sentier / reaumur - appartement à vendre - 116,04m² carrez et 118,16m² au sol - 2 chambres - balcon filant.

— Paris-2e 75002 —
1 390 000 €
116 m²
4 pièces
balcon/terrasseascenseur

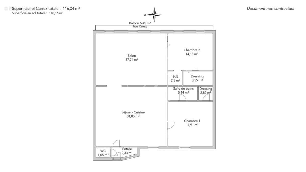
Idéalement situé à deux pas de la rue Montorgueil, au deuxième étage d'un bel immeuble ancien par ascenseur, appartement de 116,04m² loi Carrez et 118,16m² au sol, en parfait état.
Il se compose d'une petite entrée avec verrière ouvrant sur une belle salle à manger avec cuisine ouverte offrant une vue traversante sur le séjour agrémenté d'un balcon filant, une chambre avec salle de bains / douche et dressing, une seconde chambre avec salle de douche / dressing ainsi que des toilettes séparées.
Très lumineux et disposant de beaux volumes, cet appartement dispose d'un très bon plan sans perte de place.
Une grande cave complète ce bien.
Voir plus

Référence: 2607MONVIQ
Barème des honoraires
DPE
A
B
C
D
E
F
G
GES
A
B
C
D
E
F
G

Prêt immobilier

Vous souhaitez connaître votre capacité d’emprunt et trouver le meilleur crédit immobilier ?
Réaliser une simulation gratuite

Appartement à PARIS-2E
Appartement à PARIS-2E
Appartement à PARIS-2E
Appartement à PARIS-2E
Appartement à PARIS-2E
Appartement à PARIS-2E
Appartement à PARIS-2E
Appartement à PARIS-2E
Appartement à PARIS-2E
Appartement à PARIS-2E
Appartement à PARIS-2E
Appartement à PARIS-2E
Appartement à PARIS-2E
Appartement à PARIS-2E
Appartement à PARIS-2E
Appartement à PARIS-2E
Appartement à PARIS-2E
Appartement à PARIS-2E
Appartement à PARIS-2E
Appartement à PARIS-2E
Appartement à PARIS-2E
Appartement à PARIS-2E
Ce site est protégé par reCAPTCHA la Politique de confidentialité et les Conditions d’utilisation de Google s’appliquent.
Obtenir un prêt immobilier au meilleur taux ?

En poursuivant votre navigation sans modifier vos paramètres, vous acceptez l'utilisation de cookies susceptibles de réaliser des statistiques de visite. Cliquez ici pour plus d'informations