Immeuble avec local commercial + appartement à vendre bonneuil sur marne (94)

— Bonneuil-Sur-Marne 94380 —
840 000 €
215 m²

Jean Garcia conseiller immobilier OPTIMHOME
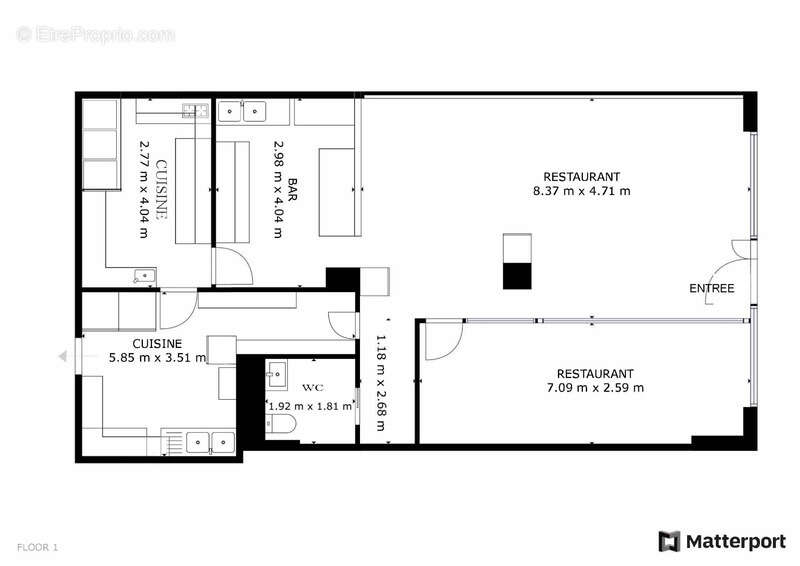
local commercial de 94 m² au rez-de-chaussée, actuellement
loué à un restaurateur et générant un revenu locatif stable +
d'un terrain de 293m² possibilité d'exploitation générant des revenus supplémentaires
Loyer annuel local commercial - 30 600euros HT
Taxe foncière à la charge locataire ( bail 06/2022 - 9 ans)
Loyer possible annuel terrain - 14 400euros HT
Loyer annuel appartement - 19 200euros HC
Total revenu locatif annuel - 63 600euros HC
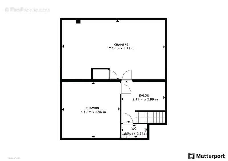
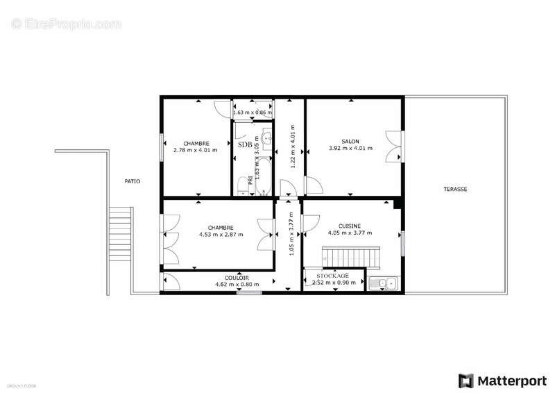
Au premier étage, un appartement spacieux en duplex de cinq
pièces d'une surface de 120 m² au sol vous offre un espace de
vie confortable. De plus, cet appartement dispose d'une
terrasse de 33 m² pour profiter de l'extérieur.
Cet ensemble immobilier est idéal pour les investisseurs à la
recherche d'une opportunité de placement rentable, avec un
taux de rentabilité exceptionnel de 7,6%. Le local commercial
vendu occupé ( bail 2022) génère un revenu locatif régulier,
et il y a un potentiel de revenu supplémentaire en louant
l'appartement ou en développant le terrain.
Situé dans un emplacement stratégique et bénéficiant de
nombreuses places de stationnement devant le restaurant cet
établissement offre de multiples possibilités, que ce soit pour la
location à long terme ou pour des projets de développement
futurs. Ne laissez pas passer cette occasion unique d'investir
dans un bâtiment polyvalent offrant un fort potentiel de
rentabilité.
L'appartement de 5 pièces avec une terrasse de 33 m² au 1er
étage, se compose :
- D'un séjour de 23 m² avec possibilité d'une cuisine ouverte,
d'une première chambre de 15,50 m2, d'une seconde chambre
de 10,9 m² salle de bains, de deux wc, d'un débarras, de trois
dégagements, de 2 chambres et d'une salle d'eau sous combles.
L'appartement bénéficie d'un chauffage individuel électrique. Il
est vendu libre.
Le local commercial (activité : restauration), au rdc, se compose
:
- D'une première pièce de 46,5 m2, d'une seconde pièce de
15,7 m2, d'une cuisine de 10,8 m2 + arrière-cuisine de 14,75 m2
+ 1 dégagement et des sanitaires.
La toiture est neuve et isolée, garantissant un confort optimal. Les honoraires d'agence sont à la charge de l'acquéreur, soit 5,00% TTC du prix hors honoraires.
Les informations sur les risques auxquels ce bien est exposé sont disponibles sur le site Géorisques : www. georisques. gouv. fr.

Contactez Jean GARCIA Entrepreneur Individuel, Agent commercial OptimHome (RSAC N°329 409 007 Greffe de PARIS) [Coordonnées masquées] (réf. 587993 )
Voir plus

Référence: 830036793785
DPE
A
B
C
D
E
F
G
GES
A
B
C
D
E
F
G

Prêt immobilier

Vous souhaitez connaître votre capacité d’emprunt et trouver le meilleur crédit immobilier ?
Réaliser une simulation gratuite

Appartement à BONNEUIL-SUR-MARNE
Appartement à BONNEUIL-SUR-MARNE
Appartement à BONNEUIL-SUR-MARNE
Appartement à BONNEUIL-SUR-MARNE
Appartement à BONNEUIL-SUR-MARNE
Appartement à BONNEUIL-SUR-MARNE
Appartement à BONNEUIL-SUR-MARNE
Appartement à BONNEUIL-SUR-MARNE
Appartement à BONNEUIL-SUR-MARNE
Appartement à BONNEUIL-SUR-MARNE
Appartement à BONNEUIL-SUR-MARNE
Appartement à BONNEUIL-SUR-MARNE
Appartement à BONNEUIL-SUR-MARNE
Appartement à BONNEUIL-SUR-MARNE
Appartement à BONNEUIL-SUR-MARNE
Appartement à BONNEUIL-SUR-MARNE
Appartement à BONNEUIL-SUR-MARNE
Appartement à BONNEUIL-SUR-MARNE
Appartement à BONNEUIL-SUR-MARNE
Appartement à BONNEUIL-SUR-MARNE
Appartement à BONNEUIL-SUR-MARNE
Appartement à BONNEUIL-SUR-MARNE
Appartement à BONNEUIL-SUR-MARNE
Appartement à BONNEUIL-SUR-MARNE
Appartement à BONNEUIL-SUR-MARNE
Appartement à BONNEUIL-SUR-MARNE
Appartement à BONNEUIL-SUR-MARNE
Appartement à BONNEUIL-SUR-MARNE
Appartement à BONNEUIL-SUR-MARNE
Appartement à BONNEUIL-SUR-MARNE
Appartement à BONNEUIL-SUR-MARNE
Appartement à BONNEUIL-SUR-MARNE
Appartement à BONNEUIL-SUR-MARNE
Appartement à BONNEUIL-SUR-MARNE
Appartement à BONNEUIL-SUR-MARNE
Ce site est protégé par reCAPTCHA la Politique de confidentialité et les Conditions d’utilisation de Google s’appliquent.
Obtenir un prêt immobilier au meilleur taux ?

En poursuivant votre navigation sans modifier vos paramètres, vous acceptez l'utilisation de cookies susceptibles de réaliser des statistiques de visite. Cliquez ici pour plus d'informations