Entrepôt / local industriel téteghem - 1870 m2

— Teteghem 59380 —
1 575 000 €
1 870 m²
parking

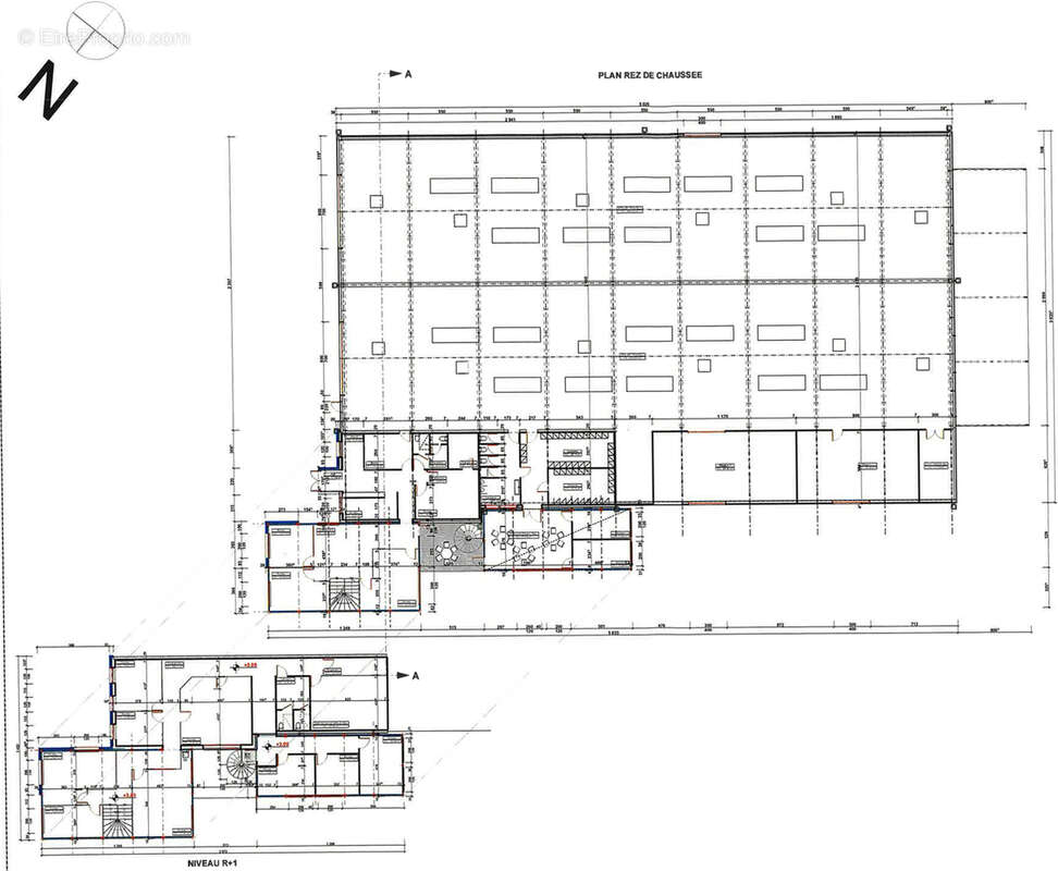
Local professionnel comprenant une partie Hangar/Atelier de plus de 1400m² et des bureaux attenants de plus de 500m². Situé dans la zone d'activité du chapeau rouge à Téteghem. Vous serez à proximité de l'axe autoroutier de l'A16. Le hangar est composé de 7 portes sectionnelles donc 1 avec passage très large (6 mètres par 7 mètres), de 4 ponts de levage dont 2 de 10 tonnes et 2 de 5 tonnes, une partie magasin. Pour les bureaux, retrouver 500m² avec pièce d'accueil, plus de 14 bureaux et salles de réunion, le tout aux normes et rénovés en 2019. Le local est également disponible à la location pour un loyer de 150000 euros annuel. Sur le pourtour, retrouvez environ 15 places de parking privées et des airs de circulation. (5.00 % honoraires TTC à la charge de l'acquéreur.)
Voir plus

Référence: 835
Honoraires d'agence de 5% à la charge de l'acquéreur
Barème des honoraires

Prêt immobilier

Vous souhaitez connaître votre capacité d’emprunt et trouver le meilleur crédit immobilier ?
Réaliser une simulation gratuite

Commerce à TETEGHEM
Commerce à TETEGHEM
Commerce à TETEGHEM
Commerce à TETEGHEM
Commerce à TETEGHEM
Commerce à TETEGHEM
Commerce à TETEGHEM
Commerce à TETEGHEM
Commerce à TETEGHEM
Commerce à TETEGHEM
Commerce à TETEGHEM
Commerce à TETEGHEM
Commerce à TETEGHEM
Commerce à TETEGHEM
Commerce à TETEGHEM
Commerce à TETEGHEM
Commerce à TETEGHEM
Ce site est protégé par reCAPTCHA la Politique de confidentialité et les Conditions d’utilisation de Google s’appliquent.
Obtenir un prêt immobilier au meilleur taux ?

En poursuivant votre navigation sans modifier vos paramètres, vous acceptez l'utilisation de cookies susceptibles de réaliser des statistiques de visite. Cliquez ici pour plus d'informations