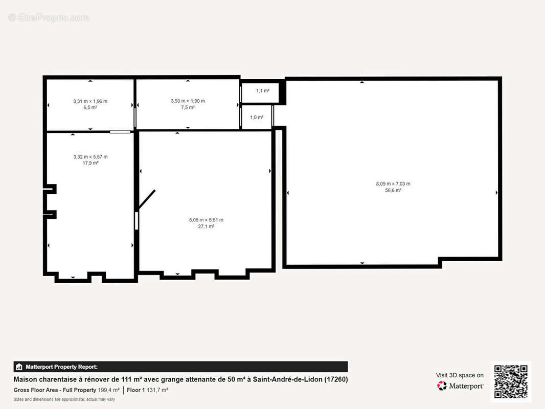
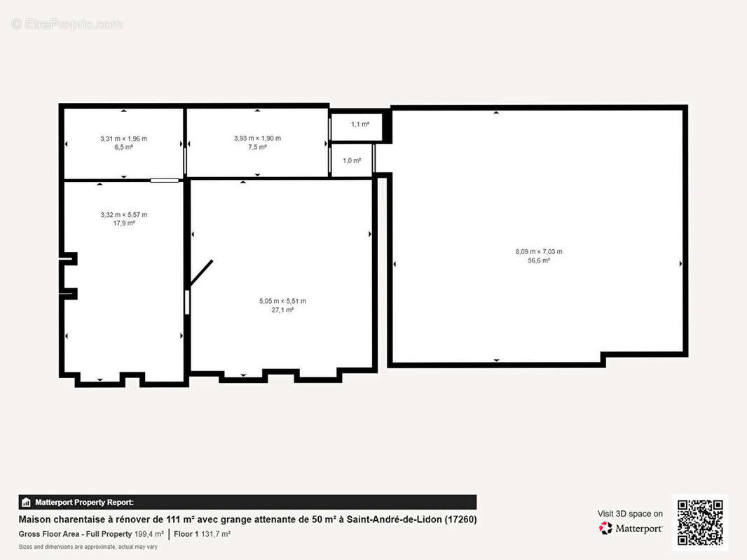
Maison charentaise à rénover de 111 m² avec grange attenante de 50 m² à saint-andré-de-lidon (17260)

— Saint-Andre-De-Lidon 17260 —
89 800 €
111 m² / 158 m²
4 pièces
jardin

A 20 minutes de Royan et des plages de l'Atlantique, Maison charentaise à rénover de 111 m² avec grange attenante de 50 m² à Saint-André-de-Lidon (17260) Cette maison ancienne en pierre offre un cadre paisible au coeur de la campagne charentaise. Idéale pour une résidence secondaire sans entretien extérieur ou pour un investisseur du bâtiment, ce bien présente un fort potentiel de valorisation. Visite immersive disponible Pour une première découverte en 3D, une visite virtuelle immersive est proposée. Il suffit de contacter notre agence pour obtenir le mot de passe de connexion. Caractéristiques principales Surface habitable : 111 m² Trois pièces dont deux chambres Grange attenante de 50 m² pouvant accueillir la filière d'assainissement et être aménagée en patio couvert végétalisé avec terrasse lumineuse Pas de jardin, mais possibilité de créer un patio agréable et privatif Construction en pierre de 1870, style charentais, mitoyenne. Fenêtres bois simple vitrage, volets bois Travaux et diagnostics Assainissement à refaire (étude technique disponible) Travaux à prévoir : isolation, chauffage, menuiseries, électricité, cuisine, peintures Diagnostics amiante, plomb, termites, électricité réalisés Présence de termites identifiée : devis et solutions de traitement disponibles État général : habitable sommairement, idéal pour rénovation progressive Toiture et charpente en bon état Intérieur à rafraîchir Localisation et commodités Commerces à 1,5 km École à 5 minutes Accès autoroute à 16 km Contact et visite Pour plus d'informations ou organiser une visite, contactez votre agence Laforêt Gémozac
Voir plus

Référence: 4383
Honoraires d'agence de 9.51% à la charge de l'acquéreur
Barème des honoraires

Prêt immobilier

Vous souhaitez connaître votre capacité d’emprunt et trouver le meilleur crédit immobilier ?
Réaliser une simulation gratuite

Maison à SAINT-ANDRE-DE-LIDON
Maison à SAINT-ANDRE-DE-LIDON
Maison à SAINT-ANDRE-DE-LIDON
Maison à SAINT-ANDRE-DE-LIDON
Maison à SAINT-ANDRE-DE-LIDON
Maison à SAINT-ANDRE-DE-LIDON
Maison à SAINT-ANDRE-DE-LIDON
Maison à SAINT-ANDRE-DE-LIDON
Maison à SAINT-ANDRE-DE-LIDON
Maison à SAINT-ANDRE-DE-LIDON
Maison à SAINT-ANDRE-DE-LIDON
Maison à SAINT-ANDRE-DE-LIDON
Maison à SAINT-ANDRE-DE-LIDON
Maison à SAINT-ANDRE-DE-LIDON
Maison à SAINT-ANDRE-DE-LIDON
Maison à SAINT-ANDRE-DE-LIDON
Maison à SAINT-ANDRE-DE-LIDON
Maison à SAINT-ANDRE-DE-LIDON
Ce site est protégé par reCAPTCHA la Politique de confidentialité et les Conditions d’utilisation de Google s’appliquent.
Obtenir un prêt immobilier au meilleur taux ?

En poursuivant votre navigation sans modifier vos paramètres, vous acceptez l'utilisation de cookies susceptibles de réaliser des statistiques de visite. Cliquez ici pour plus d'informations