Bénéficiez des services de nos partenaires locaux soigneusement sélectionnés
pour vous accompagner dans votre parcours d'achat immobilier

Appartement 3 chambre(s) à vendre

— Morzine 74110 —
510 000 €
72 m²
4 pièces
parking

Nos partenaires locaux
 Découvrez ce magnifique
triplex de charme, situé dans une ancienne ferme au cœur d'un quartier
historique et authentique de Morzine. Ce bien rare, entièrement rénové avec
goût, marie parfaitement le cachet traditionnel à une décoration hyper tendance
et des matériaux de haute qualité. 
Avec ses trois chambres et ses
deux salles de bains modernes, cet appartement offre tout le confort nécessaire
pour accueillir famille et amis. Le séjour, baigné de lumière naturelle,
s'ouvre sur un balcon offrant une vue imprenable sur les bâtisses environnantes
imprégnées de l'histoire et du charme unique de Morzine. 
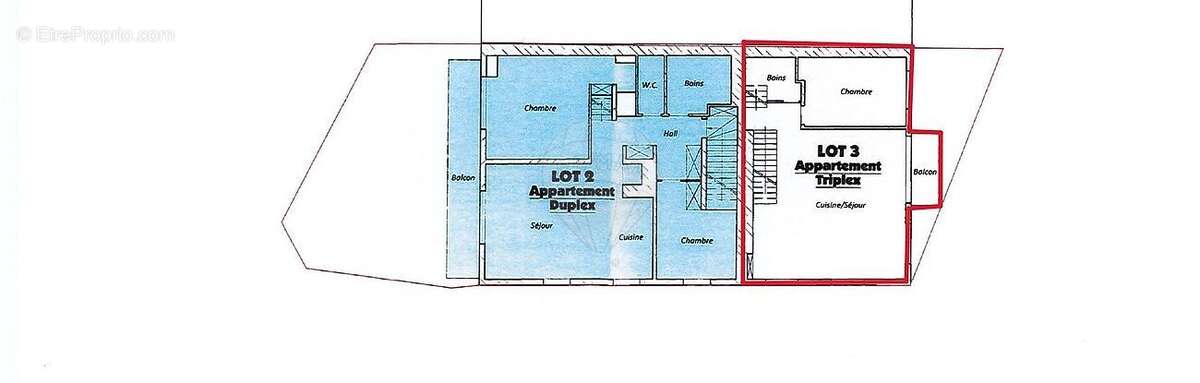
Sa surface d’environ 80m2 se
compose de la manière suivante : 
Au rez de chaussée : 
Une grande entrée avec
rangements, accès au garage, un WC invité, une chambre avec salle de bains. 
Au 1er étage :
 
Un grand séjour/cuisine, une
salle de bains, une chambre. 
Au 2ème
étage : 
Une chambre  
Vous serez sous le charme de son
environnement authentique grâce à la petite chapelle édifiée en 1806 et du four
traditionnel autrefois destiné à la fabrication du pain. Vous profiterez aussi
de belles balades dans le vieux village et ferez une halte à la boulangerie
située à deux pas. Après un bon petit déjeuner il sera facile de rejoindre les
pistes de l’ensemble du domaine des Portes du Soleil et après une bonne journée
de ski vous aimerez vous relaxer devant un bon feu. 
Un garage privé vient
compléter ce bien, un atout rare dans cette région prisée. De plus, il fait
partie d’une petite copropriété de seulement 3 lots avec de très faibles
charges courantes. 
Ce triplex est une véritable
invitation à profiter de la montagne, dans un cadre alliant tradition et
modernité. 
LES INCONTOURNABLES : 
- Triplex 
- Très belle rénovation  
- Quartier authentique  
- Garage 
- Petite copropriété 
Les informations sur les risques auxquels ce bien est
exposé sont disponibles sur le site Géorisques : georisques.gouv.fr  
Honoraires à la charge du vendeur.
Les informations sur les risques auxquels ce bien est exposé sont disponibles sur le site Géorisques : www.georisques.gouv.fr .
Voir plus

Référence: 749201006-29
Honoraires à la charge du vendeur.
DPE
A
B
C
D
E
F
G
GES
A
B
C
D
E
F
G
Appartement à MORZINE
Appartement à MORZINE
Appartement à MORZINE
Appartement à MORZINE
Appartement à MORZINE
Appartement à MORZINE
Appartement à MORZINE
Appartement à MORZINE
Appartement à MORZINE
Appartement à MORZINE
Appartement à MORZINE
Appartement à MORZINE
Appartement à MORZINE
Appartement à MORZINE
Appartement à MORZINE
Appartement à MORZINE
Appartement à MORZINE
Appartement à MORZINE
Appartement à MORZINE
Appartement à MORZINE
Géorisques

Les informations sur les risques auxquels ce bien est exposé sont disponibles sur le site Géorisques : www.georisques.gouv.fr

Ce site est protégé par hCaptcha Politique de confidentialité et Conditions d’utilisation s’appliquent.

En poursuivant votre navigation sans modifier vos paramètres, vous acceptez l'utilisation de cookies susceptibles de réaliser des statistiques de visite. Cliquez ici pour plus d'informations