Bénéficiez des services de nos partenaires locaux soigneusement sélectionnés
pour vous accompagner dans votre parcours d'achat immobilier

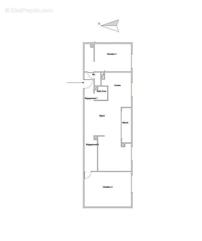
Appartement de type 3/4 de 65m2 entièrement rénové avec une vue mer, un balcon, une cave et une place de parking privative

— Marseille-7e 13007 —
499 000 €
3 pièces
parkingbalcon/terrasse

Nos partenaires locaux
1894 - L'immobilier vous propose un appartement entièrement rénové de type 3/4 de 65m2 avec une vue mer, un balcon, une cave et une place de parking privative.
Idéalement situé en plein coeur du Vallon des Auffes, ce bien allie charme de l'ancien et confort moderne, au sein d'une copropriété de bon standing au calme absolu et sans vis a vis.

Caractéristique Principales :
- Entièrement rénové en 2024.
- Prestations haut de gamme.
- Cuisine équipée ouverte sur un séjour d'environ 30m2 prolongé par un balcon exposé SUD OUEST avec une vue dégagée.
- 2 chambres lumineuses.
- Une salle d'eau.
- Un wc séparé.
- Possibilité de faire une 3ème chambre.

Infos complémentaires :
- Une place de parking privative.
- Une cave.
- Étage 4/5.
- Charges : 100 euros par mois.
- Taxe foncière : 1190 euros.
- Mode de chauffage : convecteur électrique.
Contactez moi dès maintenant pour une visite au [Coordonnées masquées].

Honoraires à charge vendeur.
Contact Virgile BRESSY - EI: [Coordonnées masquées]
Agent commercial en immobilier enregistré au RSAC du greffe d'Aix en Provence sous le n°532 481 215 titulaire de la carte de démarchage immobilier pour le compte de la société 1894-L'immobilier.
La présente annonce a été rédigée sous la responsabilité éditoriale de l'agent commercial en contact.
Selon l'article L.561.5 du Code Monétaire et Financier, pour l'organisation de la visite, la présentation d'une pièce d'identité vous sera demandée.
Référence agence : 14591
Voir plus

Référence: K8SS-SJB-0O7
Bien en copropriété. Nombre de lots : 36. Charges de copropriété : 100 €.
Honoraires à la charge du vendeur.
DPE
A
B
C
D
E
F
G
GES
A
B
C
D
E
F
G

Prêt immobilier

Vous souhaitez connaître votre capacité d’emprunt et trouver le meilleur crédit immobilier ?
Réaliser une simulation gratuite

Appartement à MARSEILLE-7E
Appartement à MARSEILLE-7E
Appartement à MARSEILLE-7E
Appartement à MARSEILLE-7E
Appartement à MARSEILLE-7E
Appartement à MARSEILLE-7E
Appartement à MARSEILLE-7E
Appartement à MARSEILLE-7E
Appartement à MARSEILLE-7E
Appartement à MARSEILLE-7E
Ce site est protégé par reCAPTCHA la Politique de confidentialité et les Conditions d’utilisation de Google s’appliquent.
Obtenir un prêt immobilier au meilleur taux ?

En poursuivant votre navigation sans modifier vos paramètres, vous acceptez l'utilisation de cookies susceptibles de réaliser des statistiques de visite. Cliquez ici pour plus d'informations