Bénéficiez des services de nos partenaires locaux soigneusement sélectionnés
pour vous accompagner dans votre parcours d'achat immobilier

Belle maison familiale de 161 m2 (180 m2 au sol) avec 5 chambres - jardin, garage et sous-sol - la chabossière - couëron

— Coueron 44220 —
430 000 €
161 m² / 711 m²
6 pièces
parkingbalcon/terrassejardin

Nos partenaires locaux
Hosman vous propose à la vente cette belle maison familiale de 161 m² habitables (180 m2 au sol) avec 5 chambres, située à La Chabossière à Couëron.

Cette maison de 1984 non mitoyenne dispose d'un joli jardin clos et arboré sur une parcelle de 711 m².

Planifiez facilement votre visite en choisissant le créneau qui vous convient depuis le site d'hosman.

La maison se compose comme suit :
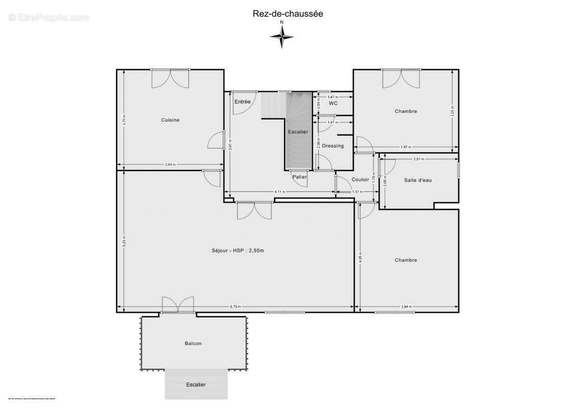
AU RDC :
- D'une entrée séparée entièrement repeinte en 2025.
- D'une belle pièce de vie de 38 m2 lumineuse et exposée sud, s'ouvrant sur la terrasse et sur le jardin.
- D'une cuisine équipée et séparée.
- De deux chambres dont une avec rangement.
- D'une salle d'eau avec une douche à l'italienne (refaite en 2021).
- De toilettes séparées avec un espace de rangement séparé.
- Toutes les huisseries ont été changées en 2021.

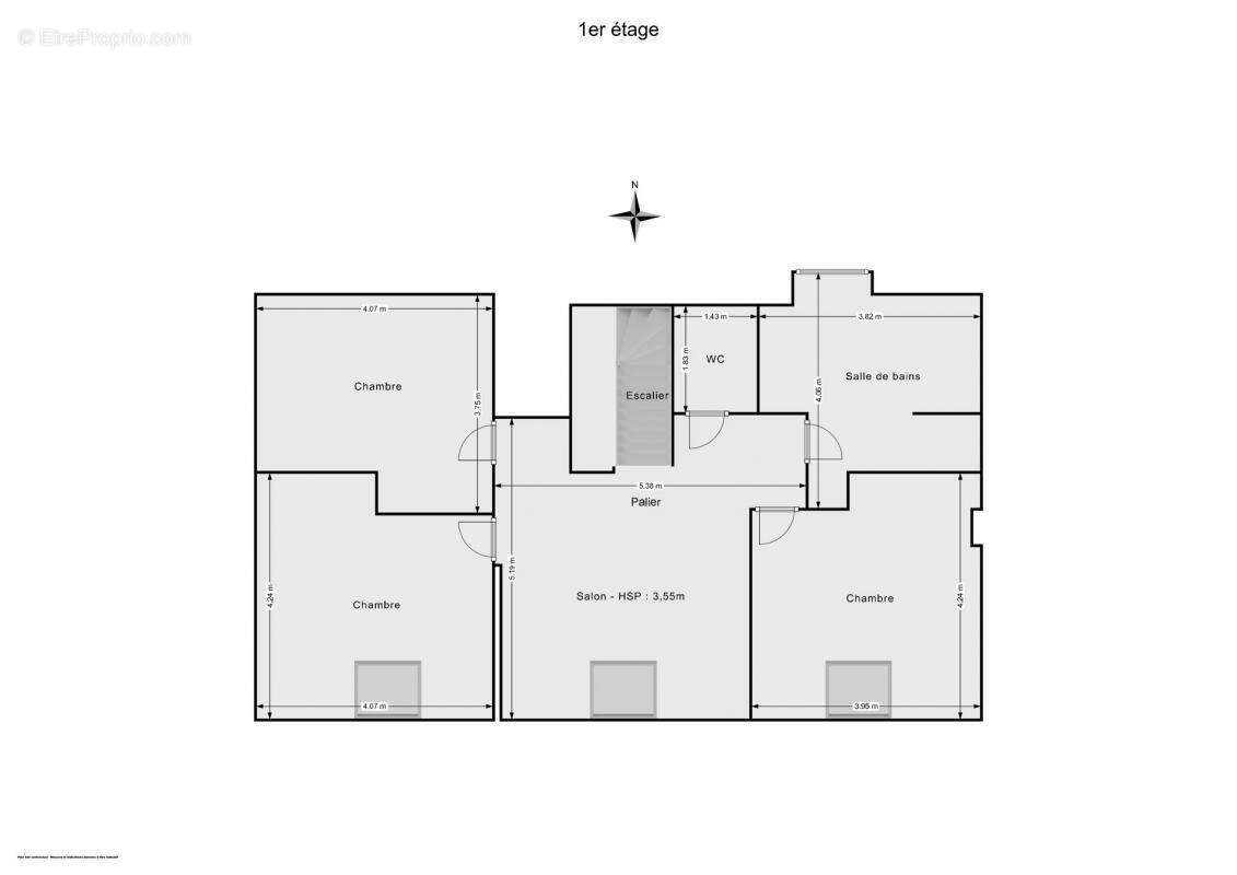
ETAGE 1
L'étage a été entièrement refait en 2021.

- Un grand palier avec une belle hauteur sous plafond et poutres apparentes. Cette pièce peut servir de chambre d'appoint, de bureau, de second salon, de salle de jeux...
- De 3 belles chambres avec rangements.
- D'une salle de bain avec baignoire et douche et meuble double vasques.
- De toilettes séparées.

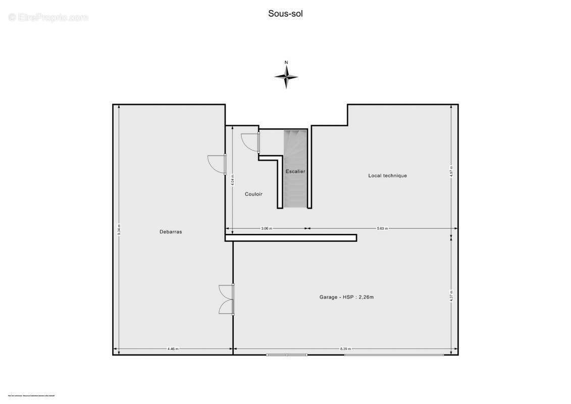
Un grand sous-sol sain de 100 m2 complète ce bien avec un espace buanderie.
Un grand garage est également présent dans la maison. Vous pourrez également stationner plusieurs véhicules sur la parcelle.

Les lignes de bus 71, 91 et E1 se trouvent à proximité immédiate à pied de la maison.
Vous serez à proximité des commodités du quotidien : commerces, écoles, supermarchés...
Vous serez à proximité du Lac de Beaulieu.

Le chauffage et l'eau chaude sont assurés par une chaudière au gaz.
La taxe foncière annuelle est de 2 700 €.

Hosman s'efforce de réinventer l'agence immobilière en offrant un service innovant et transparent aux acheteurs et aux vendeurs. Nos frais d'agence sont de 9 900 euros fixes à la charge du vendeur.

Si vous êtes un professionnel de l'immobilier (agent, mandataire ou chasseur immobilier), sachez que toutes les annonces Hosman sont ouvertes à la collaboration. N'hésitez pas à nous contacter pour en discuter.
Voir plus

Référence: 0eb126
Honoraires à la charge du vendeur.
DPE
A
B
C
D
E
F
G
GES
A
B
C
D
E
F
G

Prêt immobilier

Vous souhaitez connaître votre capacité d’emprunt et trouver le meilleur crédit immobilier ?
Réaliser une simulation gratuite

Maison à COUERON
Maison à COUERON
Maison à COUERON
Maison à COUERON
Maison à COUERON
Maison à COUERON
Maison à COUERON
Maison à COUERON
Maison à COUERON
Maison à COUERON
Maison à COUERON
Maison à COUERON
Maison à COUERON
Maison à COUERON
Maison à COUERON
Maison à COUERON
Maison à COUERON
Maison à COUERON
Maison à COUERON
Maison à COUERON
Ce site est protégé par reCAPTCHA la Politique de confidentialité et les Conditions d’utilisation de Google s’appliquent.
Obtenir un prêt immobilier au meilleur taux ?

En poursuivant votre navigation sans modifier vos paramètres, vous acceptez l'utilisation de cookies susceptibles de réaliser des statistiques de visite. Cliquez ici pour plus d'informations