Bénéficiez des services de nos partenaires locaux soigneusement sélectionnés
pour vous accompagner dans votre parcours d'achat immobilier

Villa 3 chambres à vendre à peymeinade 106 m2 piscine

— Peymeinade 06530 —
499 200 €
106 m²
4 pièces
parkingbalcon/terrassepiscine

Nos partenaires locaux
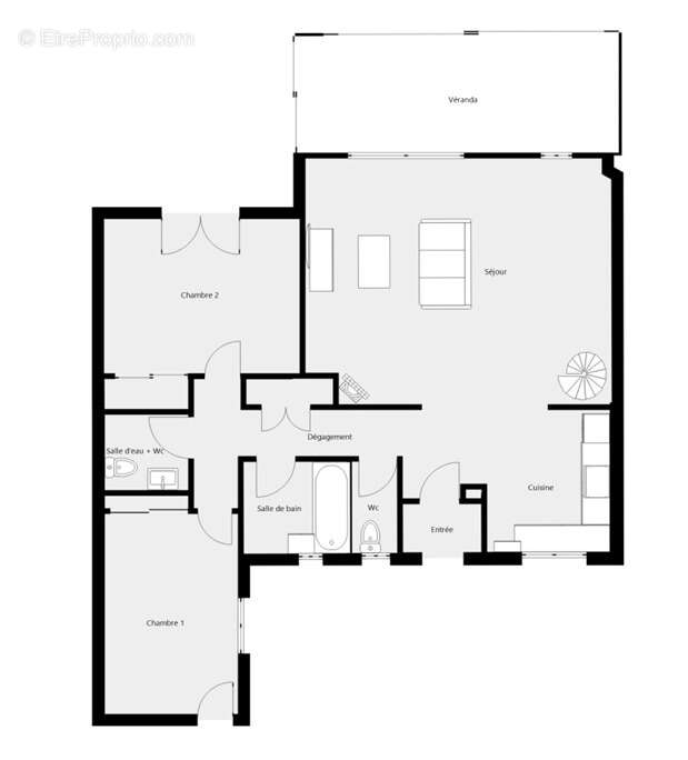
A découvrir : Maison de type T4 de 1983 dans la petite ville de Peymeinade. Si vous cherchez un bien pour etre en famille ou pour une résidence secondaire elle sera parfaite Elle compte un coin salon de 30m2, un espace cuisine et un espace nuit comprenant 3 chambres. La surface plancher intérieure habitable est de 106m2 loi Carrez. Villa sur deux niveaux avec une mezzanine et patio à l'étage offrant une possibilité d'agrandissement .Egalement, ses deux salles de bain sont très pratiques au quotidien quand on vit en famille. Le logement s'accompagne d'un espace de stockage à la cave. Pour manger en plein air, le bien vous propose un jardin, en bordure de piscine, zxposé plein sud. Il donne accès à une aire de parking et un garage.Jardin joliment arboré et bien entretenu .Emplacement très calme pour une vraie détente.
La taxe foncière s'élève à 1 342 € par année, charges 39 € /mois .Petite copropriété discrètement mitoyenne sur un petit coté .A proximité des commerces et des transports.
Prix de vente 499200 €.
Pour vous accompagner Rosette Maisonnas KLICC IMMOBILIER Agent commercial indépendant R.S.A.C 890925662 Cannes .Tel [Coordonnées masquées] /[Coordonnées masquées]
Cette annonce vous est proposée par - SARL - NoRSAC: 890 925 662, Enregistré à Greffe du tribunal de commerce de CANNES - Annonce rédigée et publiée par un Agent Mandataire -
Voir plus

Référence: 6074
Bien en copropriété. Nombre de lots : 2. Charges de copropriété : 468 €.
Honoraires à la charge du vendeur.
Barème des honoraires
DPE
A
B
C
D
E
F
G
GES
A
B
C
D
E
F
G

Prêt immobilier

Vous souhaitez connaître votre capacité d’emprunt et trouver le meilleur crédit immobilier ?
Réaliser une simulation gratuite

Maison à PEYMEINADE
Maison à PEYMEINADE
Maison à PEYMEINADE
Maison à PEYMEINADE
Maison à PEYMEINADE
Maison à PEYMEINADE
Maison à PEYMEINADE
Maison à PEYMEINADE
Maison à PEYMEINADE
Maison à PEYMEINADE
Maison à PEYMEINADE
Maison à PEYMEINADE
Maison à PEYMEINADE
Maison à PEYMEINADE
Maison à PEYMEINADE
Maison à PEYMEINADE
Maison à PEYMEINADE
Maison à PEYMEINADE
Maison à PEYMEINADE
Maison à PEYMEINADE
Maison à PEYMEINADE
Maison à PEYMEINADE
Ce site est protégé par reCAPTCHA la Politique de confidentialité et les Conditions d’utilisation de Google s’appliquent.
Obtenir un prêt immobilier au meilleur taux ?

En poursuivant votre navigation sans modifier vos paramètres, vous acceptez l'utilisation de cookies susceptibles de réaliser des statistiques de visite. Cliquez ici pour plus d'informations